97 Cambridge Place















Description
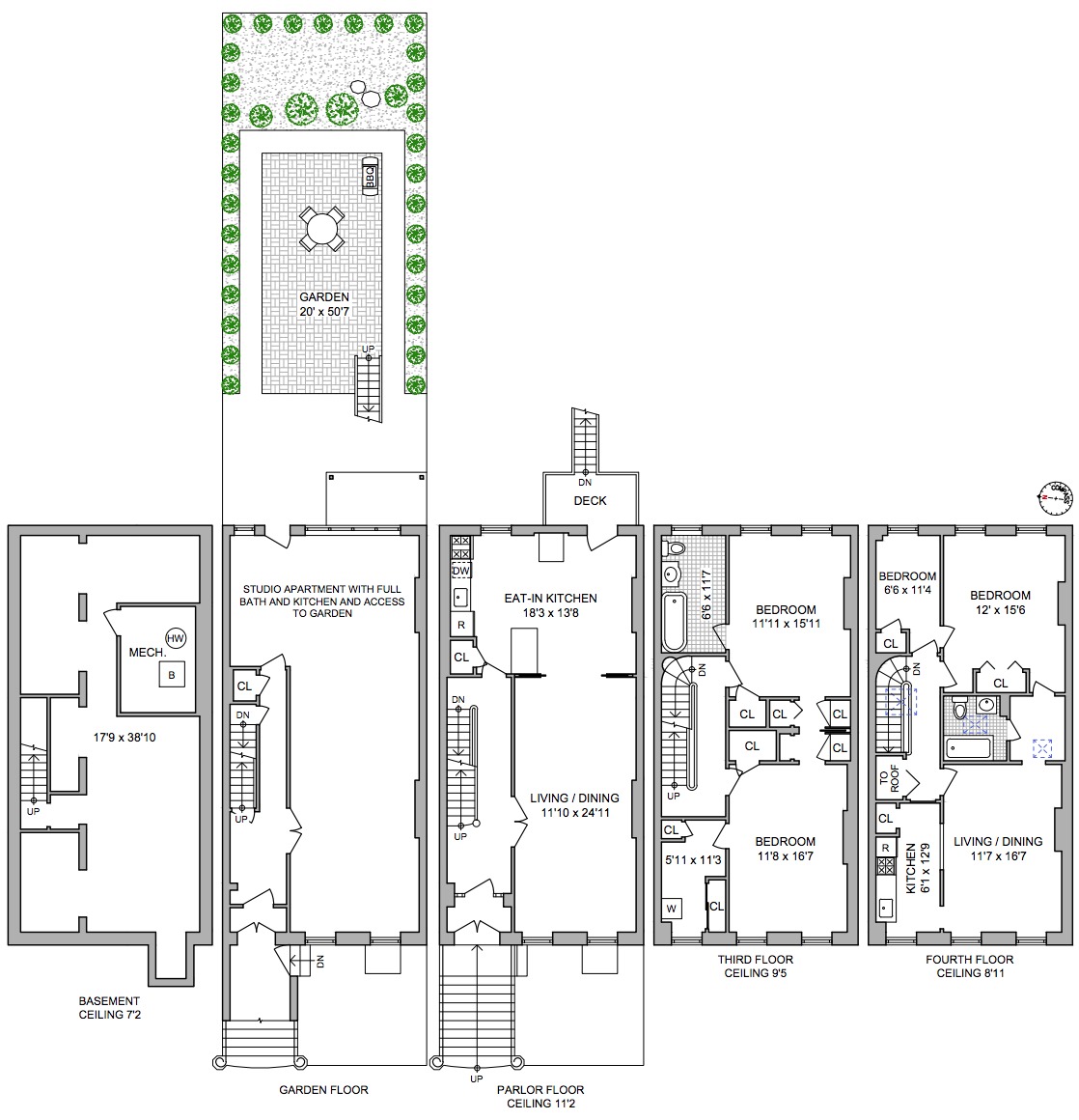
Every once in a while a house with great bones comes along. So many original details and character. Owned by the same family for more than a few decades and ready to be handed on to a buyer who wants to add their personal touch. The floor to ceiling windows are certainly a showstopper! The Italianate style brownstone has high ceilings, hardwood floors, decorative...Looking for a triplex over a garden rental? You can easily convert this legal three family home to your story book Cambridge Place townhouse.
Every once in a while a house with great bones comes along. So many original details and character. Owned by the same family for more than a few decades and ready to be handed on to a buyer who wants to add their personal touch. The floor to ceiling windows are certainly a showstopper! The Italianate style brownstone has high ceilings, hardwood floors, decorative fireplaces, pocket doors, and original design that you can feel the history as you enter this home. It all adds to the elegance and style of this home. There is a light all day with the western exposure. The block boast some of the most historic architecture in Clinton Hill. Lot size 20'x100' House size: 20'x42'... 3360 square feet plus 840 square foot basement. This is a lot of house!
Exterior brownstone was most recently restored and renovated. Hot water heater is new, the furnace is approximately 8 years old. Skylights have recently been replaced. This home has a sprinkler system. Close to subway transportation, Barclays Arena, Brooklyn Academy of Music, Wholefoods, Shoppes and Parks, including brisk walk to Fort Greene Park.
Listing Agents
lisa.lonuzzi@compass.comP: (917)-747-2942
christina.lonuzzi@compass.comP: (917)-685-2300
Amenities
- Decorative Fireplace
- Crown Mouldings
- Hardwood Floors
- High Ceilings
- Walk Up
- Washer / Dryer in Unit
- Washer
- Eastern Exposure
Property Details for 97 Cambridge Place
| Status | Sold |
|---|---|
| Days on Market | 107 |
| Taxes | $437 / month |
| Maintenance | - |
| Min. Down Pymt | - |
| Total Rooms | 11.0 |
| Compass Type | Townhouse |
| MLS Type | Residential Income |
| Year Built | 1899 |
| Lot Size | 2,000 SF / 20' x 100' |
| County | Kings County |
| Buyer's Agent Compensation | 2.5% |
Building
97 Cambridge Pl
Location
Building Information for 97 Cambridge Place
Payment Calculator
$14,118 per month
30 year fixed, 6.15% Interest
$13,681
$437
$0
Property History for 97 Cambridge Place
| Date | Event & Source | Price |
|---|---|---|
| 02/23/2021 | Sold Manual | $2,850,000 |
| 02/23/2021 | $2,807,000 | |
| 10/27/2020 | Contract Signed Manual | — |
| 07/11/2020 | Listed (Active) Manual | $2,995,000 |
For completeness, Compass often displays two records for one sale: the MLS record and the public record.
Public Records for 97 Cambridge Place
Schools near 97 Cambridge Place
Rating | School | Type | Grades | Distance |
|---|---|---|---|---|
| Public - | PK to 5 | |||
| Public - | 6 to 8 | |||
| Public - | 9 to 12 | |||
| Public - | 9 to 12 |
Rating | School | Distance |
|---|---|---|
P.S. 56 Lewis H Latimer PublicPK to 5 | ||
Urban Assembly Unison School (The) Public6 to 8 | ||
GOTHAM PROFESSIONAL ARTS ACADEMY Public9 to 12 | ||
Bedford Academy High School Public9 to 12 |
School ratings and boundaries are provided by GreatSchools.org and Pitney Bowes. This information should only be used as a reference. Proximity or boundaries shown here are not a guarantee of enrollment. Please reach out to schools directly to verify all information and enrollment eligibility.
Neighborhood Map and Transit
Similar Homes
Similar Sold Homes
Explore Nearby Homes
- Northwestern Brooklyn Homes for Sale
- North Slope Homes for Sale
- Prospect Heights Homes for Sale
- Clinton Hill Homes for Sale
- Prospect Lefferts Gardens Homes for Sale
- South Brooklyn Homes for Sale
- Crown Heights Homes for Sale
- Fort Greene Homes for Sale
- Park Slope Homes for Sale
- Northern Brooklyn Homes for Sale
- Bedford-Stuyvesant Homes for Sale
- Central Brooklyn Homes for Sale
- Central Slope Homes for Sale
- Boerum Hill Homes for Sale
- Downtown Brooklyn Homes for Sale
- New York Homes for Sale
- Brooklyn Homes for Sale
- Manhattan Homes for Sale
- Queens Homes for Sale
- Jersey City Homes for Sale
- Hoboken Homes for Sale
- Bayonne Homes for Sale
- Weehawken Homes for Sale
- Union City Homes for Sale
- Staten Island Homes for Sale
- West New York Homes for Sale
- North Bergen Homes for Sale
- Kearny Homes for Sale
- Guttenberg Homes for Sale
- Secaucus Homes for Sale
- 11225 Homes for Sale
- 11215 Homes for Sale
- 11216 Homes for Sale
- 11217 Homes for Sale
- 11205 Homes for Sale
- 11201 Homes for Sale
- 11243 Homes for Sale
- 11206 Homes for Sale
- 11213 Homes for Sale
- 11226 Homes for Sale
- 11218 Homes for Sale
- 11249 Homes for Sale
- 11221 Homes for Sale
- 11211 Homes for Sale
- 11203 Homes for Sale
No guarantee, warranty or representation of any kind is made regarding the completeness or accuracy of descriptions or measurements (including square footage measurements and property condition), such should be independently verified, and Compass, Inc., its subsidiaries, affiliates and their agents and associated third parties expressly disclaims any liability in connection therewith. Photos may be virtually staged or digitally enhanced and may not reflect actual property conditions. Offers of compensation are subject to change at the discretion of the seller. No financial or legal advice provided. Equal Housing Opportunity.
This information is not verified for authenticity or accuracy and is not guaranteed and may not reflect all real estate activity in the market. ©2026 The Real Estate Board of New York, Inc., All rights reserved. The source of the displayed data is either the property owner or public record provided by non-governmental third parties. It is believed to be reliable but not guaranteed. This information is provided exclusively for consumers’ personal, non-commercial use. The data relating to real estate for sale on this website comes in part from the IDX Program of OneKey® MLS. Information Copyright 2026, OneKey® MLS. All data is deemed reliable but is not guaranteed accurate by Compass. See Terms of Service for additional restrictions. Compass · Tel: 212-913-9058 · New York, NY Listing information for certain New York City properties provided courtesy of the Real Estate Board of New York’s Residential Listing Service (the "RLS"). The information contained in this listing has not been verified by the RLS and should be verified by the consumer. The listing information provided here is for the consumer’s personal, non-commercial use. Retransmission, redistribution or copying of this listing information is strictly prohibited except in connection with a consumer's consideration of the purchase and/or sale of an individual property. This listing information is not verified for authenticity or accuracy and is not guaranteed and may not reflect all real estate activity in the market. ©2026 The Real Estate Board of New York, Inc., all rights reserved. This information is not guaranteed, should be independently verified and may not reflect all real estate activity in the market. Offers of compensation set forth here are for other RLSParticipants only and may not reflect other agreements between a consumer and their broker.©2026 The Real Estate Board of New York, Inc., All rights reserved.

















1