92 Bergen Street























Description
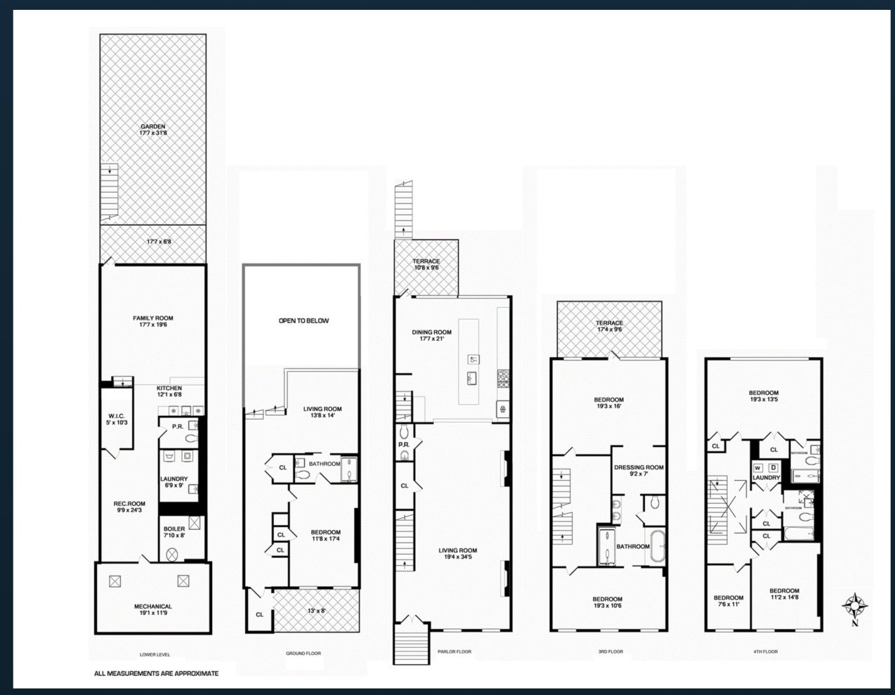
First be wowed as you enter the 50-foot deep parlor level, complete with a living room, dining room, a wood-burning fireplace, a huge kitchen, bright and airy with a south-facing dramatic 40’ rear glass wall. Warm, open, and filled with light, this floor was designed for entertaining. The chef’s kitchen is outfitted with abundant custom cabinetry, a 48” Wolfe range, Sub Zero refrigerator, Miele dishwasher, and an enormous island topped with gorgeous Calcutta gold counters. The glass wall streams south-facing light throughout this floor. Through transparent doors, access a large deck, overlooking the lush landscaped garden.
Beneath the parlor level, the re-envisioned mezzanine level hosts a wet bar in a space that is perfectly laid out as a den, open to the lower level living suite. There is a laundry room also on this level.
On the upper levels of this home, above the parlor, you’ll enjoy an expansive master suite - with a large walk-in closet, spa bathroom finished with marble and custom millwork, and a huge private patio directly accessed from the suite. Also on this level, there is an additional large bedroom.
On the top level of this gracious home there are 3 more spacious bedrooms, 2 full bathrooms, and a 2nd laundry room, for convenience.
This elegant and grand townhome is smart and efficient, zoned HVAC, wired speakers, audio, and video integrated throughout.
Listing Agents
orrie.king@compass.comP: (917)-533-3935
beth.doran@compass.comP: (917)-570-5468
thekingdoranteam@compass.comP: (917)-533-3935
Amenities
- Balcony
- Private Terrace
- Private Yard
- Patio
- Deck
- Crown Mouldings
- Decorative Mouldings
- Wet Bar
Property Details for 92 Bergen Street
| Status | Rented |
|---|---|
| Days on Market | 7 |
| Rental Incentives | - |
| Available Date | 08/22/2020 |
| Lease Term | Lease Length Min/Max: 12-12 mo |
| Furnished | - |
| Total Rooms | 11.0 |
| Compass Type | Townhouse |
| MLS Type | - |
| Year Built | 1899 |
| Lot Size | 2,000 SF / 20' x 100' |
| County | Kings County |
Building
92 Bergen St
Location
Building Information for 92 Bergen Street
Property History for 92 Bergen Street
| Date | Event & Source | Price | Appreciation |
|---|---|---|---|
| Aug 19, 2024 | Rented Manual | — | |
| Aug 4, 2024 | Application Pending Manual | — | |
| Jul 30, 2024 | Listed (Active) Manual | $22,000 | — |
| Jul 1, 2020 | Rented Manual | — | |
| Jun 29, 2020 | Leases Out Manual | — | |
| Jun 2, 2020 | Listed (Active) Manual | $17,000 | — |
| Date | Event & Source | Price |
|---|---|---|
| 08/19/2024 | Rented Manual | — |
| 08/04/2024 | Application Pending Manual | — |
| 07/30/2024 | Listed (Active) Manual | $22,000 |
| 07/01/2020 | Rented Manual | — |
| 06/29/2020 | Leases Out Manual | — |
| 06/02/2020 | Listed (Active) Manual | $17,000 |
For completeness, Compass often displays two records for one sale: the MLS record and the public record.
Schools near 92 Bergen Street
Rating | School | Type | Grades | Distance |
|---|---|---|---|---|
| Public - | PK to 5 | |||
| Public - | 6 to 12 | |||
| Public - | 9 to 12 | |||
| Public - | 9 to 12 |
Rating | School | Distance |
|---|---|---|
Zipporiah Mills PublicPK to 5 | ||
School For International Studies Public6 to 12 | ||
Cobble Hill School of American Studies Public9 to 12 | ||
Digital Arts and Cinema Technology High School Public9 to 12 |
School ratings and boundaries are provided by GreatSchools.org and Pitney Bowes. This information should only be used as a reference. Proximity or boundaries shown here are not a guarantee of enrollment. Please reach out to schools directly to verify all information and enrollment eligibility.
Neighborhood Map and Transit
No guarantee, warranty or representation of any kind is made regarding the completeness or accuracy of descriptions or measurements (including square footage measurements and property condition), such should be independently verified, and Compass, Inc., its subsidiaries, affiliates and their agents and associated third parties expressly disclaims any liability in connection therewith. Photos may be virtually staged or digitally enhanced and may not reflect actual property conditions. Offers of compensation are subject to change at the discretion of the owner. No financial or legal advice provided. Equal Housing Opportunity.
This information is not verified for authenticity or accuracy and is not guaranteed and may not reflect all real estate activity in the market. ©2026 The Real Estate Board of New York, Inc., All rights reserved. The source of the displayed data is either the property owner or public record provided by non-governmental third parties. It is believed to be reliable but not guaranteed. This information is provided exclusively for consumers’ personal, non-commercial use. The data relating to real estate for sale on this website comes in part from the IDX Program of OneKey® MLS. Information Copyright 2026, OneKey® MLS. All data is deemed reliable but is not guaranteed accurate by Compass. See Terms of Service for additional restrictions. Compass · Tel: 212-913-9058 · New York, NY Listing information for certain New York City properties provided courtesy of the Real Estate Board of New York’s Residential Listing Service (the "RLS"). The information contained in this listing has not been verified by the RLS and should be verified by the consumer. The listing information provided here is for the consumer’s personal, non-commercial use. Retransmission, redistribution or copying of this listing information is strictly prohibited except in connection with a consumer's consideration of the purchase and/or sale of an individual property. This listing information is not verified for authenticity or accuracy and is not guaranteed and may not reflect all real estate activity in the market. ©2026 The Real Estate Board of New York, Inc., all rights reserved. This information is not guaranteed, should be independently verified and may not reflect all real estate activity in the market. Offers of compensation set forth here are for other RLSParticipants only and may not reflect other agreements between a consumer and their broker.©2026 The Real Estate Board of New York, Inc., All rights reserved.

























