91 Central Park West, Unit PHA





















Description
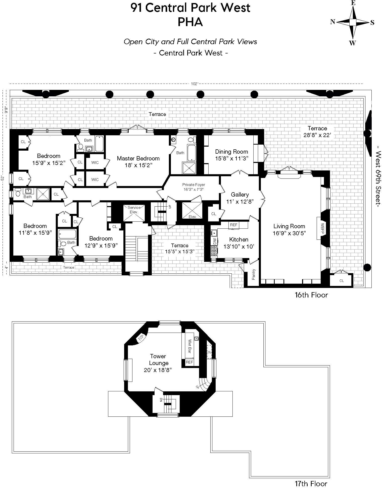
Soaring high above the treetops of Central Park, PHA crowns the prestigious 91 CPW pre-war cooperative as one of the last untouched penthouse properties on this iconic stretch. This trophy residence is wrapped by sprawling...Prime Central Park West Penthouse. Extraordinary terrace with 100 linear feet of Central Park frontage. Living, dining and two of four bedrooms including the master (and two en-suite bathrooms) directly face the Park. Please note, Local Law 11 will be completed in Spring 2019.
Soaring high above the treetops of Central Park, PHA crowns the prestigious 91 CPW pre-war cooperative as one of the last untouched penthouse properties on this iconic stretch. This trophy residence is wrapped by sprawling terraces that showcase an extraordinary 100 linear feet of prime Central Park frontage. Spanning two floors with four bedrooms and four bathrooms including the building's skyline piercing Tower, PHA presents a rare opportunity for a distinguished buyer to put his/her unique mark on Central Park West.
Over the past two years, the current shareholder has worked diligently with acclaimed AD100 contemporary architectural design firm SheltonMindel (recipient of 28 AIA awards) to pioneer a vision that evolves the space for today while respecting its historical context. In doing so, a meticulous exploration was accomplished to maximize the potential of the Penthouse. This will provide an immense value and blueprint for the successive owner who will also benefit from the Local Law 11 work in progress to the facade and parapets on the private terrace.
A beautifully restored elevator adorned with marquetry, brass and crown molding opens directly to the penthouse's private stone foyer. Through a gallery with a vaulted ceiling are double oak doors that lead to a grand corner living room. Inside, a stunning plaster ceiling over 11 feet high champions the home's exceptional volume. Natural light bathes the interior through large exposures to the south and east. The focal point is a wood-burning fireplace surrounded by an ornate floor-to-ceiling mantle of majestic proportions and craftsmanship.
Both the living room and adjacent sun-flooded dining room open to a magnificent wraparound terrace which comprises over 1,700 exterior square feet and extends the entire length of the building. Perched above Central Park, the outdoor expanse boasts unparalleled views of the skyline to the north, south and east. Multiple access points off the interior allow for free-flowing indoor-outdoor living; coupled with superlative privacy, the terrace provides a seamless retreat for entertaining and al fresco dining.
Back inside, a clandestine sky-lit staircase off the foyer ascends to the pinnacle of the building: PHA's palatial Tower overlooking Central Park. Resplendent stained glass windows that face north and east open to reveal one of the most spectacular vantage points in Manhattan. The lofty ceiling rises over 14 feet putting this chamber's impressive scale on full display. The Tower is complete with a full wood-carved wet bar.
Downstairs, a chef's kitchen is clad in stainless steel and outfitted with a walk-in pantry. The existing sleeping quarters are located on the north side of the residence. Four large bedrooms all feature en-suite bathrooms, custom millwork and bespoke carpentry; two of these rooms have direct Park vistas. The master is 18-feet-wide with parquet floors and two glass doors for accessing the terrace.
91 CPW is a premier, full-service Upper West Side cooperative situated on the northwest corner of West 69th Street and sits directly across from a coveted pedestrian entrance to Central Park. Designed by renowned architectural firm Schwartz & Gross (whose other notable works include The Mark Hotel and many prestigious residential buildings along Fifth Avenue, Park Avenue and Central Park West) and completed in 1929, this 16-story, 94 residence building features a stately brick, stone and terra cotta facade. Crafted in the Neo-Renaissance style with Beaux-Arts elements, the building is replete with amenities including a full-time doorman, live-in resident manager, fitness center, children's playroom, central laundry room and assigned storage.
Listing Agent
henry@compass.comP: (917)-686-3739
Amenities
- Primary Ensuite
- Doorman
- Full-Time Doorman
- Central Park Views
- Park Views
- City Views
- Private Terrace
- Private Wrap Around Terrace
Property Details for 91 Central Park West, Unit PHA
| Status | Temporarily Off Market |
|---|---|
| Days on Market | 150 |
| Taxes | - |
| Maintenance | $7,871 / month |
| Min. Down Pymt | - |
| Total Rooms | 8.0 |
| Compass Type | Co-op |
| MLS Type | - |
| Year Built | 1929 |
| County | New York County |
| Buyer's Agent Compensation | 2.5% |
Building
91 Central Park West
Location
Building Information for 91 Central Park West, Unit PHA
Payment Calculator
$89,508 per month
30 year fixed, 6.15% Interest
$81,637
$0
$7,871
Property History for 91 Central Park West, Unit PHA
| Date | Event & Source | Price |
|---|---|---|
| 11/25/2019 | $17,500,000 -0.7% / yr | |
| 04/05/2019 | Permanently Off Market Manual | — |
| 01/22/2019 | Price Change Manual | $16,750,000 |
| 11/06/2018 | Listed (Active) Manual | $17,995,000 |
| 07/30/2018 | $17,995,000 | |
| 02/02/2018 | $22,000,000 | |
| 09/29/2015 | $18,000,000 | |
| 09/29/2015 | $18,000,000 | |
| 11/18/2014 | $27,500,000 |
For completeness, Compass often displays two records for one sale: the MLS record and the public record.
Public Records for 91 Central Park West, Unit PHA
Schools near 91 Central Park West, Unit PHA
Rating | School | Type | Grades | Distance |
|---|---|---|---|---|
| Public - | PK to 5 | |||
| Public - | K to 12 | |||
| Public - | 9 to 12 | |||
| Public - | 9 to 12 |
Rating | School | Distance |
|---|---|---|
P.S. 452 PublicPK to 5 | ||
Special Music School PublicK to 12 | ||
Urban Assembly School for Media Studies Public9 to 12 | ||
High School for Law, Advocacy and Community Justice Public9 to 12 |
School ratings and boundaries are provided by GreatSchools.org and Pitney Bowes. This information should only be used as a reference. Proximity or boundaries shown here are not a guarantee of enrollment. Please reach out to schools directly to verify all information and enrollment eligibility.
Neighborhood Map and Transit
Similar Homes
Similar Sold Homes
Explore Nearby Homes
- Central Park South Homes for Sale
- Hell's Kitchen Homes for Sale
- Lincoln Square Homes for Sale
- Midtown Manhattan Homes for Sale
- Upper West Side Homes for Sale
- Midtown Central Homes for Sale
- Theater District Homes for Sale
- Upper East Side Homes for Sale
- Lenox Hill Homes for Sale
- Midtown East Homes for Sale
- Carnegie Hill Homes for Sale
- Bergenwood Homes for Sale
- Turtle Bay Homes for Sale
- Bryant Park Homes for Sale
- Hudson Yards Homes for Sale
- Manhattan Homes for Sale
- New York Homes for Sale
- West New York Homes for Sale
- Guttenberg Homes for Sale
- North Bergen Homes for Sale
- Weehawken Homes for Sale
- Edgewater Homes for Sale
- Union City Homes for Sale
- Hoboken Homes for Sale
- Cliffside Park Homes for Sale
- Queens Homes for Sale
- Fairview Homes for Sale
- Brooklyn Homes for Sale
- Secaucus Homes for Sale
- Ridgefield Homes for Sale
- 10019 Homes for Sale
- 10024 Homes for Sale
- 10069 Homes for Sale
- 10107 Homes for Sale
- 10106 Homes for Sale
- 10065 Homes for Sale
- 10028 Homes for Sale
- 10022 Homes for Sale
- 10021 Homes for Sale
- 10020 Homes for Sale
- 10036 Homes for Sale
- 10153 Homes for Sale
- 07093 Homes for Sale
- 10151 Homes for Sale
- 10025 Homes for Sale
No guarantee, warranty or representation of any kind is made regarding the completeness or accuracy of descriptions or measurements (including square footage measurements and property condition), such should be independently verified, and Compass, Inc., its subsidiaries, affiliates and their agents and associated third parties expressly disclaims any liability in connection therewith. Photos may be virtually staged or digitally enhanced and may not reflect actual property conditions. Offers of compensation are subject to change at the discretion of the seller. No financial or legal advice provided. Equal Housing Opportunity.
This information is not verified for authenticity or accuracy and is not guaranteed and may not reflect all real estate activity in the market. ©2026 The Real Estate Board of New York, Inc., All rights reserved. The source of the displayed data is either the property owner or public record provided by non-governmental third parties. It is believed to be reliable but not guaranteed. This information is provided exclusively for consumers’ personal, non-commercial use. The data relating to real estate for sale on this website comes in part from the IDX Program of OneKey® MLS. Information Copyright 2026, OneKey® MLS. All data is deemed reliable but is not guaranteed accurate by Compass. See Terms of Service for additional restrictions. Compass · Tel: 212-913-9058 · New York, NY Listing information for certain New York City properties provided courtesy of the Real Estate Board of New York’s Residential Listing Service (the "RLS"). The information contained in this listing has not been verified by the RLS and should be verified by the consumer. The listing information provided here is for the consumer’s personal, non-commercial use. Retransmission, redistribution or copying of this listing information is strictly prohibited except in connection with a consumer's consideration of the purchase and/or sale of an individual property. This listing information is not verified for authenticity or accuracy and is not guaranteed and may not reflect all real estate activity in the market. ©2026 The Real Estate Board of New York, Inc., all rights reserved. This information is not guaranteed, should be independently verified and may not reflect all real estate activity in the market. Offers of compensation set forth here are for other RLSParticipants only and may not reflect other agreements between a consumer and their broker.©2026 The Real Estate Board of New York, Inc., All rights reserved.






















1