9059 William Cody Dr


















































Description
Retreat...Welcome to this beautifully remodeled Evergreen retreat, where mountain charm seamlessly blends with modern sophistication! The main level welcomes you with gleaming wood floors and a spacious, open designer kitchen outfitted with alder wood cabinetry and high-end appliances from Viking, Bosch, Dacor, and Kitchen Aid—truly a chef's delight! The great room is the heart of the home, with its jaw-dropping 2-story Virginia stone gas fireplace and cherry wood mantle, perfect for those cozy evenings.
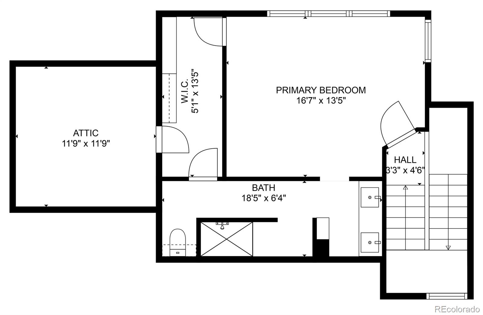
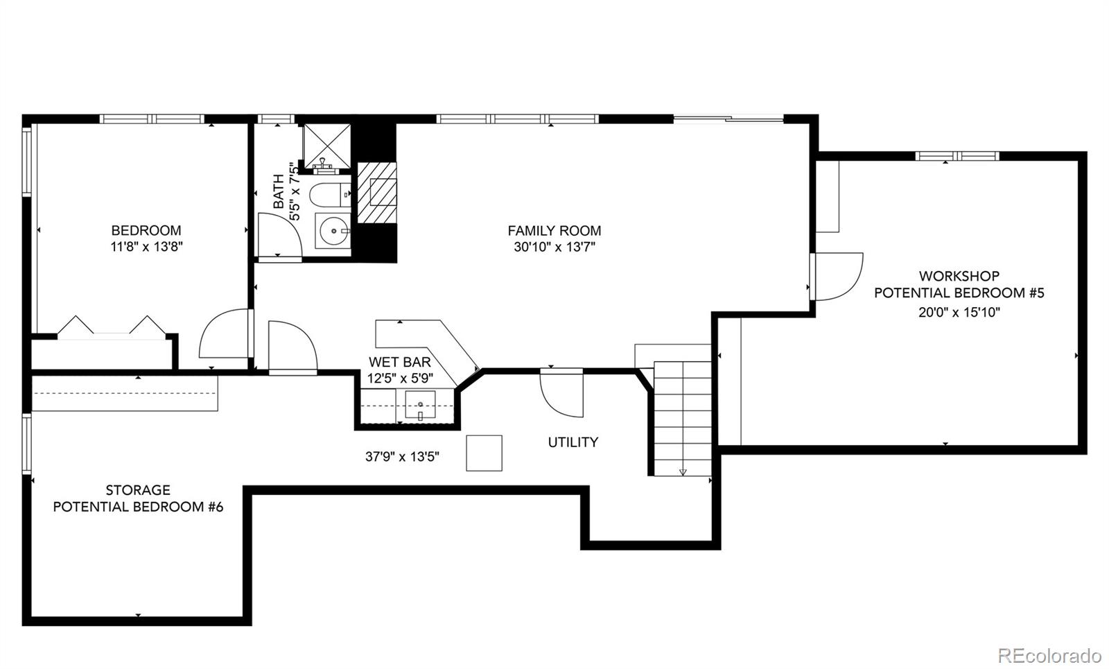
Retreat to your private primary suite located on its own level, offering a luxurious oversized walk-in shower that makes every day feel like a spa day. The finished walkout basement is an entertainer's dream, complete with a wet bar and a second gas fireplace. Feeling crafty? The lower level offers a workshop with a dust collection ventilation system and a storage room; both could be transformed into two additional bedrooms. Step outside and soak in the views of Shadow Mountain from two spacious decks, where tranquility and natural beauty abound. A pond-like water feature adds an extra touch of serenity to your outdoor experience. Just down the street, you'll find private neighborhood access to Flying J Open Space, an ideal spot for daily hikes and outdoor adventures. Plus, the convenience of Aspen Park and easy access to Highway 285 are just minutes away. Your private paradise awaits!
Property Details for 9059 William Cody Drive
Property Details for 9059 William Cody Drive
| Status | Closed |
|---|---|
| MLS # | 5202407 |
| Days on Compass | 10 |
| Taxes | $3,504 / year |
| HOA Fees | $30 / year |
| Condo/Co-op Fees | - |
| Compass Type | Single Family |
| MLS Type | Residential / Single Family Residence |
| Year Built | 1993 |
| Lot Size | 0.99 AC / 42,935 SF |
| County | Jefferson County |
Location
Sold By Madison & Company Properties, Ian Erlandson
Virtual Tour
Building Information for 9059 William Cody Drive
Payment Calculator
$5,193 per month
30 year fixed, 6.15% Interest
$4,898
$292
$3
Property Information for 9059 William Cody Drive
- Building Area Total (SqFt Total): 3081
- Sqft Total: 3081
- Living Area (SqFt Finished): 2782
- Above Grade Finished Area: 1814
- Living SqFt: 1814
- Sq Ft Apx: 968
- Area Source: Public Records
- PSF Total: 326
- PSF Above Grade: 554
- PSF Finished: 361
- Master on Main: Yes
- Entry Location: Ground
- Direction Faces: Northwest
- Room and Floor: Great Room-Main-1, Dining Room-Main-1, Kitchen-Main-1, Bathroom (1/2)-Main-1, Bathroom (Full)-Main-1, Bedroom-Main-1, Bedroom-Main-2, Laundry-Main-1, Primary Bedroom-Upper-1, Primary Bathroom (3/4)-Upper-1, Family Room-Basement-1, Bedroom-Basement-1, Bathroom (3/4)-Basement-1, Workshop-Basement-1, Bonus Room-Basement-1, Utility Room-Basement-1
- Room Count: 16
- Basement: Bath/Stubbed, Daylight, Exterior Entry, Finished, Full, Walk-Out Access
- Foundation Details: Slab
- Fireplaces Total: 2
- Fireplace Features: Basement, Gas, Gas Log, Great Room
- Heating: Forced Air, Natural Gas
- Cooling: None
- Interior Features: Ceiling Fan(s), Eat-in Kitchen, Granite Counters, High Ceilings, Open Floorplan, Pantry, Primary Suite, Quartz Counters, Vaulted Ceiling(s), Walk-In Closet(s), Wet Bar
- Security Features: Carbon Monoxide Detector(s), Smoke Detector(s), Video Doorbell
- Flooring: Carpet, Tile, Wood
- Window Features: Double Pane Windows, Skylight(s), Window Coverings, Window Treatments
- Appliances: Bar Fridge, Convection Oven, Dishwasher, Disposal, Double Oven, Dryer, Gas Water Heater, Microwave, Range, Range Hood, Refrigerator, Self Cleaning Oven, Washer
- Laundry Features: Self Cleaning Oven, Double Oven, Dishwasher, Refrigerator, Washer, Dryer, Microwave, Disposal, Fire Alarm
- Virtual Tour URL Unbranded: https://my.matterport.com/show/?m=6j3j554Lihs
- Virtual Tour URL Unbranded 2: https://youtu.be/ygVCnCKcdm4
- Bedrooms Total: 4
- Upper Level Bedrooms: 1
- Main Level Bedrooms: 2
- Lower Level Bedrooms: 0
- Basement Level Bedrooms: 1
- Bathrooms Total: 4
- Upper Level Bathrooms: 1
- Main Level Bathrooms: 2
- Lower Level Bathrooms: 0
- Basement Level Bathrooms: 1
- Bathrooms Full: 1
- Bathrooms Three Quarter: 2
- Bathrooms Half: 1
- Bathrooms One Quarter: 0
- Room Type: Great Room
- Room Level: Main
- Room Description: 2 story stacked Virginia stone gas fireplace
- Room Type: Dining Room
- Room Level: Main
- Room Description: Part of the great room with sliding door to deck with views of Shadow Mountain
- Room Type: Kitchen
- Room Level: Main
- Room Description: Remodeled kitchen with view of Shadow Mountain
- Room Type: Bathroom (1/2)
- Room Level: Main
- Room Description: Remodeled
- Room Type: Bathroom (Full)
- Room Level: Main
- Room Description: Remodeled
- Room Type: Bedroom
- Room Level: Main
- Room Description: Bedroom #1
- Room Type: Bedroom
- Room Level: Main
- Room Description: Bedroom #2
- Room Type: Laundry
- Room Level: Main
- Room Description: In mudroom from garage. Closet with shelving and shelving above washer/dryer
- Room Type: Primary Bedroom
- Room Level: Upper
- Room Description: Walkthrough primary closet
- Room Type: Primary Bathroom (3/4)
- Room Level: Upper
- Room Description: Fully updated with large walk-in shower and skylight
- Room Type: Family Room
- Room Level: Basement
- Room Description: Walkout basement with tall ceilings, wetbar and basement fireplace
- Room Type: Bedroom
- Room Level: Basement
- Room Description: bedroom #4
- Room Type: Bathroom (3/4)
- Room Level: Basement
- Room Type: Workshop
- Room Level: Basement
- Room Description: Dust collection ventilation system for woodworking. Potential bedroom #5
- Room Type: Bonus Room
- Room Level: Basement
- Room Description: Storage space with shelving. Potential bedroom #6
- Room Type: Utility Room
- Room Level: Basement
- Room Description: Furnace installed 2020
- Parking Features: 220 Volts, Asphalt, Lighted, Storage
- Attached Garage: Yes
- Parking Type: Garage (Attached), Off-Street
- Parking Description: Garage (Attached)-2, Off-Street-6
- Parking Details: 2, 6
- Parking Total: 2
- Garage Spaces: 2
- Offstreet Spaces: 6
- Parking Count: 8
- Carport Spaces: 0
- Reserved Spaces: 0
- RV Spaces: 0
- Association Fee Total Annual: $30
- Senior Community: No
- Elementary School: Marshdale
- Elementary School District: Jefferson County R-1
- Middle Or Junior School: West Jefferson
- Middle Or Junior School District: Jefferson County R-1
- High School: Conifer
- High School District: Jefferson County R-1
- Lot Size Acres: .99
- Lot Size Square Feet: 42935
- Lot Features: Fire Mitigation, Foothills, Landscaped, Many Trees, Mountainous, Sloped, Sprinklers In Front
- Zoning: A-2
- Fencing: None
- Accessibility Features: Wooded, Deciduous Trees, Sloping Lot, House/Lot Faces NW, Paved
- Distance To Bus: 7
- Distance To Bus Units: Minutes
- Property Exclusions: Sellers personal property, staging items, outdoor furniture, tools and personal items in garage and storage room, stacked newly cut wood by septic, and simply safe cameras.
- Green Verification Count: 0
- Out Building Count: 0
- Horse: No
- Construction Materials: Cedar, Frame, Wood Siding
- Property Condition: Updated/Remodeled
- Roof: Composition
- Exterior Features: Gas Valve, Heated Gutters, Water Feature
- Patio And Porch Features: Covered, Deck, Front Porch
- Livable Structure Count: 0
- Water Included: Yes
- Water Source: Well
- Well Type: Private
- Well Usage: Household Inside Only
- Issued Well Permit Numbers: 00000
- Utilities: Cable Available, Electricity Connected, Internet Access (Wired), Natural Gas Connected, Phone Available
- Sewer: Septic Tank
- Electric: 110V, 220 Volts
Property History for 9059 William Cody Drive
| Date | Event & Source | Price | Appreciation |
|---|---|---|---|
| Nov 18, 2024 | Sold (Public Record) Public Record #1545075005 | $1,005,000 | — |
| Date | Event & Source | Price |
|---|---|---|
| 11/18/2024 | Sold (Public Record) Public Record #1545075005 | $1,005,000 |
For completeness, Compass often displays two records for one sale: the MLS record and the public record.
Public Records for 9059 William Cody Drive
Schools near 9059 William Cody Drive
Rating | School | Type | Grades | Distance |
|---|---|---|---|---|
| Public - | K to 5 | |||
| Public - | 6 to 8 | |||
| Public - | 9 to 12 | |||
| Charter - | K to 8 |
Rating | School | Distance |
|---|---|---|
Marshdale Elementary School PublicK to 5 | ||
West Jefferson Middle School Public6 to 8 | ||
Conifer High School Public9 to 12 | ||
Rocky Mountain Academy Of Evergreen CharterK to 8 |
School ratings and boundaries are provided by GreatSchools.org and Pitney Bowes. This information should only be used as a reference. Proximity or boundaries shown here are not a guarantee of enrollment. Please reach out to schools directly to verify all information and enrollment eligibility.
Similar Homes
Similar Sold Homes
Explore Nearby Homes
- Genesse South Homes for Sale
- Evergreen Meadows Homes for Sale
- Wah Keeney Park Homes for Sale
- Genesee Homes for Sale
- Doubleheader Homes for Sale
- Evergreen Heights and Estates Homes for Sale
- Kerr Gulch Homes for Sale
- El Pinal Homes for Sale
- Hiwan Estates and Fairway Homes for Sale
- Tanoa and Hiwan South Homes for Sale
- Aspen Park Homes for Sale
- Golden Gate Canyon Homes for Sale
- Shadow Mountain Homes for Sale
- North Turkey Creek Homes for Sale
- Upper Bear Creek Homes for Sale
- Bailey Homes for Sale
- Kittredge Homes for Sale
- Indian Hills Homes for Sale
- Evergreen Homes for Sale
- Idaho Springs Homes for Sale
- Central City Homes for Sale
- Idledale Homes for Sale
- Pine Homes for Sale
- Morrison Homes for Sale
- Black Hawk Homes for Sale
- Golden Homes for Sale
- Lakewood Homes for Sale
- Shawnee Homes for Sale
- Como Homes for Sale
- Jefferson Homes for Sale
- 80465 Homes for Sale
- 80403 Homes for Sale
- 80401 Homes for Sale
- 80421 Homes for Sale
- 80433 Homes for Sale
- 80454 Homes for Sale
- 80452 Homes for Sale
- 80457 Homes for Sale
- 80470 Homes for Sale
- 80422 Homes for Sale
- 80453 Homes for Sale
- 80427 Homes for Sale
- 80127 Homes for Sale
- 80228 Homes for Sale
- 80227 Homes for Sale
No guarantee, warranty or representation of any kind is made regarding the completeness or accuracy of descriptions or measurements (including square footage measurements and property condition), such should be independently verified, and Compass, Inc., its subsidiaries, affiliates and their agents and associated third parties expressly disclaims any liability in connection therewith. Photos may be virtually staged or digitally enhanced and may not reflect actual property conditions. Offers of compensation are subject to change at the discretion of the seller. No financial or legal advice provided. Equal Housing Opportunity.
Based on information submitted to the MLS GRID as of 11/18/2024 02:18 PM. All data is obtained from various sources and may not have been verified by broker or MLS GRID. Supplied Open House Information is subject to change without notice. All information should be independently reviewed and verified for accuracy. Properties may or may not be listed by the office/agent presenting the information. Properties displayed may be listed or sold by various participants in the MLS. IDX information is provided exclusively for consumers’ personal, non-commercial use and may not be used for any purpose other than to identify prospective properties consumers may be interested in purchasing. The data is deemed reliable but is not guaranteed by MLS GRID. Use of the MLS GRID data may be subject to an end user license agreement prescribed by the applicable MLS of the Member Participant, if any, and as amended from time to time.



















































1