878 Carroll Street














Description
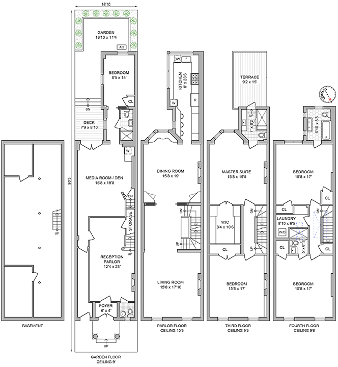
Built in 1901 in the Neo-Georgian style, the first floor greets you with a large reception parlor.. A...878 Carroll Street is this millennium’s rendition of a classic Park Slope Townhouse. A 5 bedroom, 4 bathroom fully renovated house with all the modern amenities which today's Brooklynites desire: central air conditioning, high end kitchen and bathrooms, and a dedicated parking spot nearby. All of this located on one of Park Slope’s premier blocks, Carroll St between 8thAve and Prospect Park West.
Built in 1901 in the Neo-Georgian style, the first floor greets you with a large reception parlor.. A grand set of stairs brings you to the center parlor, with the living room located at the front of the house. Centered around an original, decorative fireplace, the formal living room exudes old world charm. Two large windows let light stream in and original moldings border the room. Past the center parlor is the formal dining room, with the original wooden paneling, coffered ceilings and stained glass all meticulously restored and maintained. Another decorative fireplace anchors the room and set the scene for a grand entertaining space. The kitchen is adjacent to the dining room and has been fully renovated. Oversized south and east facing windows create an abundantly bright space and the white caesarstone countertops, Sub Zero fridge, six burner Wolfe stove are all perfectly oriented.
The third floor of the home functions as the master floor. A bright, south facing master bedroom is quiet and serene. Large enough for a king sized bed and any other bedroom furniture you may have, although the walk in closet means additional storage is not necessary. A custom shelving system lines the walls of the walk in, including drawers, hanging space and a wall of shoe storage. The ensuite bathroom has a glass walk in shower, glass floor tiles with radiant heat and marble mini mosaic walls. There is also a decked terrace off of the bathroom, making the master suite the perfect escape. The front room is currently used as a den/TV room, with two large windows and can easily be repurposed as the fifth bedroom.
The top floor has two bedrooms, each with their own bathroom. The front bedroom faces north and its bathroom has a large skylight, a glass walk in shower and a large closet. The rear bedroom has a south facing window, another large closet and the bathroom has a large tub and a beautiful “trough” style double sink with double faucets. There is also a dedicated laundry room on the top floor with a large washer and dryer, folding station and a skylight.
On the first floor of the house, through the reception parlor is an incredibly functional space. A large room is currently used a kids' play space, with built-in storage, a TV and refrigerator. Past the playroom is a full bathroom with a stall shower and a guest bedroom for a great guest suite.
The backyard is also accessed from this floor. A large deck leads to an L-shaped garden, with mature vines and landscaped beds surrounding the perimeter.
Located on the park block of Carroll street, Prospect Park is practically at your doorstep, along with everything that comes with it. The saturday farmers market at Grand Army Plaza, the long meadow for picnicking, the scenic running loop and hundred of acres to explore. The 2 and 3 trains are serviced by Grand Army Plaza and the B and Q trains by the 7th Avenue stop. 7th Avenue is two blocks away, were you will find all of your daily needs(pharmacies, grocery stores, gyms, etc) as well as lively restaurants, cafes and bakeries. The house in the PS 321 school zone.
Listing Agents
joe.ryan@compass.comP: (917)-453-2676
ryanandryan@compass.comP: (347)-276-5165
Amenities
- Primary Ensuite
- Private Terrace
- Deck
- Decorative Fireplace
- Private Entrance
- Hardwood Floors
- Washer / Dryer in Unit
- Central AC
Property Details for 878 Carroll Street
| Status | Rented |
|---|---|
| Days on Market | 67 |
| Rental Incentives | - |
| Available Date | 08/15/2020 |
| Lease Term | Lease Length Min/Max: 12-12 mo |
| Furnished | Fully Furnished |
| Total Rooms | 11.0 |
| Compass Type | Townhouse |
| MLS Type | - |
| Year Built | 1901 |
| Lot Size | 1,518 SF / 17' x 90' |
| County | Kings County |
Building
878 Carroll St
Location
Building Information for 878 Carroll Street
Property History for 878 Carroll Street
| Date | Event & Source | Price | Appreciation |
|---|---|---|---|
| Sep 8, 2020 | Rented Manual | — | |
| Jul 27, 2020 | Price Change Manual | $13,950 | — |
| Jul 2, 2020 | Listed (Active) Manual | $17,000 | — |
| Date | Event & Source | Price |
|---|---|---|
| 09/08/2020 | Rented Manual | — |
| 07/27/2020 | Price Change Manual | $13,950 |
| 07/02/2020 | Listed (Active) Manual | $17,000 |
For completeness, Compass often displays two records for one sale: the MLS record and the public record.
Schools near 878 Carroll Street
Rating | School | Type | Grades | Distance |
|---|---|---|---|---|
| Public - | K to 5 | |||
| Public - | 6 to 12 | |||
| Public - | 9 to 12 | |||
| Public - | 9 to 12 |
Rating | School | Distance |
|---|---|---|
P.S. 321 William Penn PublicK to 5 | ||
Park Slope Collegiate Public6 to 12 | ||
Cyberarts Studio Academy Public9 to 12 | ||
Millennium Brooklyn High School Public9 to 12 |
School ratings and boundaries are provided by GreatSchools.org and Pitney Bowes. This information should only be used as a reference. Proximity or boundaries shown here are not a guarantee of enrollment. Please reach out to schools directly to verify all information and enrollment eligibility.
Neighborhood Map and Transit
No guarantee, warranty or representation of any kind is made regarding the completeness or accuracy of descriptions or measurements (including square footage measurements and property condition), such should be independently verified, and Compass, Inc., its subsidiaries, affiliates and their agents and associated third parties expressly disclaims any liability in connection therewith. Photos may be virtually staged or digitally enhanced and may not reflect actual property conditions. Offers of compensation are subject to change at the discretion of the owner. No financial or legal advice provided. Equal Housing Opportunity.
This information is not verified for authenticity or accuracy and is not guaranteed and may not reflect all real estate activity in the market. ©2026 The Real Estate Board of New York, Inc., All rights reserved. The source of the displayed data is either the property owner or public record provided by non-governmental third parties. It is believed to be reliable but not guaranteed. This information is provided exclusively for consumers’ personal, non-commercial use. The data relating to real estate for sale on this website comes in part from the IDX Program of OneKey® MLS. Information Copyright 2026, OneKey® MLS. All data is deemed reliable but is not guaranteed accurate by Compass. See Terms of Service for additional restrictions. Compass · Tel: 212-913-9058 · New York, NY Listing information for certain New York City properties provided courtesy of the Real Estate Board of New York’s Residential Listing Service (the "RLS"). The information contained in this listing has not been verified by the RLS and should be verified by the consumer. The listing information provided here is for the consumer’s personal, non-commercial use. Retransmission, redistribution or copying of this listing information is strictly prohibited except in connection with a consumer's consideration of the purchase and/or sale of an individual property. This listing information is not verified for authenticity or accuracy and is not guaranteed and may not reflect all real estate activity in the market. ©2026 The Real Estate Board of New York, Inc., all rights reserved. This information is not guaranteed, should be independently verified and may not reflect all real estate activity in the market. Offers of compensation set forth here are for other RLSParticipants only and may not reflect other agreements between a consumer and their broker.©2026 The Real Estate Board of New York, Inc., All rights reserved.















