83 Jane Street, Unit TH1





























Description
For the first time in 25 years, 83 Jane St emerges onto the market, offering a rare chance to own a piece of Manhattan’s history in this prized West Village location.
With a rich heritage in the Bayard and Ludlow estates, dating back to the mid-1800s, this residence seamlessly blends historic charm and modern sophistication. Conveniently located on famed Jane St, this home sits amongst some of downtown Manhattans’ most prestigious and significant...Rare Opportunity: 23′ Wide Townhouse on Jane Street
For the first time in 25 years, 83 Jane St emerges onto the market, offering a rare chance to own a piece of Manhattan’s history in this prized West Village location.
With a rich heritage in the Bayard and Ludlow estates, dating back to the mid-1800s, this residence seamlessly blends historic charm and modern sophistication. Conveniently located on famed Jane St, this home sits amongst some of downtown Manhattans’ most prestigious and significant properties.
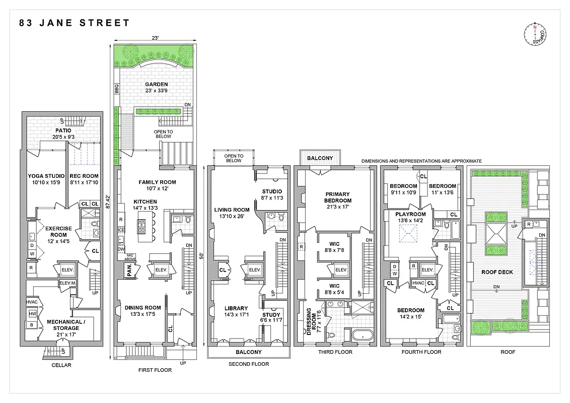
Thoughtfully renovated in 1999 to transform it into a single-family residence, this townhouse offers modern amenities for effortless living, including an elevator and fully built roof deck. This expansive home spans five floors and boasts over five generously appointed bedrooms, including a library and additional study for added versatility. With four full baths, two half baths, four wood-burning fireplaces, and over 6,000 square feet of interior living space, this home offers both scale and comfort.
Step outside to indulge in almost 2,000 square feet of outdoor space, including a roof deck offering city skyline views and a two-tour garden allowing light to illuminate to the lower level of the home. With a full-width cast iron balcony at the second floor with three French doors leading out to it, there is a rare touch of the Anglo-Italianate style.
Don’t miss this unparalleled opportunity to own a piece of New York City’s architectural legacy. With its prime location, spacious interiors, and timeless elegance, 83 Jane St awaits its next discerning owner to call it home.
Listing Agents
stephen@compass.comP: (646)-761-7038
clayton@compass.comP: (212)-960-3306
hudsonadvisory@compass.comP: (646)-845-7622
Amenities
- Primary Ensuite
- Private Yard
- Private Roof Deck
- Deck
- Fireplace
- Private Entrance
- Hardwood Floors
- High Ceilings
Property Details for 83 Jane Street, Unit TH1
| Status | Sold |
|---|---|
| Days on Market | 119 |
| Taxes | $4,299 / month |
| Maintenance | - |
| Min. Down Pymt | 20% |
| Total Rooms | 16.0 |
| Compass Type | Single Family |
| MLS Type | - |
| Year Built | 1899 |
| Lot Size | 2,011 SF / 23' x 87' |
| County | New York County |
| Buyer's Agent Compensation | 2.25% |
Building
83 Jane St
Location
Sold By Elliman
Building Information for 83 Jane Street, Unit TH1
Payment Calculator
$75,214 per month
30 year fixed, 6.15% Interest
$70,915
$4,299
$0
Property History for 83 Jane Street, Unit TH1
| Date | Event & Source | Price | Appreciation |
|---|---|---|---|
| Oct 1, 2025 | Sold Manual | $14,550,126 | — |
| Jun 5, 2025 | Contract Signed Manual | — | |
| Mar 31, 2025 | Price Change Manual | $14,995,000 | — |
| Feb 5, 2025 | Listed (Active) Manual | $16,250,000 | — |
| Date | Event & Source | Price |
|---|---|---|
| 10/01/2025 | Sold Manual | $14,550,126 |
| 06/05/2025 | Contract Signed Manual | — |
| 03/31/2025 | Price Change Manual | $14,995,000 |
| 02/05/2025 | Listed (Active) Manual | $16,250,000 |
For completeness, Compass often displays two records for one sale: the MLS record and the public record.
Schools near 83 Jane Street, Unit TH1
Rating | School | Type | Grades | Distance |
|---|---|---|---|---|
| Public - | PK to 5 | |||
| Public - | 6 to 8 | |||
| Public - | 6 to 8 | |||
| Public - | 6 to 8 |
Rating | School | Distance |
|---|---|---|
P.S. 41 Greenwich Village PublicPK to 5 | ||
Middle 297 Public6 to 8 | ||
Nyc Lab Ms For Collaborative Studies Public6 to 8 | ||
Lower Manhattan Community Middle School Public6 to 8 |
School ratings and boundaries are provided by GreatSchools.org and Pitney Bowes. This information should only be used as a reference. Proximity or boundaries shown here are not a guarantee of enrollment. Please reach out to schools directly to verify all information and enrollment eligibility.
Neighborhood Map and Transit
Similar Homes
Similar Sold Homes
Explore Nearby Homes
- Chelsea Homes for Sale
- Downtown Manhattan Homes for Sale
- TriBeCa Homes for Sale
- Meatpacking District Homes for Sale
- West Village Homes for Sale
- Greenwich Village Homes for Sale
- West Chelsea Homes for Sale
- Hudson Square Homes for Sale
- SoHo Homes for Sale
- Flatiron Homes for Sale
- NoHo Homes for Sale
- NoLita Homes for Sale
- Gramercy Homes for Sale
- Little Italy Homes for Sale
- Battery Park City Homes for Sale
- New York Homes for Sale
- Manhattan Homes for Sale
- Hoboken Homes for Sale
- Jersey City Homes for Sale
- Weehawken Homes for Sale
- Union City Homes for Sale
- Brooklyn Homes for Sale
- Queens Homes for Sale
- North Bergen Homes for Sale
- West New York Homes for Sale
- Secaucus Homes for Sale
- Guttenberg Homes for Sale
- Kearny Homes for Sale
- Edgewater Homes for Sale
- Lyndhurst Homes for Sale
- 10011 Homes for Sale
- 10013 Homes for Sale
- 10012 Homes for Sale
- 10003 Homes for Sale
- 10010 Homes for Sale
- 10001 Homes for Sale
- 10282 Homes for Sale
- 10002 Homes for Sale
- 10007 Homes for Sale
- 07310 Homes for Sale
- 07030 Homes for Sale
- 10278 Homes for Sale
- 10199 Homes for Sale
- 10281 Homes for Sale
- 10121 Homes for Sale
No guarantee, warranty or representation of any kind is made regarding the completeness or accuracy of descriptions or measurements (including square footage measurements and property condition), such should be independently verified, and Compass, Inc., its subsidiaries, affiliates and their agents and associated third parties expressly disclaims any liability in connection therewith. Photos may be virtually staged or digitally enhanced and may not reflect actual property conditions. Offers of compensation are subject to change at the discretion of the seller. No financial or legal advice provided. Equal Housing Opportunity.
This information is not verified for authenticity or accuracy and is not guaranteed and may not reflect all real estate activity in the market. ©2026 The Real Estate Board of New York, Inc., All rights reserved. The source of the displayed data is either the property owner or public record provided by non-governmental third parties. It is believed to be reliable but not guaranteed. This information is provided exclusively for consumers’ personal, non-commercial use. The data relating to real estate for sale on this website comes in part from the IDX Program of OneKey® MLS. Information Copyright 2026, OneKey® MLS. All data is deemed reliable but is not guaranteed accurate by Compass. See Terms of Service for additional restrictions. Compass · Tel: 212-913-9058 · New York, NY Listing information for certain New York City properties provided courtesy of the Real Estate Board of New York’s Residential Listing Service (the "RLS"). The information contained in this listing has not been verified by the RLS and should be verified by the consumer. The listing information provided here is for the consumer’s personal, non-commercial use. Retransmission, redistribution or copying of this listing information is strictly prohibited except in connection with a consumer's consideration of the purchase and/or sale of an individual property. This listing information is not verified for authenticity or accuracy and is not guaranteed and may not reflect all real estate activity in the market. ©2026 The Real Estate Board of New York, Inc., all rights reserved. This information is not guaranteed, should be independently verified and may not reflect all real estate activity in the market. Offers of compensation set forth here are for other RLSParticipants only and may not reflect other agreements between a consumer and their broker.©2026 The Real Estate Board of New York, Inc., All rights reserved.
































1