80 7th Avenue








Description
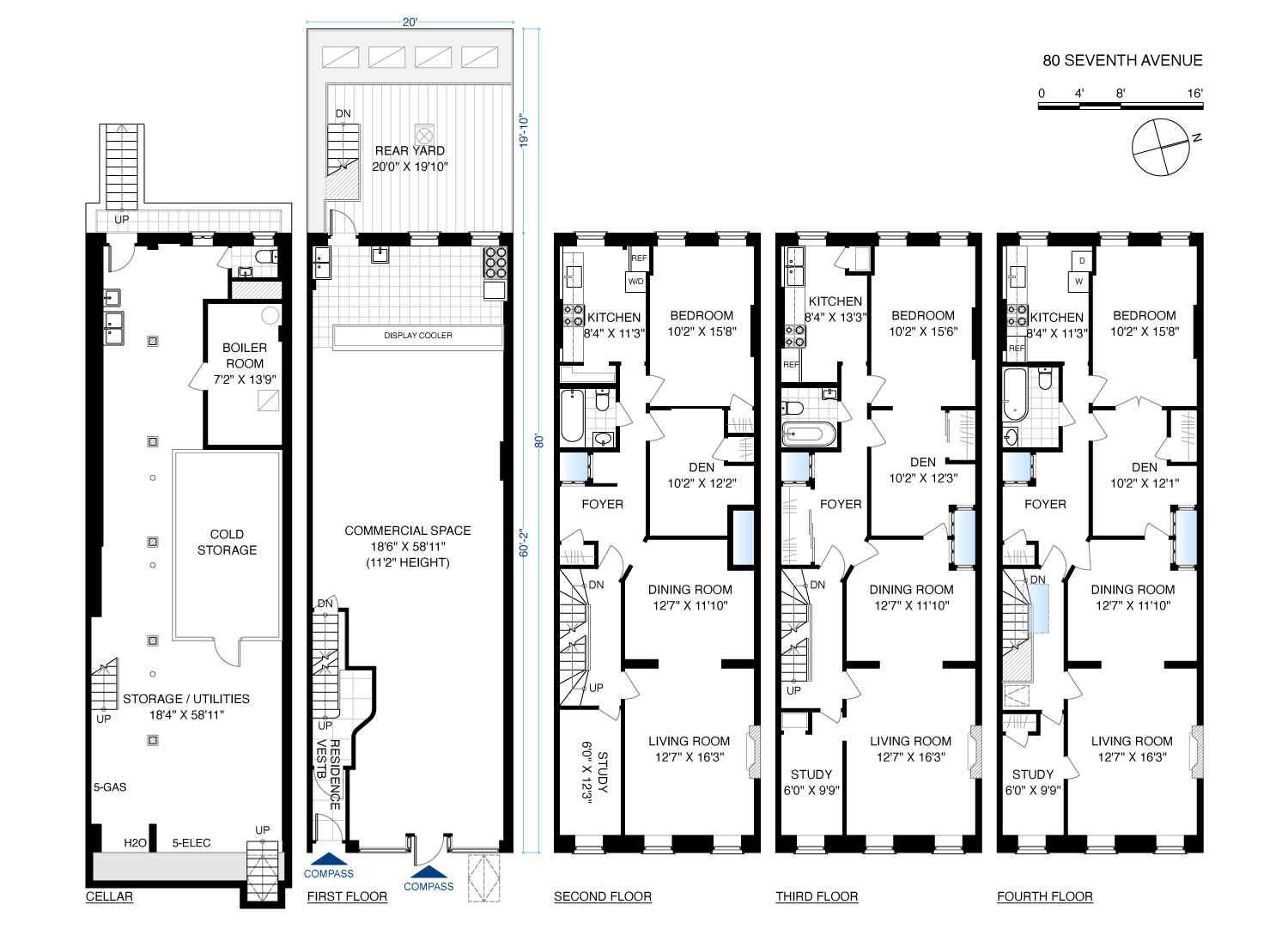
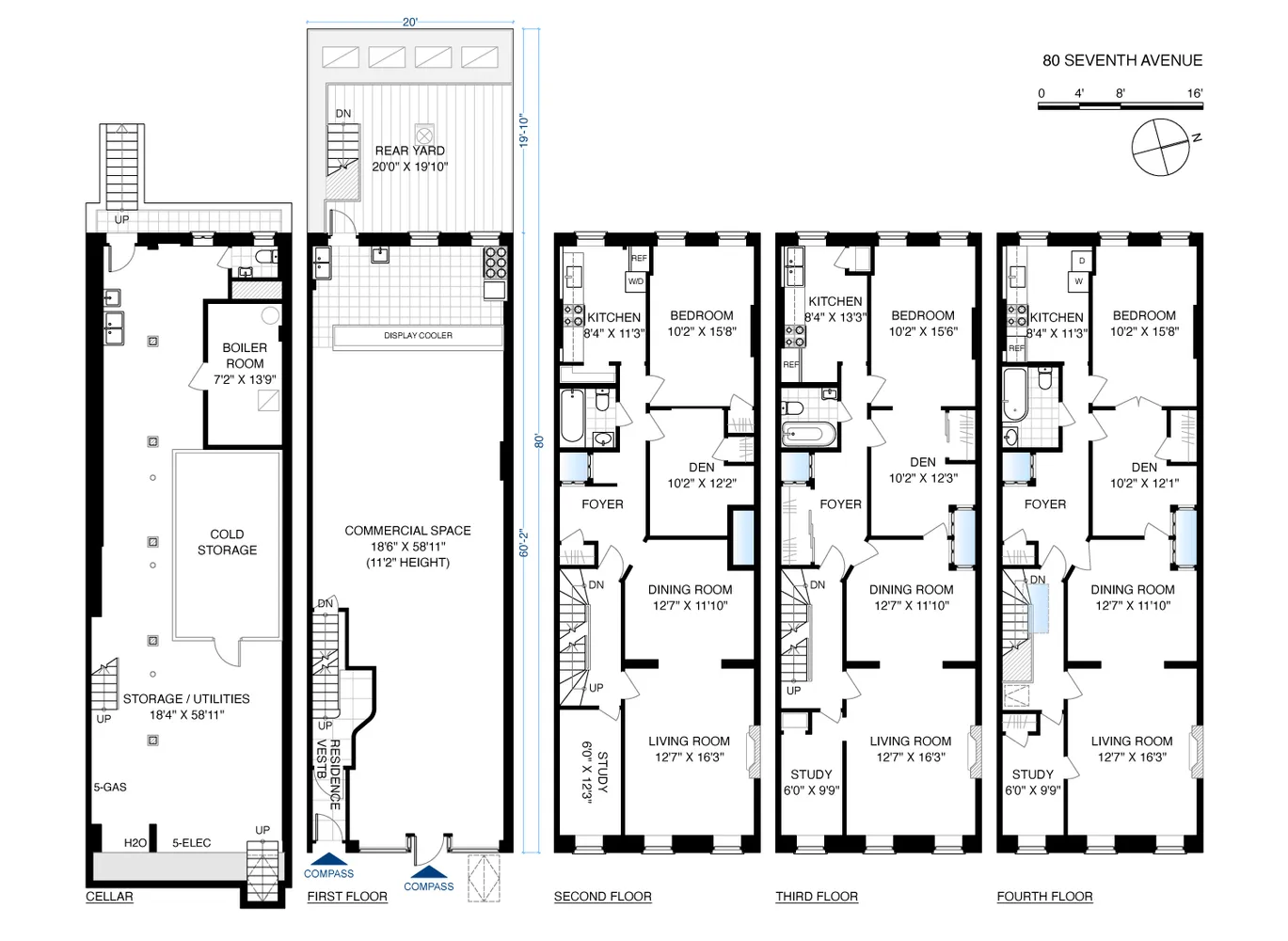
A rare investment opportunity in the heart of Park Slope. This classic, 4,800 square foot four story brownstone consists of a commercial space on the ground floor and three 2-bedroom floor-through free market residential rentals above. Located on Seventh Avenue off Berkeley Place, the property inhabits a densely foot trafficked and highly sought after rental area on Park Slope’s Northside.
Lovingly maintained by the same Owner for over 50 years, the residential units feature...Mixed Use in Prime Park Slope
A rare investment opportunity in the heart of Park Slope. This classic, 4,800 square foot four story brownstone consists of a commercial space on the ground floor and three 2-bedroom floor-through free market residential rentals above. Located on Seventh Avenue off Berkeley Place, the property inhabits a densely foot trafficked and highly sought after rental area on Park Slope’s Northside.
Lovingly maintained by the same Owner for over 50 years, the residential units feature beautiful pre-war details throughout, including original floors, moldings, and fireplaces. At 1,200 square feet per floor and in a prime location near Grand Army Plaza, Prospect Park, and numerous subway lines, these rental units are in high demand in a Park Slope neighborhood exploding in popularity. A successful deli / convenience store operates out of the commercial space, which includes a backyard, full basement and cold storage.
With a projected cap rate approaching 6%, this historic landmark is an ideal investment vehicle for those looking to generate income while participating in the long term price appreciation upside of trophy real estate assets in prime Brooklyn.
Listing Agents
jonah@compass.comP: (631)-885-5346
sofia.delagarza@compass.comP: (929)-526-8831
lyon@compass.comP: (917)-881-6762
Amenities
- Exposed Brick
- Decorative Fireplace
- Decorative Mouldings
- Hardwood Floors
- High Ceilings
- Walk Up
- Washer / Dryer in Unit
- Washer
Property Details for 80 7th Avenue
| Status | Sold |
|---|---|
| Days on Market | 250 |
| Taxes | $3,980 / month |
| Maintenance | - |
| Min. Down Pymt | - |
| Total Rooms | 21.0 |
| Compass Type | Townhouse |
| MLS Type | Mixed Use |
| Year Built | 1921 |
| Lot Size | 1,600 SF / 20' x 80' |
| County | Kings County |
| Buyer's Agent Compensation | 3% |
Building
80 7th Ave
Location
Sold By Terra CRG, LLC
Building Information for 80 7th Avenue
Payment Calculator
$21,769 per month
30 year fixed, 6.15% Interest
$17,789
$3,980
$0
Property History for 80 7th Avenue
| Date | Event & Source | Price |
|---|---|---|
| 10/31/2024 | Sold Manual | $3,650,000 |
| 10/31/2024 | $3,650,000 | |
| 04/02/2024 | Contract Signed Manual | — |
| 10/12/2023 | Listed (Active) Manual | $3,950,000 |
| 10/11/2023 | Temporarily Off Market Manual | — |
| 10/10/2023 | Listed (Active) Manual | $3,950,000 |
| 10/07/2023 | Temporarily Off Market Manual | — |
| 07/21/2023 | Listed (Active) Manual | $4,500,000 |
For completeness, Compass often displays two records for one sale: the MLS record and the public record.
Public Records for 80 7th Avenue
Schools near 80 7th Avenue
Rating | School | Type | Grades | Distance |
|---|---|---|---|---|
| Public - | PK to 5 | |||
| Public - | 6 to 8 | |||
| Public - | 9 to 12 | |||
| Public - | PK to 5 |
Rating | School | Distance |
|---|---|---|
P.S. 282 Park Slope PublicPK to 5 | ||
Ms 266 Park Place Community Middle School Public6 to 8 | ||
GOTHAM PROFESSIONAL ARTS ACADEMY Public9 to 12 | ||
P.S. 133 William A Butler PublicPK to 5 |
School ratings and boundaries are provided by GreatSchools.org and Pitney Bowes. This information should only be used as a reference. Proximity or boundaries shown here are not a guarantee of enrollment. Please reach out to schools directly to verify all information and enrollment eligibility.
Neighborhood Map and Transit
Similar Homes
Similar Sold Homes
Explore Nearby Homes
- Boerum Hill Homes for Sale
- Carroll Gardens Homes for Sale
- Downtown Brooklyn Homes for Sale
- Fort Greene Homes for Sale
- Gowanus Homes for Sale
- North Slope Homes for Sale
- Northwestern Brooklyn Homes for Sale
- Park Slope Homes for Sale
- Prospect Heights Homes for Sale
- South Brooklyn Homes for Sale
- Cobble Hill Homes for Sale
- Central Slope Homes for Sale
- Clinton Hill Homes for Sale
- Brooklyn Heights Homes for Sale
- Crown Heights Homes for Sale
- New York Homes for Sale
- Brooklyn Homes for Sale
- Manhattan Homes for Sale
- Jersey City Homes for Sale
- Queens Homes for Sale
- Hoboken Homes for Sale
- Bayonne Homes for Sale
- Weehawken Homes for Sale
- Staten Island Homes for Sale
- Union City Homes for Sale
- North Bergen Homes for Sale
- West New York Homes for Sale
- Kearny Homes for Sale
- Secaucus Homes for Sale
- Newark Homes for Sale
- 11238 Homes for Sale
- 11243 Homes for Sale
- 11201 Homes for Sale
- 11205 Homes for Sale
- 11215 Homes for Sale
- 11231 Homes for Sale
- 11242 Homes for Sale
- 11225 Homes for Sale
- 11232 Homes for Sale
- 11249 Homes for Sale
- 11216 Homes for Sale
- 11218 Homes for Sale
- 11206 Homes for Sale
- 11211 Homes for Sale
- 10044 Homes for Sale
No guarantee, warranty or representation of any kind is made regarding the completeness or accuracy of descriptions or measurements (including square footage measurements and property condition), such should be independently verified, and Compass, Inc., its subsidiaries, affiliates and their agents and associated third parties expressly disclaims any liability in connection therewith. Photos may be virtually staged or digitally enhanced and may not reflect actual property conditions. Offers of compensation are subject to change at the discretion of the seller. No financial or legal advice provided. Equal Housing Opportunity.
This information is not verified for authenticity or accuracy and is not guaranteed and may not reflect all real estate activity in the market. ©2026 The Real Estate Board of New York, Inc., All rights reserved. The source of the displayed data is either the property owner or public record provided by non-governmental third parties. It is believed to be reliable but not guaranteed. This information is provided exclusively for consumers’ personal, non-commercial use. The data relating to real estate for sale on this website comes in part from the IDX Program of OneKey® MLS. Information Copyright 2026, OneKey® MLS. All data is deemed reliable but is not guaranteed accurate by Compass. See Terms of Service for additional restrictions. Compass · Tel: 212-913-9058 · New York, NY Listing information for certain New York City properties provided courtesy of the Real Estate Board of New York’s Residential Listing Service (the "RLS"). The information contained in this listing has not been verified by the RLS and should be verified by the consumer. The listing information provided here is for the consumer’s personal, non-commercial use. Retransmission, redistribution or copying of this listing information is strictly prohibited except in connection with a consumer's consideration of the purchase and/or sale of an individual property. This listing information is not verified for authenticity or accuracy and is not guaranteed and may not reflect all real estate activity in the market. ©2026 The Real Estate Board of New York, Inc., all rights reserved. This information is not guaranteed, should be independently verified and may not reflect all real estate activity in the market. Offers of compensation set forth here are for other RLSParticipants only and may not reflect other agreements between a consumer and their broker.©2026 The Real Estate Board of New York, Inc., All rights reserved.










