705 Burlington Ave









































Description
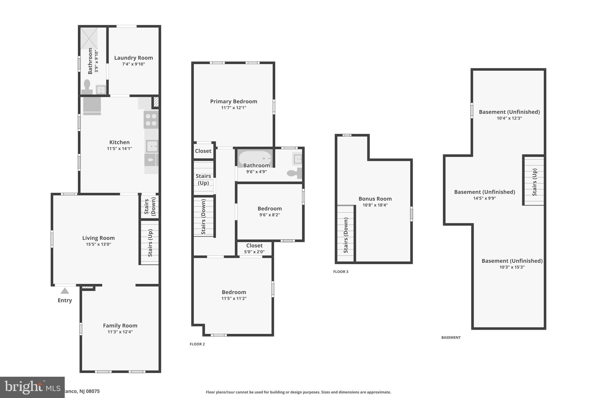
-fenced...Motivated Sellers! Open to all reasonable offers. Welcome to 705 Burlington Ave, a charming twin house nestled in the heart of Delanco, NJ! Located just minutes from local shops, schools, and parks. It is a commuter’s dream with easy access to major highways and public transportation with a Riverline station left than half a mile from the home. Home has 3 bedrooms and 2 full baths with a third floor bonus room that has potential to be converted into a 4th bedroom. Highlights of home include:
-fenced in backyard
-2 car driveway
-porch that can used for entertaining
- eat in kitchen
- living room and den space
- open concept with full bathroom on first floor
- roof and HVAC less than 5 years old
- Listed by Tanea Latrice Hoffman • BHHS Fox & Roach - HaddonfieldP: (609)-781-6714 homeswithtanea@gmail.com
Property Details for 705 Burlington Avenue
Property Details for 705 Burlington Avenue
| Status | Closed |
|---|---|
| MLS # | NJBL2082428 |
| Days on Market | 21 |
| Taxes | $3,900 / year |
| HOA Fees | - |
| Condo/Co-op Fees | - |
| Compass Type | Townhouse |
| MLS Type | Residential / Fee Simple |
| Year Built | 1880 |
| Lot Size | 0.08 AC / 3,324 SF |
| County | Burlington County |
Location
Sold By RE/MAX World Class Realty
Building Information for 705 Burlington Avenue
Payment Calculator
$1,617 per month
30 year fixed, 6.15% Interest
$1,292
$325
$0
Property Information for 705 Burlington Avenue
- School District Name: DELANCO TOWNSHIP PUBLIC SCHOOLS
- School District County ID: 300200396947
- SchoolDistrictSource: Listing Agent
- County: BURLINGTON
- MLS Area: Delanco Twp (20309)
- Water View: No
- Water Access: No
- Water Oriented: No
- Navigable Water: No
- Tidal Water: No
- Riparian Rights Y/N: No
- Senior Community: No
- Tax Year: 2024
- Tax Assessed Value: $110,900
- Year Assessed: 2024
- County Tax: $0
- Improvement Assessed Value: $81,100
- City Town Tax: $0
- Land Assessed Value: $29,800
- Clean Green Assessed: No
- Land Use Code: 0
- Zoning: C-2
- Tax Lot: 00010
- School Tax: $0
- Automatically Update Tax Values Y/N: Yes
- # Bathrooms Count Main Level: 1
- # Bathrooms Full Main Level: 1
- # Bedrooms Count All Upper Levels: 3
- # Bathrooms Count All Upper Levels: 1
- # Bathrooms Full All Upper Levels: 1
- # Bedrooms Count Upper Level: 3
- # Bathrooms Count Upper Level: 1
- # Bathrooms Full Upper Level: 1
- Stories: Main, Upper 1
- Total Finished SQFT: 1,192.00
- Total Finished SQFT Source: Assessor
- Tax Total Finished SQFT: 1,192.00
- Total SQFT: 1,192.00
- Total SQFT Source: Assessor
- Construction Materials: Brick, Frame
- Basement Type: Unfinished
- Foundation Details: Brick/Mortar
- Room and Floor: Bathrooms Full-Main Level-1, Bedrooms-Upper Level 1-1, Bedrooms-Upper Level 1-2, Bedrooms-Upper Level 1-3, Bathrooms Full-Upper Level 1-1
- # Bathrooms Full: 2
- Lot Size Source: Assessor
- Lot Size Dimensions: 25.00 x 133.00
- Lot Dimensions Source: Assessor
- Parcel ID: 1622872
- Ground Rent Exists: No
- Type Of Parking: Driveway, On Street
- Driveway - # of Spaces: 2
- Fireplace: No
- Accessibility Features: None
- Pool: No Pool
- Other Structures: Above Grade, Below Grade
- Heating: Yes
- Cooling Type: Central A/C, Window Unit(s)
- Cooling Fuel: Electric
- Heating Type: Space Heater, Forced Air
- Heating Fuel: Electric
- Hot Water: Electric
- Water Source: Public
- Sewer Septic: Public Sewer
- List Agent AOR: NEXUS Association of Realtors
Property History for 705 Burlington Avenue
| Date | Event & Source | Price | Appreciation |
|---|---|---|---|
| Jun 27, 2025 | Closed BRIGHT #NJBL2082428 | $265,000 | — |
| Jun 23, 2025 | Pending BRIGHT #NJBL2082428 | — | |
| Jun 20, 2025 | Closed BRIGHT #NJBL2082428 | $265,000 | — |
| Jun 19, 2025 | Closed (Public Record) Public Record #1905909123 | $265,000 | +7.9% / yr |
| Apr 22, 2025 | Pending BRIGHT #NJBL2082428 | — | |
| Apr 22, 2025 | Active Under Contract BRIGHT #NJBL2082428 | — | |
| Apr 20, 2025 | Price Change BRIGHT #NJBL2082428 | $269,999 | — |
| Apr 2, 2025 | Listed (Active) BRIGHT #NJBL2082428 | $270,000 | — |
| Dec 31, 2024 | Expired BRIGHT #NJBL2072822 | — | |
| Nov 18, 2024 | Temp Off Market BRIGHT #NJBL2072822 | — | |
| Nov 6, 2024 | Price Change BRIGHT #NJBL2072822 | $255,000 | — |
| Sep 30, 2024 | Price Change BRIGHT #NJBL2072822 | $260,000 | — |
| Sep 14, 2024 | Listed (Active) BRIGHT #NJBL2072822 | $270,000 | — |
| Jan 6, 2023 | Closed (Public Record) Public Record #1504256233 | $220,000 | — |
| Jan 6, 2023 | Closed BRIGHT #NJBL2034054 | $220,000 | — |
| Nov 29, 2022 | Pending BRIGHT #NJBL2034054 | — | |
| Nov 29, 2022 | Active Under Contract BRIGHT #NJBL2034054 | — | |
| Nov 16, 2022 | Listed (Active) BRIGHT #NJBL2034054 | — | |
| Nov 4, 2022 | Active Under Contract BRIGHT #NJBL2034054 | — | |
| Oct 19, 2022 | Price Change BRIGHT #NJBL2034054 | $215,000 | — |
| Sep 22, 2022 | Listed (Active) BRIGHT #NJBL2034054 | $225,000 | — |
| Nov 3, 2006 | Withdrawn BRIGHT #NJBL298946 | $159,900 | — |
| Oct 21, 2006 | Listed (Active) BRIGHT #NJBL298946 | $159,900 | — |
| Nov 22, 2002 | Closed BRIGHT #NJBL175046 | $93,000 | — |
| Oct 28, 2002 | Pending BRIGHT #NJBL175046 | — | |
| Jun 8, 2002 | Listed (Active) BRIGHT #NJBL175046 | $99,000 | — |
| Date | Event & Source | Price |
|---|---|---|
| 06/27/2025 | Closed BRIGHT #NJBL2082428 | $265,000 |
| 06/23/2025 | Pending BRIGHT #NJBL2082428 | — |
| 06/20/2025 | Closed BRIGHT #NJBL2082428 | $265,000 |
| 06/19/2025 | Closed (Public Record) Public Record #1905909123 | $265,000 +7.9% / yr |
| 04/22/2025 | Pending BRIGHT #NJBL2082428 | — |
| 04/22/2025 | Active Under Contract BRIGHT #NJBL2082428 | — |
| 04/20/2025 | Price Change BRIGHT #NJBL2082428 | $269,999 |
| 04/02/2025 | Listed (Active) BRIGHT #NJBL2082428 | $270,000 |
| 12/31/2024 | Expired BRIGHT #NJBL2072822 | — |
| 11/18/2024 | Temp Off Market BRIGHT #NJBL2072822 | — |
| 11/06/2024 | Price Change BRIGHT #NJBL2072822 | $255,000 |
| 09/30/2024 | Price Change BRIGHT #NJBL2072822 | $260,000 |
| 09/14/2024 | Listed (Active) BRIGHT #NJBL2072822 | $270,000 |
| 01/06/2023 | Closed (Public Record) Public Record #1504256233 | $220,000 |
| 01/06/2023 | Closed BRIGHT #NJBL2034054 | $220,000 |
| 11/29/2022 | Pending BRIGHT #NJBL2034054 | — |
| 11/29/2022 | Active Under Contract BRIGHT #NJBL2034054 | — |
| 11/16/2022 | Listed (Active) BRIGHT #NJBL2034054 | — |
| 11/04/2022 | Active Under Contract BRIGHT #NJBL2034054 | — |
| 10/19/2022 | Price Change BRIGHT #NJBL2034054 | $215,000 |
| 09/22/2022 | Listed (Active) BRIGHT #NJBL2034054 | $225,000 |
| 11/03/2006 | Withdrawn BRIGHT #NJBL298946 | $159,900 |
| 10/21/2006 | Listed (Active) BRIGHT #NJBL298946 | $159,900 |
| 11/22/2002 | Closed BRIGHT #NJBL175046 | $93,000 |
| 10/28/2002 | Pending BRIGHT #NJBL175046 | — |
| 06/08/2002 | Listed (Active) BRIGHT #NJBL175046 | $99,000 |
For completeness, Compass often displays two records for one sale: the MLS record and the public record.
Public Records for 705 Burlington Avenue
Schools near 705 Burlington Avenue
Rating | School | Type | Grades | Distance |
|---|---|---|---|---|
| Public - | K to 5 | |||
| Public - | 6 to 8 | |||
| Private - | PK to 8 |
Rating | School | Distance |
|---|---|---|
M. Joan Pearson Elementary School PublicK to 5 | ||
Walnut Street Middle School Public6 to 8 | ||
St. Peter Elementary School PrivatePK to 8 |
School ratings and boundaries are provided by GreatSchools.org and Pitney Bowes. This information should only be used as a reference. Proximity or boundaries shown here are not a guarantee of enrollment. Please reach out to schools directly to verify all information and enrollment eligibility.
Neighborhood Map and Transit
Similar Homes
Similar Sold Homes
Explore Nearby Homes
- Riverside Township - Burlington County Homes for Sale
- Rivers Edge Homes for Sale
- North Delaware Homes for Sale
- Torresdale Homes for Sale
- Bakers Bay Condominiums Homes for Sale
- Holmesburg Homes for Sale
- Meadowview Homes for Sale
- Rittenhouse Park Homes for Sale
- Moorestown-Lenola Homes for Sale
- Pennypacker Park Homes for Sale
- Andalusia Homes for Sale
- Cornwells Heights Homes for Sale
- Eddington Homes for Sale
- Garfield Park East Homes for Sale
- Crestmont Farms Homes for Sale
- Beverly Homes for Sale
- Edgewater Park Homes for Sale
- Willingboro Homes for Sale
- Delanco Homes for Sale
- Philadelphia Homes for Sale
- Moorestown Homes for Sale
- Delran Homes for Sale
- Bensalem Homes for Sale
- Cinnaminson Homes for Sale
- Riverton Homes for Sale
- Croydon Homes for Sale
- Riverside Homes for Sale
- Mount Laurel Homes for Sale
- Westampton Homes for Sale
- Rancocas Homes for Sale
- 08077 Homes for Sale
- 08010 Homes for Sale
- 19136 Homes for Sale
- 19020 Homes for Sale
- 08057 Homes for Sale
- 08046 Homes for Sale
- 19114 Homes for Sale
- 19154 Homes for Sale
- 19021 Homes for Sale
- 08054 Homes for Sale
- 08016 Homes for Sale
- 08073 Homes for Sale
- 08060 Homes for Sale
- 08065 Homes for Sale
- 19135 Homes for Sale
No guarantee, warranty or representation of any kind is made regarding the completeness or accuracy of descriptions or measurements (including square footage measurements and property condition), such should be independently verified, and Compass, Inc., its subsidiaries, affiliates and their agents and associated third parties expressly disclaims any liability in connection therewith. Photos may be virtually staged or digitally enhanced and may not reflect actual property conditions. Offers of compensation are subject to change at the discretion of the seller. No financial or legal advice provided. Equal Housing Opportunity.
Listing Courtesy of BHHS Fox & Roach - Haddonfield
Based on information from one of the following Multiple Listing Services: BRIGHT, Greater LeHigh Valley Regional MLS, Greator Scranton Board of REALTORS® and Pocono Mountains Association of REALTORS®. Information being provided is for the visitor’s personal, noncommercial use and may not be used for any purpose other than to identify prospective properties visitor may be interested in purchasing. The data contained herein is copyrighted by BRIGHT, Greater LeHigh Valley Regional MLS, Greator Scranton Board of REALTORS® and Pocono Mountains Association of REALTORS® is protected by all applicable copyright laws. Any dissemination of this information is in violation of copyright laws and is strictly prohibited. Property information referenced on this web site comes from the Internet Data Exchange (IDX) program of the MLS. This web site may reference real estate listing(s) held by a brokerage firm other than the broker and/or agent who owns this web site. For the avoidance of doubt, the accuracy of all information, regardless of source, is deemed reliable but not guaranteed and should be personally verified through personal inspection by and/or with the appropriate professionals.









































1