698 Macon Street

















Description
This three-family townhouse is meticulously renovated and features the latest technology including a built-in sound system, high-end appliances, W/D in each unit, and zoned air conditioning systems. It pays homage to its past adorned with original details such as fireplace mantels, brick wall accents, and newels.
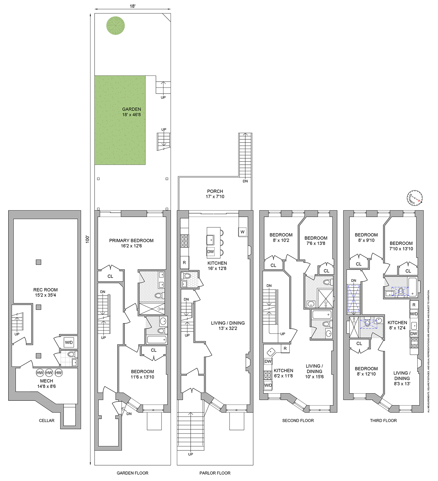
Unit 1, the largest of the three, is a spacious 2-bedroom (convertible 3-bed), 2-bathroom, 2 half-bathroom,...Welcome to 698 Macon Street, a historic bookend brownstone originally built in 1899.
This three-family townhouse is meticulously renovated and features the latest technology including a built-in sound system, high-end appliances, W/D in each unit, and zoned air conditioning systems. It pays homage to its past adorned with original details such as fireplace mantels, brick wall accents, and newels.
Unit 1, the largest of the three, is a spacious 2-bedroom (convertible 3-bed), 2-bathroom, 2 half-bathroom, and a finished cellar apartment. This unit has entrances on the garden and parlor levels. The parlor encompasses the main living room, open kitchen, and dining area. There are two fireplaces; in the front living area a woodburning fireplace warms the space and in the back, the decorative mantle presents a classic look to the modernized kitchen. The kitchen is finished with a full suite of high-end appliances including a six-burner Wolf range, an integrated Fisher Paykel french door fridge, an integrated dishwasher, a wine cooler, and a pot filler. Past the kitchen is a large floor-to-ceiling sliding glass window/door spanning 12ft width that lets the light permeate throughout the parlor level and leads to a sizable deck and the serene backyard. The two bedrooms, situated on the garden floor are at both ends of the floor for optimal privacy. The primary bedroom faces the backyard and includes an ensuite full bathroom with double vanity and standing shower. The finished cellar, with a half-bathroom, is perfect for a recreational space, home office, gym, or play area.
Unit 2 is a 2-bedroom, 2-bathroom apartment. The living room with an open kitchen faces the tree-lined street and both bedrooms face the backyard. There is a primary bedroom that features an ensuite bathroom with a standing shower.
Unit 3 is a 3-bedroom, 2-bathroom apartment that boasts another decorative fireplace and a sun-drenched skylight, creating a bright and inviting atmosphere.
This beautifully reimagined townhouse is ideally located in the heart of Bedford-Stuyvesant, just moments away from popular dining spots such Chez Oskar, Trad Room, and Cuts & Slices. Residents will also appreciate the proximity to local parks, including Saratoga Park. With convenient access to public transportation, including the A/C and J/M trains, and a short 20-minute drive to JFK Airport, this property offers exceptional desirability.
The property is newly renovated and will be delivered vacant. Based on projected rents the CAP rate is approximately 6%. Please reach out directly for full pro forma and rental comps.
Listing Agents
tali@compass.comP: (917)-246-8581
isaac@compass.comP: (917)-734-2376
Amenities
- Primary Ensuite
- Private Yard
- Porch
- Exposed Brick
- Fireplace
- Decorative Mouldings
- Hardwood Floors
- High Ceilings
Property Details for 698 Macon Street
| Status | Sold |
|---|---|
| Days on Market | 175 |
| Taxes | $485 / month |
| Maintenance | - |
| Min. Down Pymt | 20% |
| Total Rooms | 19.0 |
| Compass Type | Townhouse |
| MLS Type | House/Building |
| Year Built | 1899 |
| Lot Size | 1,800 SF / 18' x 100' |
| County | Kings County |
| Buyer's Agent Compensation | 2.5% |
Building
698 Macon St
Location
Building Information for 698 Macon Street
Payment Calculator
$12,913 per month
30 year fixed, 6.15% Interest
$12,428
$485
$0
Property History for 698 Macon Street
| Date | Event & Source | Price |
|---|---|---|
| 03/17/2025 | Sold Manual | $2,550,000 |
| 03/17/2025 | $2,550,000 +81.7% / yr | |
| 01/14/2025 | Contract Signed Manual | — |
| 09/18/2024 | Listed (Active) Manual | $2,695,000 |
| 08/16/2024 | Temporarily Off Market Manual | — |
| 06/20/2024 | Listed (Active) Manual | $2,695,000 |
| 08/22/2023 | $999,500 | |
| 01/18/2023 | $1,900,000 | |
| 10/17/2022 | $1,900,000 |
For completeness, Compass often displays two records for one sale: the MLS record and the public record.
Public Records for 698 Macon Street
Schools near 698 Macon Street
Rating | School | Type | Grades | Distance |
|---|---|---|---|---|
| Public - | PK to 5 | |||
| Public - | 6 to 8 | |||
| Public - | 9 to 12 | |||
| Public - | 10 to 12 |
Rating | School | Distance |
|---|---|---|
P.S. 5 Dr Ronald Mcnair PublicPK to 5 | ||
Ms 267 Math Science And Technology Public6 to 8 | ||
Brooklyn High School Law And Tech Public9 to 12 | ||
Research And Service High School Public10 to 12 |
School ratings and boundaries are provided by GreatSchools.org and Pitney Bowes. This information should only be used as a reference. Proximity or boundaries shown here are not a guarantee of enrollment. Please reach out to schools directly to verify all information and enrollment eligibility.
Neighborhood Map and Transit
Similar Homes
Similar Sold Homes
Explore Nearby Homes
- Stuyvesant Heights Homes for Sale
- Ocean Hill Homes for Sale
- Weeksville Homes for Sale
- Bedford-Stuyvesant Homes for Sale
- Brownsville Homes for Sale
- East New York Homes for Sale
- Bushwick Homes for Sale
- Crown Heights Homes for Sale
- Northern Brooklyn Homes for Sale
- Central Brooklyn Homes for Sale
- Eastern Brooklyn Homes for Sale
- Highland Park Homes for Sale
- Northwestern Queens Homes for Sale
- Glendale Homes for Sale
- East Flatbush Homes for Sale
- New York Homes for Sale
- Brooklyn Homes for Sale
- Queens Homes for Sale
- Manhattan Homes for Sale
- Jersey City Homes for Sale
- Hoboken Homes for Sale
- Bayonne Homes for Sale
- Weehawken Homes for Sale
- Union City Homes for Sale
- West New York Homes for Sale
- Staten Island Homes for Sale
- Bronx Homes for Sale
- North Bergen Homes for Sale
- Guttenberg Homes for Sale
- Inwood Homes for Sale
- 11221 Homes for Sale
- 11216 Homes for Sale
- 11213 Homes for Sale
- 11212 Homes for Sale
- 11207 Homes for Sale
- 11385 Homes for Sale
- 11203 Homes for Sale
- 11206 Homes for Sale
- 11237 Homes for Sale
- 11205 Homes for Sale
- 11208 Homes for Sale
- 11238 Homes for Sale
- 11236 Homes for Sale
- 11225 Homes for Sale
- 11226 Homes for Sale
No guarantee, warranty or representation of any kind is made regarding the completeness or accuracy of descriptions or measurements (including square footage measurements and property condition), such should be independently verified, and Compass, Inc., its subsidiaries, affiliates and their agents and associated third parties expressly disclaims any liability in connection therewith. Photos may be virtually staged or digitally enhanced and may not reflect actual property conditions. Offers of compensation are subject to change at the discretion of the seller. No financial or legal advice provided. Equal Housing Opportunity.
This information is not verified for authenticity or accuracy and is not guaranteed and may not reflect all real estate activity in the market. ©2026 The Real Estate Board of New York, Inc., All rights reserved. The source of the displayed data is either the property owner or public record provided by non-governmental third parties. It is believed to be reliable but not guaranteed. This information is provided exclusively for consumers’ personal, non-commercial use. The data relating to real estate for sale on this website comes in part from the IDX Program of OneKey® MLS. Information Copyright 2026, OneKey® MLS. All data is deemed reliable but is not guaranteed accurate by Compass. See Terms of Service for additional restrictions. Compass · Tel: 212-913-9058 · New York, NY Listing information for certain New York City properties provided courtesy of the Real Estate Board of New York’s Residential Listing Service (the "RLS"). The information contained in this listing has not been verified by the RLS and should be verified by the consumer. The listing information provided here is for the consumer’s personal, non-commercial use. Retransmission, redistribution or copying of this listing information is strictly prohibited except in connection with a consumer's consideration of the purchase and/or sale of an individual property. This listing information is not verified for authenticity or accuracy and is not guaranteed and may not reflect all real estate activity in the market. ©2026 The Real Estate Board of New York, Inc., all rights reserved. This information is not guaranteed, should be independently verified and may not reflect all real estate activity in the market. Offers of compensation set forth here are for other RLSParticipants only and may not reflect other agreements between a consumer and their broker.©2026 The Real Estate Board of New York, Inc., All rights reserved.



















1