682 A 6th Avenue
















Description
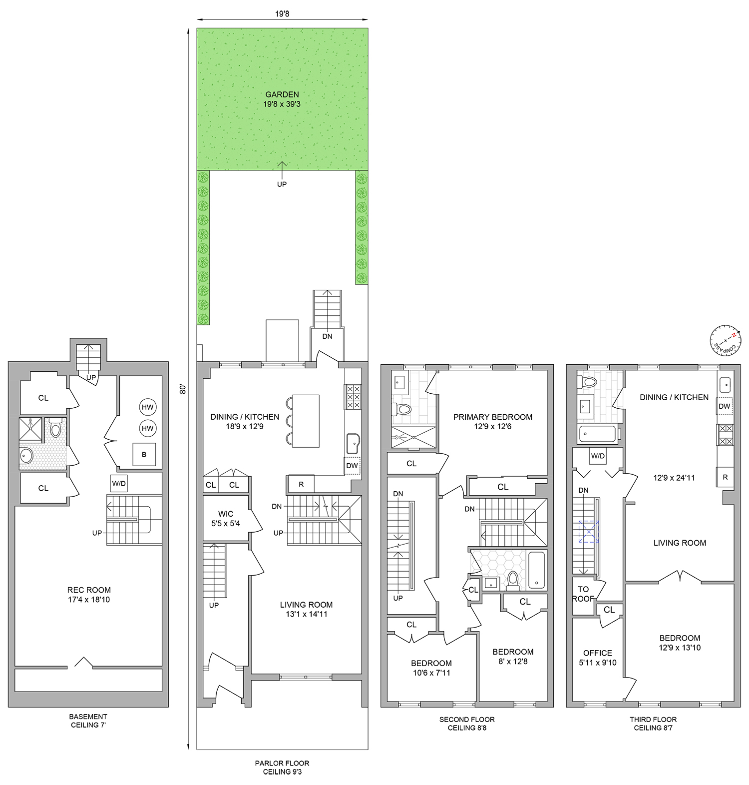
The main residence features a spacious layout with 3 bedrooms and 3 bathrooms, showcasing high-end finishes and an abundance of natural light throughout. The open-concept living and dining area flows seamlessly into the gourmet...682A 6th Avenue is a modern, fully renovated two-family home on the border of South Slope and Greenwood Heights. This stunning property has undergone a complete interior gut renovation, offering a perfect blend of contemporary style, classic charm, and modern conveniences.
The main residence features a spacious layout with 3 bedrooms and 3 bathrooms, showcasing high-end finishes and an abundance of natural light throughout. The open-concept living and dining area flows seamlessly into the gourmet kitchen. The second level features the primary bedroom with a luxurious en-suite bathroom, creating a private oasis within the home. The other two bedrooms on this level offer exceptional storage and natural light.
Step outside to discover the expansive backyard, perfect for outdoor entertaining, gardening, or simply unwinding in the fresh air. Additionally, the refinished basement provides bonus space, ideal for a home office, gym, or recreation area. The picturesque exterior of the home features James Hardieplank Lap Siding.
For added convenience, the property includes a one-bedroom/one-bathroom income-generating rental apartment on the top floor with a separate entrance. This unit is equipped with modern amenities, including a washer/dryer and dishwasher, offering a comfortable and convenient living space for tenants.
The prime location of 682A 6th Avenue provides convenient access to a variety of nearby dining and shopping options, such as Battle Hill Tavern, Guiseppina’s, Southside Coffee, Luigi’s Pizza (a local classic), and many more establishments in the adjacent Park Slope area. Nature enthusiasts will appreciate the proximity to the picturesque Green-wood Cemetery, just a few blocks away, offering a serene escape from the bustling city life. Prospect Park and the vibrant Industry City in Sunset Park are in close proximity, offering a mix of dining, retail, and arts, making it one of Brooklyn's most exciting developments. Transportation options are easily accessible, with the R train at 25th Street or Prospect Avenue, and the F/G train at 15th Street/Prospect Park.
Listing Agents
dbondy@compass.comP: (917)-690-3981
jason.knight@compass.comP: (917)-635-6417
Amenities
- Primary Ensuite
- City Views
- Private Yard
- Hardwood Floors
- Washer / Dryer
- Central AC
- Dishwasher
- Total Renovation
Property Details for 682 A 6th Avenue
| Status | Sold |
|---|---|
| Days on Market | 146 |
| Taxes | $735 / month |
| Maintenance | - |
| Min. Down Pymt | 20% |
| Total Rooms | 9.0 |
| Compass Type | Townhouse |
| MLS Type | House/Building |
| Year Built | 1937 |
| Lot Size | 1,600 SF / 20' x 80' |
| County | Kings County |
| Buyer's Agent Compensation | 2% |
Building
682 A 6th Ave
Location
Virtual Tour
Building Information for 682 A 6th Avenue
Payment Calculator
$12,920 per month
30 year fixed, 6.15% Interest
$12,185
$735
$0
Property History for 682 A 6th Avenue
| Date | Event & Source | Price |
|---|---|---|
| 12/17/2024 | Sold Manual | $2,500,000 |
| 12/17/2024 | $2,500,000 +8.2% / yr | |
| 09/30/2024 | Contract Signed Manual | — |
| 09/10/2024 | Listed (Active) Manual | $2,495,000 |
| 07/22/2024 | Permanently Off Market Manual | — |
| 06/06/2024 | Contract Signed Manual | — |
| 04/08/2024 | Price Change Manual | $2,595,000 |
| 02/01/2024 | Listed (Active) Manual | $2,700,000 |
| 08/29/2016 | $1,299,000 | |
| 07/08/2016 | Permanently Off Market RealPlus #c1f38309c784cb08c7612d157c50b3646b275a04 | $1,399,000 |
| 07/06/2016 | Temporarily Off Market RealPlus #c1f38309c784cb08c7612d157c50b3646b275a04 | $1,399,000 |
| 04/05/2016 | Listed (Active) RealPlus #c1f38309c784cb08c7612d157c50b3646b275a04 | $1,399,000 |
For completeness, Compass often displays two records for one sale: the MLS record and the public record.
Public Records for 682 A 6th Avenue
Schools near 682 A 6th Avenue
Rating | School | Type | Grades | Distance |
|---|---|---|---|---|
| Public - | K to 5 | |||
| Public - | 6 to 8 | |||
| Public - | 9 to 12 | |||
| Public - | 6 to 8 |
Rating | School | Distance |
|---|---|---|
New Voices School Of Academic And Creative Arts Public6 to 8 | ||
Sunset Park High School Public9 to 12 | ||
Jhs 88 Peter Rouget Public6 to 8 |
School ratings and boundaries are provided by GreatSchools.org and Pitney Bowes. This information should only be used as a reference. Proximity or boundaries shown here are not a guarantee of enrollment. Please reach out to schools directly to verify all information and enrollment eligibility.
Neighborhood Map and Transit
Similar Homes
Similar Sold Homes
Explore Nearby Homes
- Carroll Gardens Homes for Sale
- Central Brooklyn Homes for Sale
- Central Slope Homes for Sale
- Gowanus Homes for Sale
- Greenwood Heights Homes for Sale
- North Slope Homes for Sale
- Park Slope Homes for Sale
- Prospect Lefferts Gardens Homes for Sale
- South Brooklyn Homes for Sale
- South Slope Homes for Sale
- Windsor Terrace Homes for Sale
- Red Hook Homes for Sale
- Prospect Park South Homes for Sale
- Northwestern Brooklyn Homes for Sale
- Prospect Heights Homes for Sale
- Brooklyn Homes for Sale
- New York Homes for Sale
- Manhattan Homes for Sale
- Jersey City Homes for Sale
- Bayonne Homes for Sale
- Queens Homes for Sale
- Hoboken Homes for Sale
- Staten Island Homes for Sale
- Weehawken Homes for Sale
- Union City Homes for Sale
- North Bergen Homes for Sale
- Kearny Homes for Sale
- Newark Homes for Sale
- West New York Homes for Sale
- Secaucus Homes for Sale
- 11218 Homes for Sale
- 11217 Homes for Sale
- 11238 Homes for Sale
- 11232 Homes for Sale
- 11231 Homes for Sale
- 11225 Homes for Sale
- 11226 Homes for Sale
- 11201 Homes for Sale
- 11216 Homes for Sale
- 11243 Homes for Sale
- 11219 Homes for Sale
- 11213 Homes for Sale
- 11203 Homes for Sale
- 11205 Homes for Sale
- 11242 Homes for Sale
No guarantee, warranty or representation of any kind is made regarding the completeness or accuracy of descriptions or measurements (including square footage measurements and property condition), such should be independently verified, and Compass, Inc., its subsidiaries, affiliates and their agents and associated third parties expressly disclaims any liability in connection therewith. Photos may be virtually staged or digitally enhanced and may not reflect actual property conditions. Offers of compensation are subject to change at the discretion of the seller. No financial or legal advice provided. Equal Housing Opportunity.
This information is not verified for authenticity or accuracy and is not guaranteed and may not reflect all real estate activity in the market. ©2026 The Real Estate Board of New York, Inc., All rights reserved. The source of the displayed data is either the property owner or public record provided by non-governmental third parties. It is believed to be reliable but not guaranteed. This information is provided exclusively for consumers’ personal, non-commercial use. The data relating to real estate for sale on this website comes in part from the IDX Program of OneKey® MLS. Information Copyright 2026, OneKey® MLS. All data is deemed reliable but is not guaranteed accurate by Compass. See Terms of Service for additional restrictions. Compass · Tel: 212-913-9058 · New York, NY Listing information for certain New York City properties provided courtesy of the Real Estate Board of New York’s Residential Listing Service (the "RLS"). The information contained in this listing has not been verified by the RLS and should be verified by the consumer. The listing information provided here is for the consumer’s personal, non-commercial use. Retransmission, redistribution or copying of this listing information is strictly prohibited except in connection with a consumer's consideration of the purchase and/or sale of an individual property. This listing information is not verified for authenticity or accuracy and is not guaranteed and may not reflect all real estate activity in the market. ©2026 The Real Estate Board of New York, Inc., all rights reserved. This information is not guaranteed, should be independently verified and may not reflect all real estate activity in the market. Offers of compensation set forth here are for other RLSParticipants only and may not reflect other agreements between a consumer and their broker.©2026 The Real Estate Board of New York, Inc., All rights reserved.


















1