678 Park Place





















Description
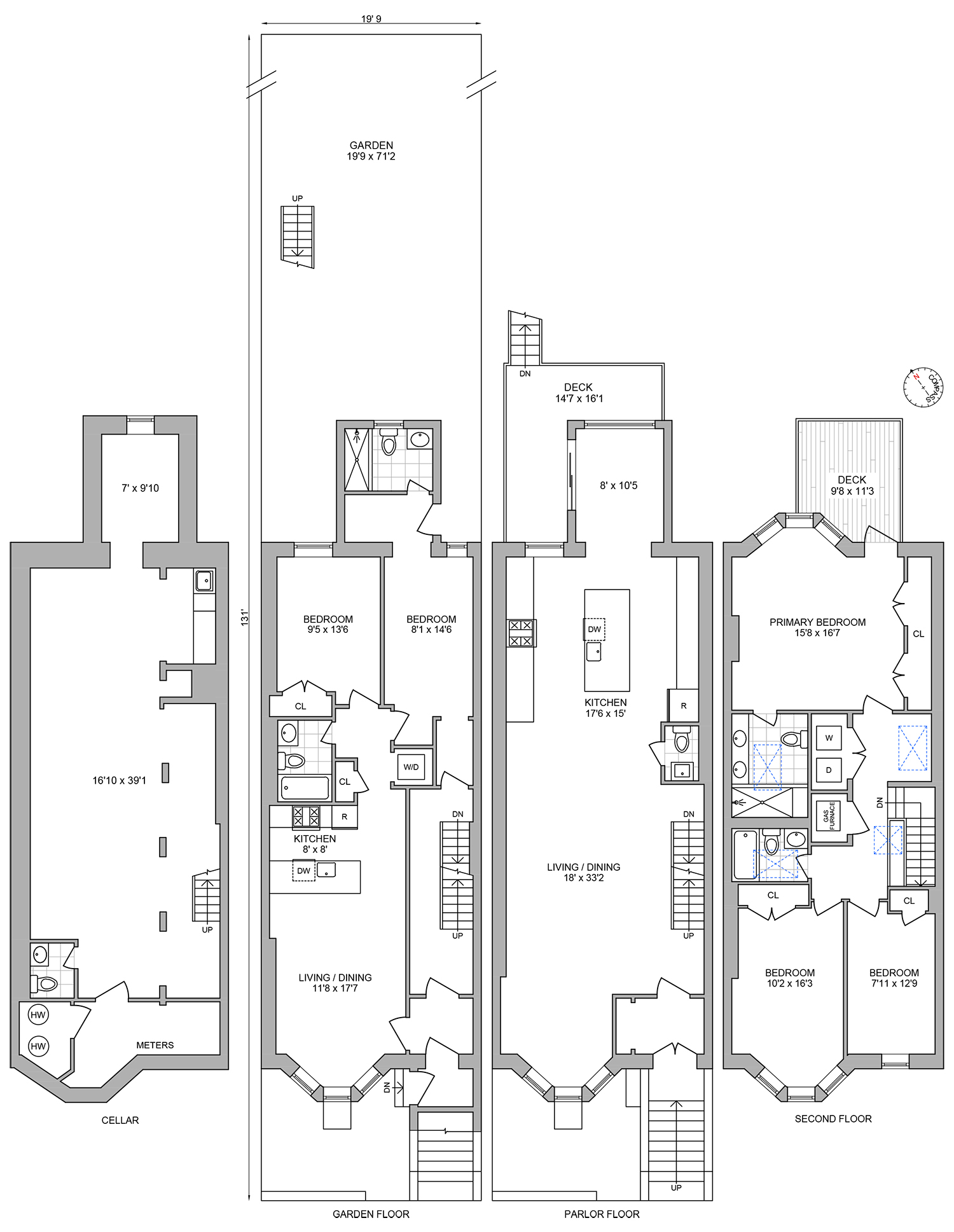
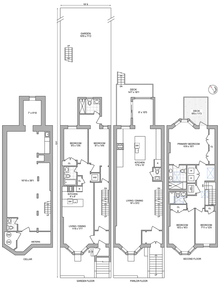
The townhouse is an almost 20-foot-wide, two-family brownstone with 5 bedrooms, 4 full bathrooms, 2 powder rooms, a parlor deck, and an expansive backyard garden. From herringbone white oak floors to original doors and carefully designed molding, attention to detail can be found throughout this well-appointed...678 Park Place was originally constructed in 1901, this newly renovated home is the perfect combination of high-end finishes, modern technology, and impeccable details, an honorable salute to its past.
The townhouse is an almost 20-foot-wide, two-family brownstone with 5 bedrooms, 4 full bathrooms, 2 powder rooms, a parlor deck, and an expansive backyard garden. From herringbone white oak floors to original doors and carefully designed molding, attention to detail can be found throughout this well-appointed home.
Nestled on a charming, tree-lined street on an extra deep lot in the heart of Crown Heights, this four-story, two-family home boasts a blend of high-end finishes and impeccable original details.
As you step into the upper duplex, you’ll be greeted by an elegant foyer adorned with marble tiled floors and wainscotting. The spacious parlor level features a beautiful bay window a large dining nook as well as the convenience of a powder room. The chef's kitchen is unmatched in today's Crown Heights market. Masterfully complete with custom cabinetry, quartz countertops, and a full suite of Thermadore appliances including a 36" French door refrigerator, a six-burner stove with pot filler, an integrated dishwasher, and a wine cooler. The dining room sits in a spacious extension with a full glass back wall overlooking the serene backyard and inviting natural light to illuminate the space.
Ascending the stairs to the upper floor, you’ll discover three bedrooms and two full baths, including a luxurious primary suite with two double closets and a spa-like ensuite bathroom and private terrace. Each additional bedroom boasts ample space and are complimented with a playful hallway bathroom. Moreover, the top floor hallway unveils a spacious laundry closet and office nook that is illuminated by a skylight.
The private basement, accessed via an interior staircase, offers versatile living space that can be customized to suit your needs, whether it’s a playroom, media den, or artist studio. The basement features original arched columns and a kitchenette making it a perfect spot for movie night. The separate garden floor two-bedroom, two-bathroom unit presents an ideal income-producing opportunity or in-law apartment.
This masterfully re-imagined townhouse is located on a beautiful, tree-lined street in the heart of Crown Heights. Indulge in the culinary delights of nearby establishments along Franklin Avenue such as Chavala’s, St Ends, Winner, and Aita Trattoria, all just moments away. This home is close to the Brooklyn Museum as well as the Botanical Gardens and Prospect Park. Enjoy seamless access to public transportation with the 2/3 and 4/5 at Franklin and the A/C at Nostrand, while JFK Airport is a convenient 20-minute drive away.
Listing Agents
tali@compass.comP: (917)-246-8581
isaac@compass.comP: (917)-734-2376
Amenities
- Primary Ensuite
- Private Yard
- Deck
- Decorative Mouldings
- Wet Bar
- Sound System
- Hardwood Floors
- High Ceilings
Property Details for 678 Park Place
| Status | Sold |
|---|---|
| Days on Market | 63 |
| Taxes | $317 / month |
| Maintenance | - |
| Min. Down Pymt | 20% |
| Total Rooms | 13.0 |
| Compass Type | Townhouse |
| MLS Type | Single Family |
| Year Built | 1901 |
| Lot Size | 2,587 SF / 20' x 131' |
| County | Kings County |
| Buyer's Agent Compensation | 2.5% |
Building
678 Park Pl
Location
Building Information for 678 Park Place
Payment Calculator
$17,887 per month
30 year fixed, 6.15% Interest
$17,570
$317
$0
Property History for 678 Park Place
| Date | Event & Source | Price |
|---|---|---|
| 07/02/2024 | Sold Manual | $3,605,000 |
| 05/07/2024 | Contract Signed Manual | — |
| 03/05/2024 | Listed (Active) Manual | $3,450,000 |
| 08/24/2023 | $1,500,000 |
For completeness, Compass often displays two records for one sale: the MLS record and the public record.
Public Records for 678 Park Place
Schools near 678 Park Place
Rating | School | Type | Grades | Distance |
|---|---|---|---|---|
| Public - | PK to 5 | |||
| Public - | 6 to 8 | |||
| Public - | 9 to 12 | |||
| Public - | 9 to 12 |
Rating | School | Distance |
|---|---|---|
P.S. 316 Elijah Stroud PublicPK to 5 | ||
Elijah Stroud Middle School Public6 to 8 | ||
ASPIRATIONS DIPLOMA PLUS HIGH SCHOOL Public9 to 12 | ||
International High School at Prospect Heights Public9 to 12 |
School ratings and boundaries are provided by GreatSchools.org and Pitney Bowes. This information should only be used as a reference. Proximity or boundaries shown here are not a guarantee of enrollment. Please reach out to schools directly to verify all information and enrollment eligibility.
Neighborhood Map and Transit
Similar Homes
Similar Sold Homes
Explore Nearby Homes
- Stuyvesant Heights Homes for Sale
- Crown Heights Homes for Sale
- Northern Brooklyn Homes for Sale
- Central Brooklyn Homes for Sale
- Bedford-Stuyvesant Homes for Sale
- Clinton Hill Homes for Sale
- Northwestern Brooklyn Homes for Sale
- Weeksville Homes for Sale
- Prospect Heights Homes for Sale
- East Flatbush Homes for Sale
- Wingate Homes for Sale
- Prospect Lefferts Gardens Homes for Sale
- Williamsburg Homes for Sale
- Bushwick Homes for Sale
- Fort Greene Homes for Sale
- New York Homes for Sale
- Brooklyn Homes for Sale
- Queens Homes for Sale
- Manhattan Homes for Sale
- Jersey City Homes for Sale
- Hoboken Homes for Sale
- Bayonne Homes for Sale
- Weehawken Homes for Sale
- Union City Homes for Sale
- Staten Island Homes for Sale
- West New York Homes for Sale
- North Bergen Homes for Sale
- Guttenberg Homes for Sale
- Kearny Homes for Sale
- Bronx Homes for Sale
- 11225 Homes for Sale
- 11238 Homes for Sale
- 11233 Homes for Sale
- 11221 Homes for Sale
- 11213 Homes for Sale
- 11205 Homes for Sale
- 11206 Homes for Sale
- 11203 Homes for Sale
- 11215 Homes for Sale
- 11249 Homes for Sale
- 11217 Homes for Sale
- 11211 Homes for Sale
- 11201 Homes for Sale
- 11226 Homes for Sale
- 11212 Homes for Sale
No guarantee, warranty or representation of any kind is made regarding the completeness or accuracy of descriptions or measurements (including square footage measurements and property condition), such should be independently verified, and Compass, Inc., its subsidiaries, affiliates and their agents and associated third parties expressly disclaims any liability in connection therewith. Photos may be virtually staged or digitally enhanced and may not reflect actual property conditions. Offers of compensation are subject to change at the discretion of the seller. No financial or legal advice provided. Equal Housing Opportunity.
This information is not verified for authenticity or accuracy and is not guaranteed and may not reflect all real estate activity in the market. ©2026 The Real Estate Board of New York, Inc., All rights reserved. The source of the displayed data is either the property owner or public record provided by non-governmental third parties. It is believed to be reliable but not guaranteed. This information is provided exclusively for consumers’ personal, non-commercial use. The data relating to real estate for sale on this website comes in part from the IDX Program of OneKey® MLS. Information Copyright 2026, OneKey® MLS. All data is deemed reliable but is not guaranteed accurate by Compass. See Terms of Service for additional restrictions. Compass · Tel: 212-913-9058 · New York, NY Listing information for certain New York City properties provided courtesy of the Real Estate Board of New York’s Residential Listing Service (the "RLS"). The information contained in this listing has not been verified by the RLS and should be verified by the consumer. The listing information provided here is for the consumer’s personal, non-commercial use. Retransmission, redistribution or copying of this listing information is strictly prohibited except in connection with a consumer's consideration of the purchase and/or sale of an individual property. This listing information is not verified for authenticity or accuracy and is not guaranteed and may not reflect all real estate activity in the market. ©2026 The Real Estate Board of New York, Inc., all rights reserved. This information is not guaranteed, should be independently verified and may not reflect all real estate activity in the market. Offers of compensation set forth here are for other RLSParticipants only and may not reflect other agreements between a consumer and their broker.©2026 The Real Estate Board of New York, Inc., All rights reserved.























1