647 Macon Street




















Description
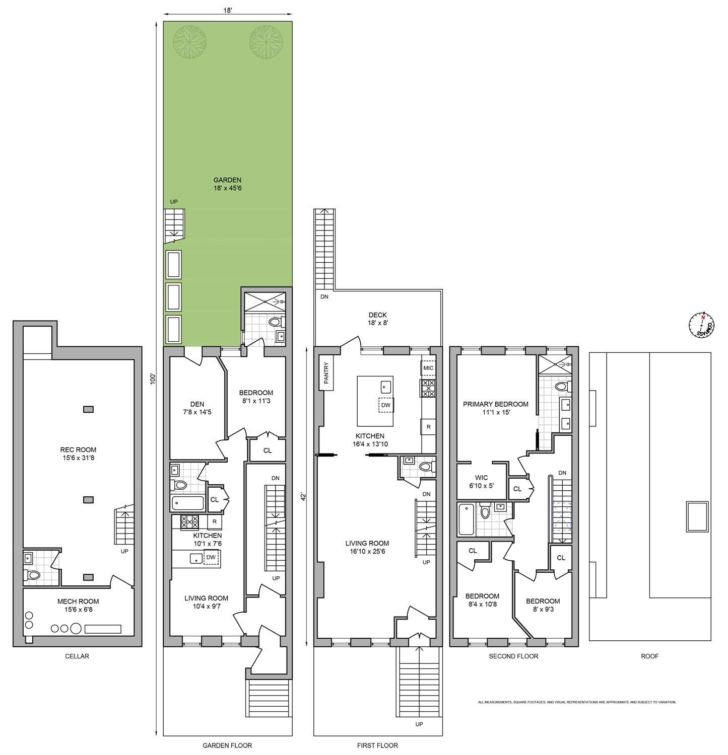
Upon entering the upper duplex, a foyer welcomes you with an oversized half-glass original entry door. The parlor floor impresses with 10-foot ceilings, original parquet floors, and elegant details such as fireplace mantles...Built in 1899, 647 Macon has been meticulously renovated to blend historic charm with modern luxury. This distinguished three-story, two-family Brownstone boasts 5 bedrooms, 4 full bathrooms, and 2 powder rooms, complemented by high-end finishes and state-of-the-art technology.
Upon entering the upper duplex, a foyer welcomes you with an oversized half-glass original entry door. The parlor floor impresses with 10-foot ceilings, original parquet floors, and elegant details such as fireplace mantles and pocket doors. The living area is adorned with restored shutters and molding. Towards the back of the parlor floor is a gourmet kitchen equipped with an island, custom cabinetry, quartz countertops, and top-of-the-line appliances including a six-burner Wolf stove, Bosche integrated refrigerator, integrated Bosche dishwasher, and a microwave drawer.
Upstairs, the primary bedroom overlooks the serene backyard garden and offers ample space with a large walk-in closet. The primary bath is appointed with marble tiled floors, a double vanity, and a glass-enclosed shower. Two additional bedrooms and a secondary bathroom complete this level, alongside convenient washer/dryer closet.
The private basement, accessed via an interior staircase, is finished with tile floors and includes a half bathroom, ideal for a playroom or media den. The garden level features a separate one-bedroom unit, perfect for rental income or as an in-law suite.
Located on a picturesque, tree-lined street in Bedford-Stuyvesant, this masterfully re-imagined townhouse is surrounded by local dining hotspots and Saratoga Park. You are moments away from great dining establishments such as Trad Room, Dick and Jane's, L'Antagoniste, Early Yves, and Good Old Days as well as SaratogaPark which features a new playground. Nearby public transportation includes the A/C trains or the Halsey B26, and JFK is a short 20-minute drive.
Listing Agents
tali@compass.comP: (917)-246-8581
isaac@compass.comP: (917)-734-2376
kyle.meagher@compass.comP: (571)-218-2540
Amenities
- Primary Ensuite
- Private Terrace
- Private Yard
- Deck
- Decorative Fireplace
- Fireplace
- Decorative Mouldings
- Sound System
Property Details for 647 Macon Street
| Status | Sold |
|---|---|
| Days on Market | 90 |
| Taxes | $410 / month |
| Maintenance | - |
| Min. Down Pymt | 20% |
| Total Rooms | 13.0 |
| Compass Type | Townhouse |
| MLS Type | House/Building |
| Year Built | 1899 |
| Lot Size | 1,800 SF / 18' x 100' |
| County | Kings County |
| Buyer's Agent Compensation | 2.5% |
Building
647 Macon St
Location
Building Information for 647 Macon Street
Payment Calculator
$12,400 per month
30 year fixed, 6.15% Interest
$11,990
$410
$0
Property History for 647 Macon Street
| Date | Event & Source | Price |
|---|---|---|
| 11/25/2024 | Sold Manual | $2,460,000 |
| 11/22/2024 | $2,460,000 +117.2% / yr | |
| 10/15/2024 | Contract Signed Manual | — |
| 07/16/2024 | Listed (Active) Manual | $2,495,000 |
| 12/20/2023 | $1,200,000 |
For completeness, Compass often displays two records for one sale: the MLS record and the public record.
Public Records for 647 Macon Street
Schools near 647 Macon Street
Rating | School | Type | Grades | Distance |
|---|---|---|---|---|
| Public - | PK to 5 | |||
| Public - | 6 to 8 | |||
| Public - | 9 to 12 | |||
| Public - | 10 to 12 |
Rating | School | Distance |
|---|---|---|
P.S. 5 Dr Ronald Mcnair PublicPK to 5 | ||
Ms 267 Math Science And Technology Public6 to 8 | ||
Brooklyn High School Law And Tech Public9 to 12 | ||
Research And Service High School Public10 to 12 |
School ratings and boundaries are provided by GreatSchools.org and Pitney Bowes. This information should only be used as a reference. Proximity or boundaries shown here are not a guarantee of enrollment. Please reach out to schools directly to verify all information and enrollment eligibility.
Neighborhood Map and Transit
Similar Homes
Similar Sold Homes
Explore Nearby Homes
- Stuyvesant Heights Homes for Sale
- Ocean Hill Homes for Sale
- Weeksville Homes for Sale
- Bedford-Stuyvesant Homes for Sale
- Brownsville Homes for Sale
- East New York Homes for Sale
- Bushwick Homes for Sale
- Crown Heights Homes for Sale
- Northern Brooklyn Homes for Sale
- Central Brooklyn Homes for Sale
- Eastern Brooklyn Homes for Sale
- Highland Park Homes for Sale
- Northwestern Queens Homes for Sale
- Glendale Homes for Sale
- East Flatbush Homes for Sale
- New York Homes for Sale
- Brooklyn Homes for Sale
- Queens Homes for Sale
- Manhattan Homes for Sale
- Jersey City Homes for Sale
- Hoboken Homes for Sale
- Bayonne Homes for Sale
- Weehawken Homes for Sale
- Union City Homes for Sale
- West New York Homes for Sale
- Staten Island Homes for Sale
- Bronx Homes for Sale
- North Bergen Homes for Sale
- Guttenberg Homes for Sale
- Inwood Homes for Sale
- 11221 Homes for Sale
- 11216 Homes for Sale
- 11213 Homes for Sale
- 11212 Homes for Sale
- 11207 Homes for Sale
- 11385 Homes for Sale
- 11203 Homes for Sale
- 11206 Homes for Sale
- 11237 Homes for Sale
- 11205 Homes for Sale
- 11208 Homes for Sale
- 11238 Homes for Sale
- 11236 Homes for Sale
- 11225 Homes for Sale
- 11226 Homes for Sale
No guarantee, warranty or representation of any kind is made regarding the completeness or accuracy of descriptions or measurements (including square footage measurements and property condition), such should be independently verified, and Compass, Inc., its subsidiaries, affiliates and their agents and associated third parties expressly disclaims any liability in connection therewith. Photos may be virtually staged or digitally enhanced and may not reflect actual property conditions. Offers of compensation are subject to change at the discretion of the seller. No financial or legal advice provided. Equal Housing Opportunity.
This information is not verified for authenticity or accuracy and is not guaranteed and may not reflect all real estate activity in the market. ©2026 The Real Estate Board of New York, Inc., All rights reserved. The source of the displayed data is either the property owner or public record provided by non-governmental third parties. It is believed to be reliable but not guaranteed. This information is provided exclusively for consumers’ personal, non-commercial use. The data relating to real estate for sale on this website comes in part from the IDX Program of OneKey® MLS. Information Copyright 2026, OneKey® MLS. All data is deemed reliable but is not guaranteed accurate by Compass. See Terms of Service for additional restrictions. Compass · Tel: 212-913-9058 · New York, NY Listing information for certain New York City properties provided courtesy of the Real Estate Board of New York’s Residential Listing Service (the "RLS"). The information contained in this listing has not been verified by the RLS and should be verified by the consumer. The listing information provided here is for the consumer’s personal, non-commercial use. Retransmission, redistribution or copying of this listing information is strictly prohibited except in connection with a consumer's consideration of the purchase and/or sale of an individual property. This listing information is not verified for authenticity or accuracy and is not guaranteed and may not reflect all real estate activity in the market. ©2026 The Real Estate Board of New York, Inc., all rights reserved. This information is not guaranteed, should be independently verified and may not reflect all real estate activity in the market. Offers of compensation set forth here are for other RLSParticipants only and may not reflect other agreements between a consumer and their broker.©2026 The Real Estate Board of New York, Inc., All rights reserved.























1