60 Sterling Place




















Description
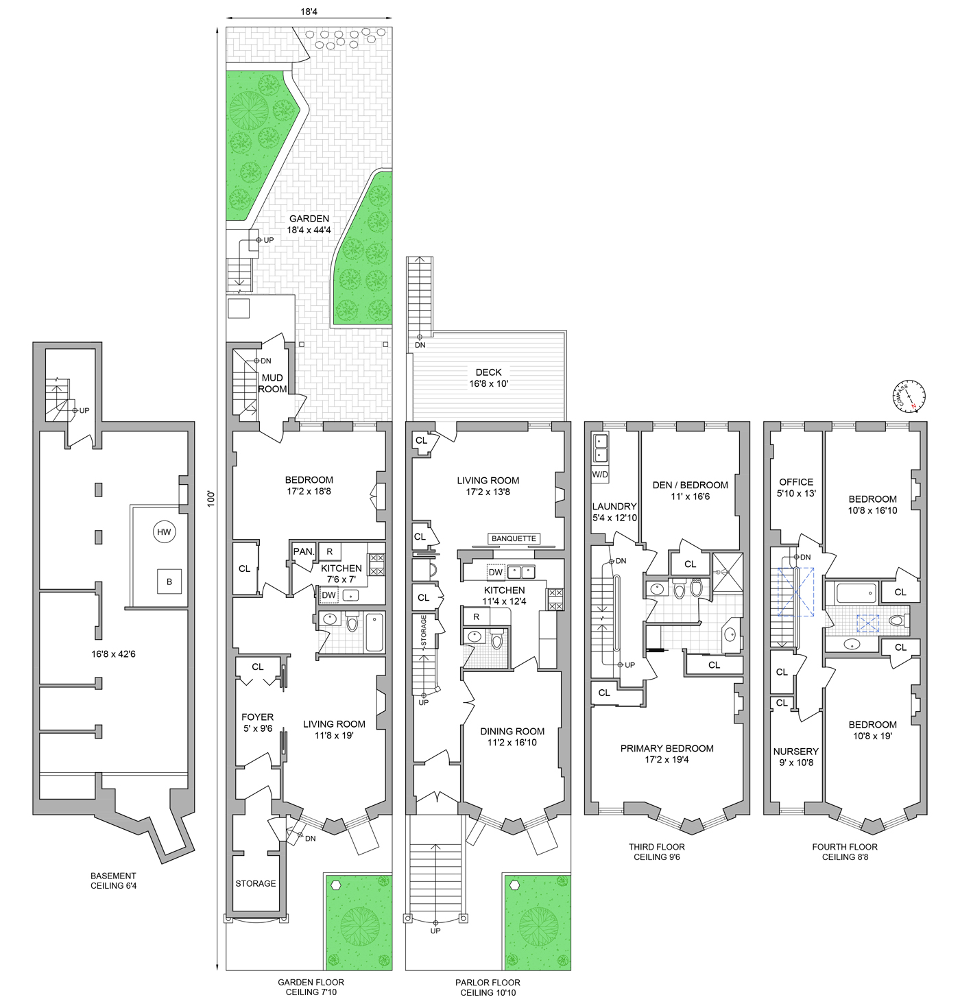
A majestic magnolia tree graces the front yard of this picturesque brownstone, where high ceilings and stunning original woodwork greet you upon entry. The parlor floor makes for a fabulous heart of the home with its original details exuding timeless...Welcome to 60 Sterling Place, a two-family brownstone nestled in the heart of North Park Slope. With central air conditioning and preserved historic details, this four story, 18ft wide, 3,500 square foot home combines modern comfort with classic charm.
A majestic magnolia tree graces the front yard of this picturesque brownstone, where high ceilings and stunning original woodwork greet you upon entry. The parlor floor makes for a fabulous heart of the home with its original details exuding timeless elegance, and its convenient layout. The front parlor is perfect for formal dining, large enough for Thanksgiving dinners, with a fireplace and bay windows overlooking the property's magnolia tree. A well-appointed kitchen sits on the center of this floor, with a window onto the living room. A powder room on the parlor level is ideal for entertaining. The rear parlor offers a warm living room bedecked with built-ins, cozy reading nooks, a showstopper fireplace, and a door right to a deck overlooking the beautifully landscaped south-facing garden.
The house boasts six decorative fireplaces throughout, adding warmth and character to each room. One such ornamental marble fireplace adorns the primary bedroom, a tranquil retreat. Bay windows offer breathtaking views of Saint Augustine Church's historic architecture. An ensuite bathroom features a walk-in closet, shower room, and a separate WC with hallway access for guests. This floor also includes a laundry room and a versatile bedroom/den, perfect for working from home, relaxing with a good book, or setting up a nursery on the same floor as the primary.
The top floor of the brownstone streams in light from a stained glass skylight. Here you'll find another full bathroom (with its own skylight) and four additional bedrooms, providing ample space for family, guests, home offices, craft rooms, and more.The 1-bedroom garden rental unit below has a separate entrance and provides income potential in this highly coveted neighborhood. With a total of seven bedrooms and three and one half baths across four floors, this property offers versatility for any lifestyle.
60 Sterling Pl is as conveniently located as it gets while remaining on a quaint, residential street. Access to myriad transportation, dining, shopping, and entertainment options allows the homeowner to engage in Park Slope's most vibrant district and then easily retreat to their private oasis.
Barclay's Center, with 2/3/4/5/B/Q/D/N/R trains and the LIRR, is accessed atop 5th Avenue's fantastic shopping and dining corridor. Within a few blocks of 60 Sterling you hit classic Park Slope eateries Miriam, Bricolage, and Al Di La; classic cocktail bars like Blueprint alongside well-rated new additions like Honeycomb, and countless other fine and casual dining establishments, all of which are part of a celebrated Open Streets summer weekend series. Prospect Park, of course, is also only moments away.
With an ideal configuration in an unbeatable location, this property offers endless possibilities for comfortable living, entertaining, and investment potential. Don't miss the opportunity to own this exquisite brownstone in one of Brooklyn's most coveted neighborhoods.
Listing Agents
ryanandryan@compass.comP: (347)-276-5165
libby.ryan@compass.comP: (917)-617-4227
maria.ryan@compass.comP: (347)-276-5165
joe.ryan@compass.comP: (917)-453-2676
Amenities
- Primary Ensuite
- Private Terrace
- Exposed Brick
- Decorative Fireplace
- Crown Mouldings
- Built-Ins
- Private Entrance
- Hardwood Floors
Property Details for 60 Sterling Place
| Status | Sold |
|---|---|
| Days on Market | 16 |
| Taxes | $840 / month |
| Maintenance | - |
| Min. Down Pymt | - |
| Total Rooms | 17.5 |
| Compass Type | Townhouse |
| MLS Type | House/Building |
| Year Built | 1920 |
| Lot Size | 1,825 SF / 18' x 100' |
| County | Kings County |
| Buyer's Agent Compensation | 2.5% |
Building
60 Sterling Pl
Location
Building Information for 60 Sterling Place
Payment Calculator
$20,579 per month
30 year fixed, 6.15% Interest
$19,739
$840
$0
Property History for 60 Sterling Place
| Date | Event & Source | Price |
|---|---|---|
| 07/10/2023 | Sold Manual | $4,050,000 |
| 07/07/2023 | Contract Signed Manual | $3,600,000 |
| 07/07/2023 | Sold Manual | $4,050,000 |
| 07/07/2023 | $4,050,000 | |
| 05/05/2023 | Contract Signed Manual | — |
| 04/19/2023 | Listed (Active) Manual | $3,600,000 |
For completeness, Compass often displays two records for one sale: the MLS record and the public record.
Public Records for 60 Sterling Place
Schools near 60 Sterling Place
Rating | School | Type | Grades | Distance |
|---|---|---|---|---|
| Public - | PK to 5 | |||
| Public - | 6 to 8 | |||
| Public - | 9 to 12 | |||
| Public - | PK to 5 |
Rating | School | Distance |
|---|---|---|
P.S. 282 Park Slope PublicPK to 5 | ||
Ms 266 Park Place Community Middle School Public6 to 8 | ||
Brooklyn Technical High School Public9 to 12 | ||
P.S. 133 William A Butler PublicPK to 5 |
School ratings and boundaries are provided by GreatSchools.org and Pitney Bowes. This information should only be used as a reference. Proximity or boundaries shown here are not a guarantee of enrollment. Please reach out to schools directly to verify all information and enrollment eligibility.
Neighborhood Map and Transit
Similar Homes
Similar Sold Homes
Explore Nearby Homes
- Boerum Hill Homes for Sale
- Carroll Gardens Homes for Sale
- Downtown Brooklyn Homes for Sale
- Fort Greene Homes for Sale
- Gowanus Homes for Sale
- North Slope Homes for Sale
- Northwestern Brooklyn Homes for Sale
- Park Slope Homes for Sale
- Prospect Heights Homes for Sale
- South Brooklyn Homes for Sale
- Cobble Hill Homes for Sale
- Central Slope Homes for Sale
- Clinton Hill Homes for Sale
- Brooklyn Heights Homes for Sale
- Crown Heights Homes for Sale
- New York Homes for Sale
- Brooklyn Homes for Sale
- Manhattan Homes for Sale
- Jersey City Homes for Sale
- Queens Homes for Sale
- Hoboken Homes for Sale
- Bayonne Homes for Sale
- Weehawken Homes for Sale
- Staten Island Homes for Sale
- Union City Homes for Sale
- North Bergen Homes for Sale
- West New York Homes for Sale
- Kearny Homes for Sale
- Secaucus Homes for Sale
- Newark Homes for Sale
- 11238 Homes for Sale
- 11243 Homes for Sale
- 11201 Homes for Sale
- 11205 Homes for Sale
- 11215 Homes for Sale
- 11231 Homes for Sale
- 11242 Homes for Sale
- 11225 Homes for Sale
- 11232 Homes for Sale
- 11249 Homes for Sale
- 11216 Homes for Sale
- 11218 Homes for Sale
- 11206 Homes for Sale
- 11211 Homes for Sale
- 10044 Homes for Sale
No guarantee, warranty or representation of any kind is made regarding the completeness or accuracy of descriptions or measurements (including square footage measurements and property condition), such should be independently verified, and Compass, Inc., its subsidiaries, affiliates and their agents and associated third parties expressly disclaims any liability in connection therewith. Photos may be virtually staged or digitally enhanced and may not reflect actual property conditions. Offers of compensation are subject to change at the discretion of the seller. No financial or legal advice provided. Equal Housing Opportunity.
This information is not verified for authenticity or accuracy and is not guaranteed and may not reflect all real estate activity in the market. ©2026 The Real Estate Board of New York, Inc., All rights reserved. The source of the displayed data is either the property owner or public record provided by non-governmental third parties. It is believed to be reliable but not guaranteed. This information is provided exclusively for consumers’ personal, non-commercial use. The data relating to real estate for sale on this website comes in part from the IDX Program of OneKey® MLS. Information Copyright 2026, OneKey® MLS. All data is deemed reliable but is not guaranteed accurate by Compass. See Terms of Service for additional restrictions. Compass · Tel: 212-913-9058 · New York, NY Listing information for certain New York City properties provided courtesy of the Real Estate Board of New York’s Residential Listing Service (the "RLS"). The information contained in this listing has not been verified by the RLS and should be verified by the consumer. The listing information provided here is for the consumer’s personal, non-commercial use. Retransmission, redistribution or copying of this listing information is strictly prohibited except in connection with a consumer's consideration of the purchase and/or sale of an individual property. This listing information is not verified for authenticity or accuracy and is not guaranteed and may not reflect all real estate activity in the market. ©2026 The Real Estate Board of New York, Inc., all rights reserved. This information is not guaranteed, should be independently verified and may not reflect all real estate activity in the market. Offers of compensation set forth here are for other RLSParticipants only and may not reflect other agreements between a consumer and their broker.©2026 The Real Estate Board of New York, Inc., All rights reserved.























