501 Quincy Street















Description
501 Quincy was initially constructed in 1901. Impeccably renovated, this home is the perfect combination of high-end finishes, modern technology, and exquisite original details.
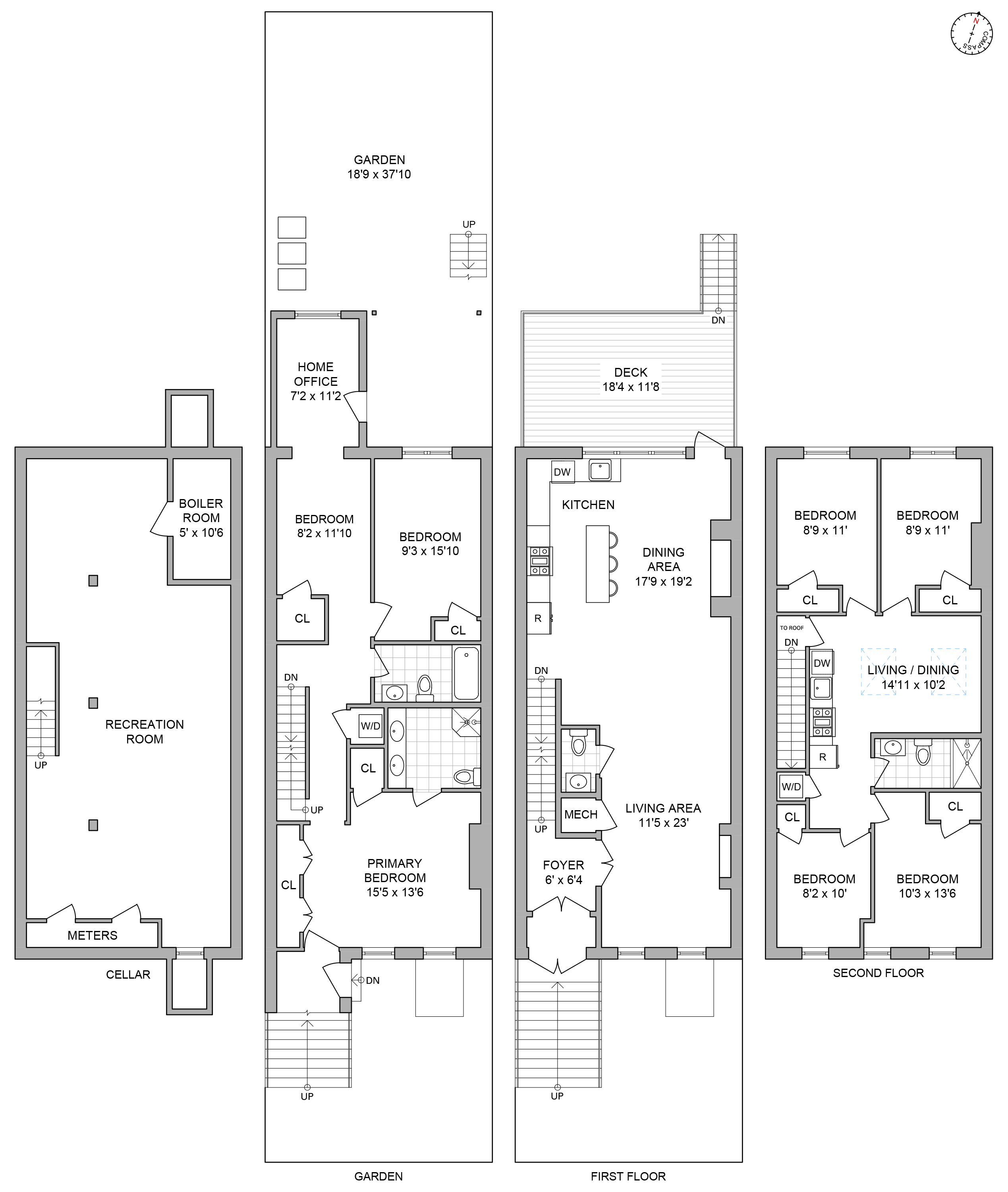
This townhouse is a two-family brownstone that features 7 bedrooms, 3 full bathrooms, 1 powder room, an expansive backyard garden, and a large parlor deck. From the beautifully restored fireplaces and newel to the herringbone...Planning on putting more money down, First Republic is offering 4.5% on a loan amount of up to $1.4M.
501 Quincy was initially constructed in 1901. Impeccably renovated, this home is the perfect combination of high-end finishes, modern technology, and exquisite original details.
This townhouse is a two-family brownstone that features 7 bedrooms, 3 full bathrooms, 1 powder room, an expansive backyard garden, and a large parlor deck. From the beautifully restored fireplaces and newel to the herringbone oak flooring, attention to detail can be found throughout this incredible home.
As you enter the owner’s three-bedroom triplex, you are greeted by a welcoming foyer and a restored original double door that leads you to the main living space. On your left, you are immediately drawn to the extra large floor-to-ceiling windows. To your right, the kitchen has been adorned with a formidable quartz island, perfect for long conversations as you break bread with your guests. It is a chef’s dream, equipped with a full suite of Berzonni appliances including a six-burner stove, 36” french door refrigerator, and ample storage in the all-white cabinetry. Tucked in between the living room area and the kitchen is the stylish powder room. Toward the back is a full glass door leading out to the deck which overlooks the private backyard.
Passed the kitchen, you head downstairs to the garden floor which houses three bedrooms and 2 full bathrooms. The primary bedroom, at the front of the house with another private entrance, has an impressive amount of storage with 3 full closets. The primary bathroom features a double sink and a standing shower. Toward the back of the house, facing the serene backyard, are two smaller bedrooms, one of which has an office nook and access to the backyard. From the hallway, you can access the secondary full bathroom and the washer/dryer closet.
On the top floor is a four-bedroom, one-bath apartment. An ideal income-producing portion, this unit is a floor-thru apartment with a washer and dryer, and an open concept kitchen with stainless steel appliances and gorgeous skylights that create a very bright and spacious. The cellar has been finished with textured tile floors. It can easily be transformed into a playroom, home office, or artist studio.
This masterfully re-imagined townhouse is located in the heart of bubbly Bedford Stuyvesant. You are moments away from great dining establishments such as Peaches Hot House, L'antagoniste, Saraghina, Bed Vyne Brew, The Coyote Club as well as Herbert Von King Park. Nearby public transportation includes the A/C and J/Z trains, LIRR, and JFK is a short 25-minute drive.
Listing Agents
tali@compass.comP: (917)-246-8581
isaac@compass.comP: (917)-734-2376
Amenities
- Primary Ensuite
- Private Terrace
- Private Yard
- Deck
- Decorative Fireplace
- Decorative Mouldings
- Private Entrance
- Hardwood Floors
Property Details for 501 Quincy Street
| Status | Sold |
|---|---|
| Days on Market | 174 |
| Taxes | $226 / month |
| Maintenance | - |
| Min. Down Pymt | 20% |
| Total Rooms | 13.0 |
| Compass Type | Townhouse |
| MLS Type | House/Building |
| Year Built | 1901 |
| Lot Size | 1,875 SF / 19' x 100' |
| County | Kings County |
| Buyer's Agent Compensation | 2.5% |
Building
501 Quincy St
Location
Building Information for 501 Quincy Street
Payment Calculator
$10,461 per month
30 year fixed, 6.15% Interest
$10,235
$226
$0
Property History for 501 Quincy Street
| Date | Event & Source | Price |
|---|---|---|
| 04/11/2023 | $2,100,000 +65.4% / yr | |
| 03/14/2023 | Contract Signed Manual | — |
| 02/01/2023 | Listed (Active) Manual | $1,999,000 |
| 02/01/2023 | Temporarily Off Market Manual | — |
| 10/20/2022 | Price Change Manual | $2,199,000 |
| 09/20/2022 | Listed (Active) Manual | $2,349,000 |
| 08/04/2021 | $900,000 | |
| 09/30/2019 | Temporarily Off Market ONEKEY #3053184 | $1,100,000 |
| 07/31/2018 | Listed (Active) ONEKEY #3053184 | $1,200,000 |
For completeness, Compass often displays two records for one sale: the MLS record and the public record.
Public Records for 501 Quincy Street
Schools near 501 Quincy Street
Rating | School | Type | Grades | Distance |
|---|---|---|---|---|
| Public - | PK to 5 | |||
| Public - | 6 to 8 | |||
| Public - | 9 to 12 | |||
| Public - | 6 to 8 |
Rating | School | Distance |
|---|---|---|
P.S. 25 Eubie Blake School PublicPK to 5 | ||
Jhs 57 Whitelaw Reid Public6 to 8 | ||
The Brooklyn Academy Of Global Finance Public9 to 12 | ||
Ms 267 Math Science And Technology Public6 to 8 |
School ratings and boundaries are provided by GreatSchools.org and Pitney Bowes. This information should only be used as a reference. Proximity or boundaries shown here are not a guarantee of enrollment. Please reach out to schools directly to verify all information and enrollment eligibility.
Neighborhood Map and Transit
Similar Homes
Similar Sold Homes
Explore Nearby Homes
- Bedford-Stuyvesant Homes for Sale
- Bushwick Homes for Sale
- Northern Brooklyn Homes for Sale
- Ocean Hill Homes for Sale
- Stuyvesant Heights Homes for Sale
- Ridgewood Homes for Sale
- Northwestern Queens Homes for Sale
- Williamsburg Homes for Sale
- East Williamsburg Homes for Sale
- Glendale Homes for Sale
- Central Brooklyn Homes for Sale
- Crown Heights Homes for Sale
- Weeksville Homes for Sale
- Maspeth Homes for Sale
- Clinton Hill Homes for Sale
- Brooklyn Homes for Sale
- New York Homes for Sale
- Queens Homes for Sale
- Manhattan Homes for Sale
- Jersey City Homes for Sale
- Hoboken Homes for Sale
- Weehawken Homes for Sale
- Bayonne Homes for Sale
- Union City Homes for Sale
- West New York Homes for Sale
- Bronx Homes for Sale
- Guttenberg Homes for Sale
- North Bergen Homes for Sale
- Staten Island Homes for Sale
- Edgewater Homes for Sale
- 11206 Homes for Sale
- 11207 Homes for Sale
- 11237 Homes for Sale
- 11233 Homes for Sale
- 11216 Homes for Sale
- 11385 Homes for Sale
- 11213 Homes for Sale
- 11205 Homes for Sale
- 11238 Homes for Sale
- 11249 Homes for Sale
- 11211 Homes for Sale
- 11378 Homes for Sale
- 11212 Homes for Sale
- 11208 Homes for Sale
- 11225 Homes for Sale
No guarantee, warranty or representation of any kind is made regarding the completeness or accuracy of descriptions or measurements (including square footage measurements and property condition), such should be independently verified, and Compass, Inc., its subsidiaries, affiliates and their agents and associated third parties expressly disclaims any liability in connection therewith. Photos may be virtually staged or digitally enhanced and may not reflect actual property conditions. Offers of compensation are subject to change at the discretion of the seller. No financial or legal advice provided. Equal Housing Opportunity.
This information is not verified for authenticity or accuracy and is not guaranteed and may not reflect all real estate activity in the market. ©2026 The Real Estate Board of New York, Inc., All rights reserved. The source of the displayed data is either the property owner or public record provided by non-governmental third parties. It is believed to be reliable but not guaranteed. This information is provided exclusively for consumers’ personal, non-commercial use. The data relating to real estate for sale on this website comes in part from the IDX Program of OneKey® MLS. Information Copyright 2026, OneKey® MLS. All data is deemed reliable but is not guaranteed accurate by Compass. See Terms of Service for additional restrictions. Compass · Tel: 212-913-9058 · New York, NY Listing information for certain New York City properties provided courtesy of the Real Estate Board of New York’s Residential Listing Service (the "RLS"). The information contained in this listing has not been verified by the RLS and should be verified by the consumer. The listing information provided here is for the consumer’s personal, non-commercial use. Retransmission, redistribution or copying of this listing information is strictly prohibited except in connection with a consumer's consideration of the purchase and/or sale of an individual property. This listing information is not verified for authenticity or accuracy and is not guaranteed and may not reflect all real estate activity in the market. ©2026 The Real Estate Board of New York, Inc., all rights reserved. This information is not guaranteed, should be independently verified and may not reflect all real estate activity in the market. Offers of compensation set forth here are for other RLSParticipants only and may not reflect other agreements between a consumer and their broker.©2026 The Real Estate Board of New York, Inc., All rights reserved.

















1