45 Windsor Place



















Description
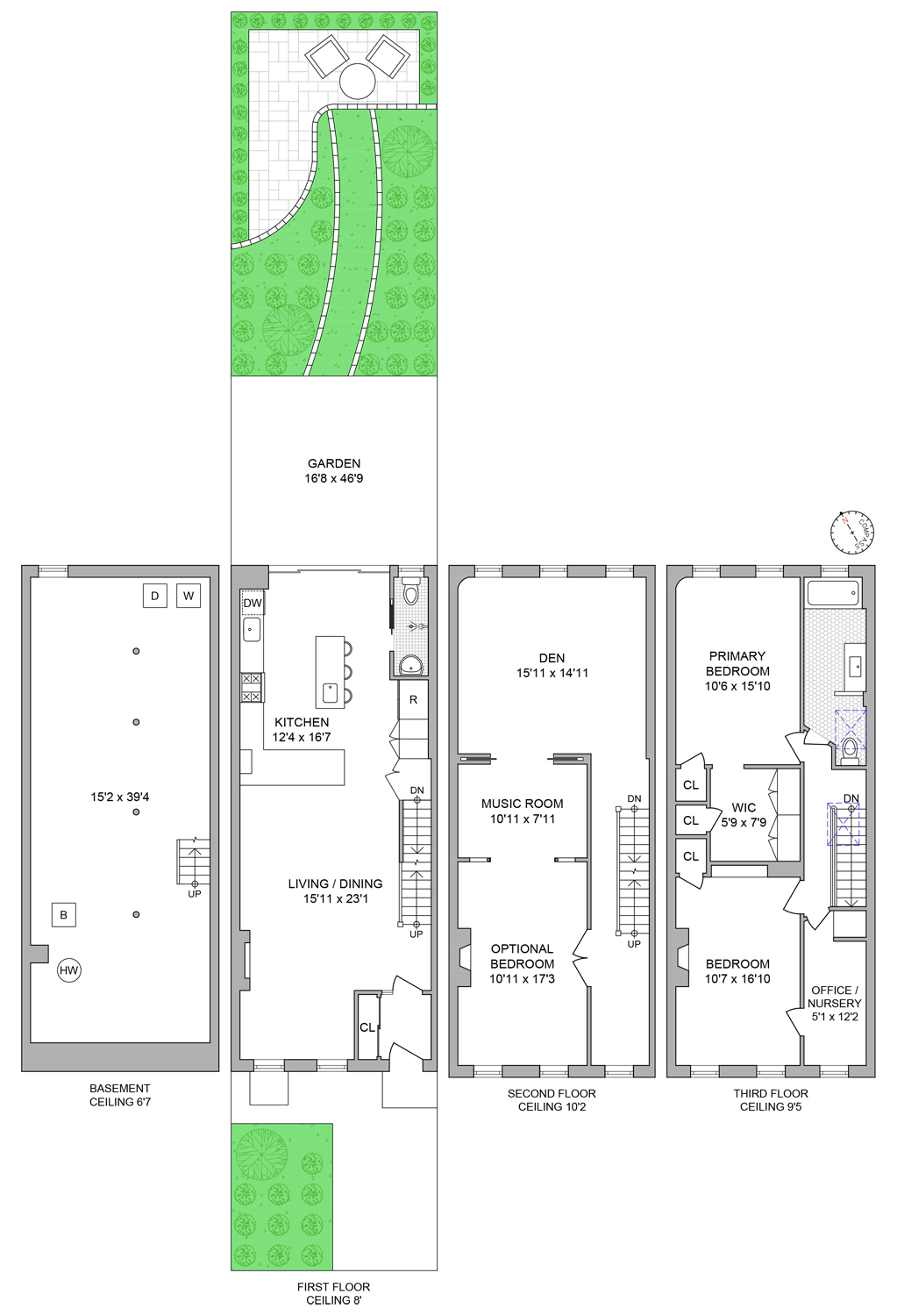
Upstairs, the second floor is currently used as additional living space with a music room, den, and conversation area. This flexible space has many possibilities—extra bedrooms, a guest space, an office, or an exercise room. There’s a sweet alcove that’s perfect for a desk or a cozy reading nook.
The top floor has two skylights—one lighting the stairwell and the other in the bright and sunny full bath. The large primary bedroom tucked away in the back of the house has that treehouse feel with lots of greenery just outside the oversized windows and a large walk-in closet. The second bedroom, slightly larger than the primary, has an original mantle and that magical top-floor light. The smaller third bedroom is perfect for a nursery or an additional office. The fully renovated windowed bathroom has marble vanity and classic white subway tiles.
This lovely home also has a full basement with laundry and plenty of room for projects or storage. Located just a few blocks to Prospect Park, the FG trains and a multitude of amenities—shopping, restaurants, and cafes on 7th Avenue. With over 2000 SF inside and 1100 SF of exterior space, 45 Windsor Place is the perfect place to call home.
Listing Agents
lisa.garcia@compass.comP: (917)-975-0333
cindy.fazio@compass.comP: (917)-439-6708
Amenities
- Decorative Fireplace
- Hardwood Floors
- Oversized Windows
- Washer / Dryer
- Breakfast Bar
- Chef's Kitchen
- Open Kitchen
- Windowed Bathroom
Property Details for 45 Windsor Place
| Status | Sold |
|---|---|
| Days on Market | 26 |
| Taxes | $483 / month |
| Maintenance | - |
| Min. Down Pymt | - |
| Total Rooms | 7.0 |
| Compass Type | Townhouse |
| MLS Type | House/Building |
| Year Built | 1901 |
| Lot Size | 1,666 SF / 17' x 100' |
| County | Kings County |
| Buyer's Agent Compensation | 2.5% |
Building
45 Windsor Pl
Location
Sold By Corcoran Group
Building Information for 45 Windsor Place
Payment Calculator
$14,130 per month
30 year fixed, 6.15% Interest
$13,647
$483
$0
Property History for 45 Windsor Place
| Date | Event & Source | Price |
|---|---|---|
| 10/27/2023 | Sold Manual | $2,800,000 |
| 10/27/2023 | $2,800,000 | |
| 10/04/2023 | Contract Signed Manual | — |
| 09/07/2023 | Listed (Active) Manual | $2,625,000 |
For completeness, Compass often displays two records for one sale: the MLS record and the public record.
Public Records for 45 Windsor Place
Schools near 45 Windsor Place
Rating | School | Type | Grades | Distance |
|---|---|---|---|---|
| Public - | K to 5 | |||
| Public - | 6 to 8 | |||
| Public - | 9 to 12 | |||
| Public - | 6 to 8 |
Rating | School | Distance |
|---|---|---|
Jhs 88 Peter Rouget Public6 to 8 | ||
Cyberarts Studio Academy Public9 to 12 | ||
New Voices School Of Academic And Creative Arts Public6 to 8 |
School ratings and boundaries are provided by GreatSchools.org and Pitney Bowes. This information should only be used as a reference. Proximity or boundaries shown here are not a guarantee of enrollment. Please reach out to schools directly to verify all information and enrollment eligibility.
Neighborhood Map and Transit
Similar Homes
Similar Sold Homes
Explore Nearby Homes
- Central Brooklyn Homes for Sale
- South Brooklyn Homes for Sale
- Central Slope Homes for Sale
- North Slope Homes for Sale
- Greenwood Heights Homes for Sale
- Carroll Gardens Homes for Sale
- Park Slope Homes for Sale
- Windsor Terrace Homes for Sale
- Gowanus Homes for Sale
- Prospect Lefferts Gardens Homes for Sale
- South Slope Homes for Sale
- Red Hook Homes for Sale
- Prospect Park South Homes for Sale
- Northwestern Brooklyn Homes for Sale
- Prospect Heights Homes for Sale
- New York Homes for Sale
- Brooklyn Homes for Sale
- Manhattan Homes for Sale
- Jersey City Homes for Sale
- Bayonne Homes for Sale
- Queens Homes for Sale
- Hoboken Homes for Sale
- Staten Island Homes for Sale
- Weehawken Homes for Sale
- Union City Homes for Sale
- North Bergen Homes for Sale
- Kearny Homes for Sale
- Newark Homes for Sale
- West New York Homes for Sale
- Secaucus Homes for Sale
- 11225 Homes for Sale
- 11217 Homes for Sale
- 11218 Homes for Sale
- 11238 Homes for Sale
- 11231 Homes for Sale
- 11232 Homes for Sale
- 11226 Homes for Sale
- 11201 Homes for Sale
- 11216 Homes for Sale
- 11243 Homes for Sale
- 11219 Homes for Sale
- 11213 Homes for Sale
- 11203 Homes for Sale
- 11205 Homes for Sale
- 11242 Homes for Sale
No guarantee, warranty or representation of any kind is made regarding the completeness or accuracy of descriptions or measurements (including square footage measurements and property condition), such should be independently verified, and Compass, Inc., its subsidiaries, affiliates and their agents and associated third parties expressly disclaims any liability in connection therewith. Photos may be virtually staged or digitally enhanced and may not reflect actual property conditions. Offers of compensation are subject to change at the discretion of the seller. No financial or legal advice provided. Equal Housing Opportunity.
This information is not verified for authenticity or accuracy and is not guaranteed and may not reflect all real estate activity in the market. ©2026 The Real Estate Board of New York, Inc., All rights reserved. The source of the displayed data is either the property owner or public record provided by non-governmental third parties. It is believed to be reliable but not guaranteed. This information is provided exclusively for consumers’ personal, non-commercial use. The data relating to real estate for sale on this website comes in part from the IDX Program of OneKey® MLS. Information Copyright 2026, OneKey® MLS. All data is deemed reliable but is not guaranteed accurate by Compass. See Terms of Service for additional restrictions. Compass · Tel: 212-913-9058 · New York, NY Listing information for certain New York City properties provided courtesy of the Real Estate Board of New York’s Residential Listing Service (the "RLS"). The information contained in this listing has not been verified by the RLS and should be verified by the consumer. The listing information provided here is for the consumer’s personal, non-commercial use. Retransmission, redistribution or copying of this listing information is strictly prohibited except in connection with a consumer's consideration of the purchase and/or sale of an individual property. This listing information is not verified for authenticity or accuracy and is not guaranteed and may not reflect all real estate activity in the market. ©2026 The Real Estate Board of New York, Inc., all rights reserved. This information is not guaranteed, should be independently verified and may not reflect all real estate activity in the market. Offers of compensation set forth here are for other RLSParticipants only and may not reflect other agreements between a consumer and their broker.©2026 The Real Estate Board of New York, Inc., All rights reserved.





















1