427 Quincy Street












Description
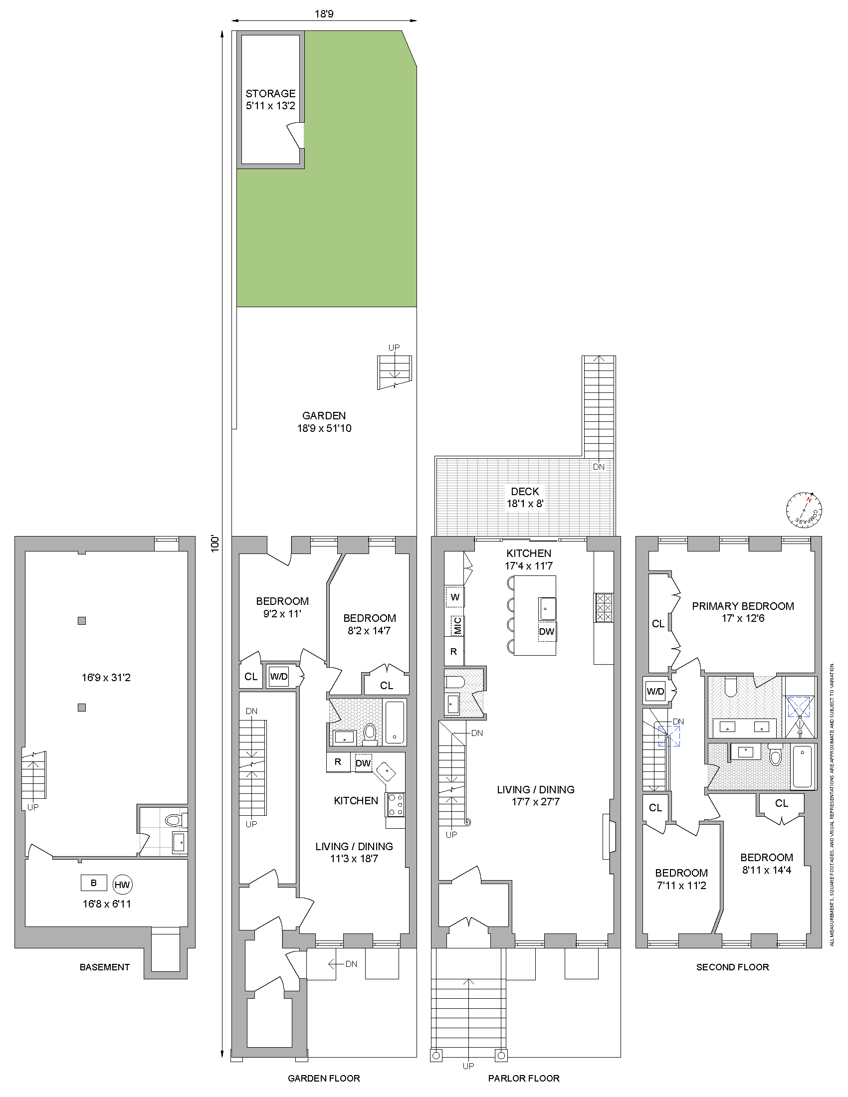
Enter the three-bedroom duplex through an inviting foyer featuring an oversized, half-glass original entry door. With soaring...Built in 1899, 427 Quincy Street masterfully combines historic charm with modern luxury, offering meticulous renovations that respect its original character while introducing contemporary elegance. This distinguished three-story, two-family brownstone boasts 5 bedrooms, 3 full bathrooms, and 2 powder rooms, all outfitted with premium finishes and state-of-the-art technology.
Enter the three-bedroom duplex through an inviting foyer featuring an oversized, half-glass original entry door. With soaring 10-foot ceilings, the expansive parlor floor is bathed in natural light, creating an open and airy ambiance. At the front, the formal living room is highlighted by an original decorative limestone fireplace, offering a sophisticated space for entertaining. A generous dining space is adjacent to the living area, conveniently complemented by a thoughtfully designed powder room.
Toward the rear, the chef’s kitchen is a true centerpiece, featuring a large central island with a farmhouse sink, custom cabinetry, and gleaming quartz countertops. A striking full glass rear wall overlooks the lush backyard garden, infusing the space with tranquility. Outfitted with top-of-the-line Wolf appliances—including a six-burner stove, dishwasher, pot filler, and Frigidaire wine cooler—the kitchen is both functional and exquisite, ideal for culinary enthusiasts.
The serene primary bedroom overlooks the backyard garden and offers two deep closets for ample storage. Its spa-like en-suite bathroom showcases marble tiled floors, a double vanity, and a glass-enclosed shower, providing a luxurious retreat. The top floor is flooded with natural light from three skylights, enhancing the bright and inviting atmosphere. Two south-facing bedrooms, a stylish secondary bathroom, and a convenient in-unit washer/dryer complete this level.
Accessible via an interior staircase, the finished basement features textured tile flooring, 7-foot ceilings, and a powder room. This versatile space can easily adapt to your needs as a playroom, home office, or additional living area.
The separate garden unit also features two bedrooms and one bathroom apartment, making it an ideal income-producing asset or in-law suite.
Nestled on a picturesque, tree-lined street at the border of Bedford-Stuyvesant and Clinton Hill, 427 Quincy Street is surrounded by vibrant neighborhood amenities. Enjoy easy access to acclaimed dining spots such as Daphne's, Sincerely Tommy, Bed-Vyne Brew, Warude, and Peaches Hothouse. Outdoor enthusiasts will appreciate nearby Von King Park, featuring a playground and basketball court. Commuters benefit from convenient transportation options, including the A/C and G trains, the Halsey B26 bus, and quick access to JFK Airport.
This impeccably redesigned townhouse offers a perfect blend of timeless elegance, modern convenience, and an unbeatable neighborhood lifestyle.
Listing Agents
tali@compass.comP: (917)-246-8581
isaac@compass.comP: (917)-734-2376
Amenities
- Primary Ensuite
- Private Yard
- Deck
- Decorative Fireplace
- Fireplace
- Hardwood Floors
- High Ceilings
- Oversized Windows
Property Details for 427 Quincy Street
| Status | Sold |
|---|---|
| Days on Market | 38 |
| Taxes | $250 / month |
| Maintenance | - |
| Min. Down Pymt | 20% |
| Total Rooms | 13.0 |
| Compass Type | Townhouse |
| MLS Type | House/Building |
| Year Built | 1901 |
| Lot Size | 1,875 SF / 19' x 100' |
| County | Kings County |
| Buyer's Agent Compensation | 2.5% |
Building
427 Quincy St
Location
Building Information for 427 Quincy Street
Payment Calculator
$13,166 per month
30 year fixed, 6.15% Interest
$12,916
$250
$0
Property History for 427 Quincy Street
| Date | Event & Source | Price |
|---|---|---|
| 05/15/2025 | Sold Manual | $2,650,000 |
| 05/15/2025 | $2,650,000 +81.3% / yr | |
| 03/03/2025 | Contract Signed Manual | — |
| 01/23/2025 | Listed (Active) Manual | $2,695,000 |
| 03/25/2024 | Sold ONEKEY #3522331 | $1,346,000 |
| 03/25/2024 | $1,346,000 | |
| 01/24/2024 | Contract Signed ONEKEY #3522331 | — |
| 12/23/2023 | Listed (Active) ONEKEY #3522331 | $1,550,000 |
For completeness, Compass often displays two records for one sale: the MLS record and the public record.
Public Records for 427 Quincy Street
Schools near 427 Quincy Street
Rating | School | Type | Grades | Distance |
|---|---|---|---|---|
| Public - | PK to 5 | |||
| Public - | 6 to 8 | |||
| Public - | 9 to 12 | |||
| Public - | 6 to 8 |
Rating | School | Distance |
|---|---|---|
P.S. 25 Eubie Blake School PublicPK to 5 | ||
Jhs 57 Whitelaw Reid Public6 to 8 | ||
The Brooklyn Academy Of Global Finance Public9 to 12 | ||
Ms 267 Math Science And Technology Public6 to 8 |
School ratings and boundaries are provided by GreatSchools.org and Pitney Bowes. This information should only be used as a reference. Proximity or boundaries shown here are not a guarantee of enrollment. Please reach out to schools directly to verify all information and enrollment eligibility.
Neighborhood Map and Transit
Similar Homes
Similar Sold Homes
Explore Nearby Homes
- Bushwick Homes for Sale
- Stuyvesant Heights Homes for Sale
- Ocean Hill Homes for Sale
- Northern Brooklyn Homes for Sale
- Bedford-Stuyvesant Homes for Sale
- Ridgewood Homes for Sale
- Northwestern Queens Homes for Sale
- Williamsburg Homes for Sale
- East Williamsburg Homes for Sale
- Glendale Homes for Sale
- Central Brooklyn Homes for Sale
- Crown Heights Homes for Sale
- Weeksville Homes for Sale
- Maspeth Homes for Sale
- Clinton Hill Homes for Sale
- New York Homes for Sale
- Brooklyn Homes for Sale
- Queens Homes for Sale
- Manhattan Homes for Sale
- Jersey City Homes for Sale
- Hoboken Homes for Sale
- Weehawken Homes for Sale
- Bayonne Homes for Sale
- Union City Homes for Sale
- West New York Homes for Sale
- Bronx Homes for Sale
- Guttenberg Homes for Sale
- North Bergen Homes for Sale
- Staten Island Homes for Sale
- Edgewater Homes for Sale
- 11207 Homes for Sale
- 11237 Homes for Sale
- 11233 Homes for Sale
- 11216 Homes for Sale
- 11206 Homes for Sale
- 11385 Homes for Sale
- 11213 Homes for Sale
- 11205 Homes for Sale
- 11238 Homes for Sale
- 11249 Homes for Sale
- 11211 Homes for Sale
- 11378 Homes for Sale
- 11212 Homes for Sale
- 11208 Homes for Sale
- 11225 Homes for Sale
No guarantee, warranty or representation of any kind is made regarding the completeness or accuracy of descriptions or measurements (including square footage measurements and property condition), such should be independently verified, and Compass, Inc., its subsidiaries, affiliates and their agents and associated third parties expressly disclaims any liability in connection therewith. Photos may be virtually staged or digitally enhanced and may not reflect actual property conditions. Offers of compensation are subject to change at the discretion of the seller. No financial or legal advice provided. Equal Housing Opportunity.
This information is not verified for authenticity or accuracy and is not guaranteed and may not reflect all real estate activity in the market. ©2026 The Real Estate Board of New York, Inc., All rights reserved. The source of the displayed data is either the property owner or public record provided by non-governmental third parties. It is believed to be reliable but not guaranteed. This information is provided exclusively for consumers’ personal, non-commercial use. The data relating to real estate for sale on this website comes in part from the IDX Program of OneKey® MLS. Information Copyright 2026, OneKey® MLS. All data is deemed reliable but is not guaranteed accurate by Compass. See Terms of Service for additional restrictions. Compass · Tel: 212-913-9058 · New York, NY Listing information for certain New York City properties provided courtesy of the Real Estate Board of New York’s Residential Listing Service (the "RLS"). The information contained in this listing has not been verified by the RLS and should be verified by the consumer. The listing information provided here is for the consumer’s personal, non-commercial use. Retransmission, redistribution or copying of this listing information is strictly prohibited except in connection with a consumer's consideration of the purchase and/or sale of an individual property. This listing information is not verified for authenticity or accuracy and is not guaranteed and may not reflect all real estate activity in the market. ©2026 The Real Estate Board of New York, Inc., all rights reserved. This information is not guaranteed, should be independently verified and may not reflect all real estate activity in the market. Offers of compensation set forth here are for other RLSParticipants only and may not reflect other agreements between a consumer and their broker.©2026 The Real Estate Board of New York, Inc., All rights reserved.














1