390 Donald Ross Dr





































Description
- Listed by Debra Serino Brenner • At Home RealtorsP: (910)-315-9051 serinodeb@gmail.com
Property Details for 390 Donald Ross Drive
Property Details for 390 Donald Ross Drive
| Status | Closed |
|---|---|
| MLS # | 100502064 |
| Days on Market | 8 |
| Taxes | $3,035 / year |
| HOA Fees | - |
| Condo/Co-op Fees | - |
| Compass Type | Single Family |
| MLS Type | Residential / Single Family Residence |
| Year Built | 1982 |
| Lot Size | 0.74 AC / 32,234 SF |
| County | Moore County |
Location
Sold By Merit Real Estate Services
Building Information for 390 Donald Ross Drive
Payment Calculator
$3,665 per month
30 year fixed, 6.15% Interest
$3,412
$253
$0
Property Information for 390 Donald Ross Drive
- Island Or Mainland: Mainland
- In City Limits: Yes
- Cobra Zone: No
- Directions: Linden Road to Donald Ross Drive
- Latitude: 35
- Longitude: -79
- Road Frontage Type: City Street, State Road
- Tax Other Assessment Amount Frequency: NO
- Association Amenities: Club Membership
- Association: No
- Parcel Number: 00018272
- Tax Book Number: tbd
- Tax Legal Description: LOT 132 UNIT 2 PH I
- Tax Map Number: tbd
- Tax Assessed Value: $530,200
- Tax Year: 2024
- Elementary School: Pinehurst Elementary
- High School: Pinecrest
- High School District: Moore County Schools
- Middle Or Junior School: West Pine Middle
- Attached Garage: No
- Carport Spaces: 0.0
- Parking Total: 2.0
- Parking Features: Garage Faces Side
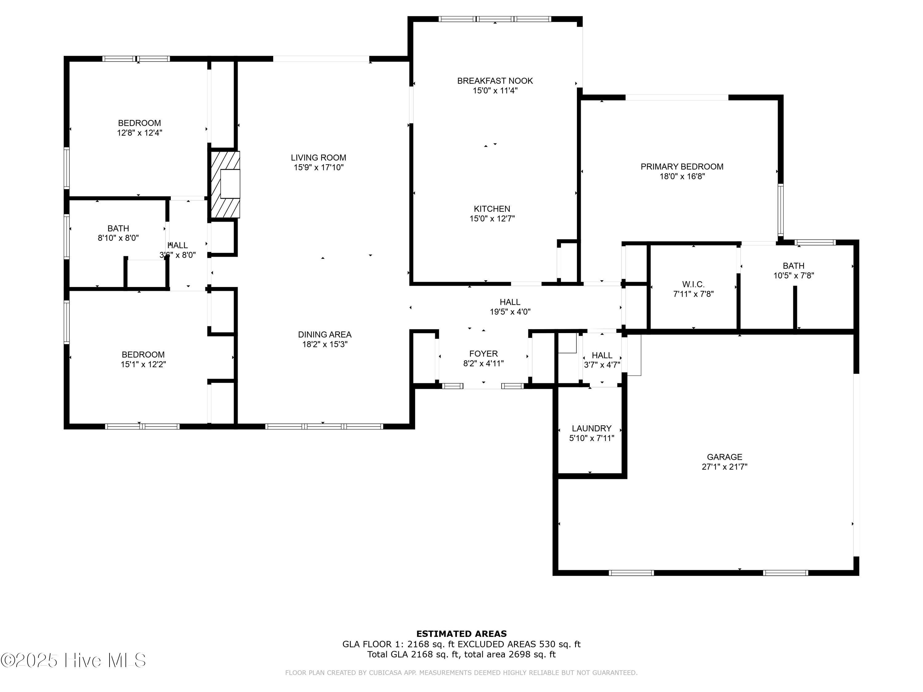
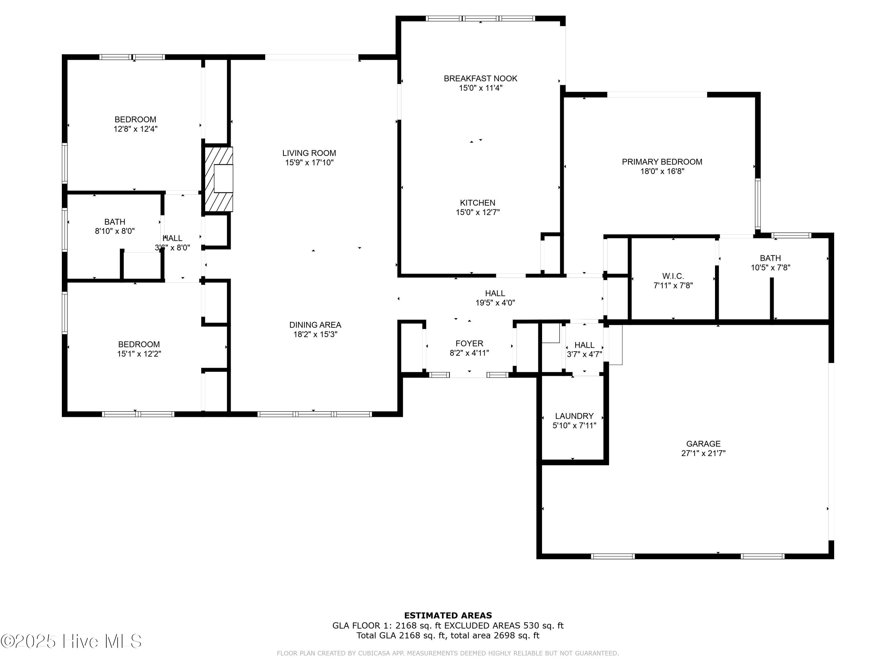
- Building Area Total: 2168.0
- Lot Size Acres: 0.74
- Lot Size Area: 0.74
- Lot Size Square Feet: 32234.0
- Lot Size Dimensions: 160x245x105x240
- Lot Size Units: Acres
- Living Area: 2168.0
- Living Area Units: Square Feet
- Structure Type: Wood Frame
- Deed Book: 4760
- Deed Page: 147.0
- Floor Plans Count: 1
- Floor Plans Change Timestamp: 04-18-2025 10:47:01 AM
- New Construction: No
- Possession: At Closing
- Property Sub Type: Single Family Residence
- Property Type: Residential
- Year Built: 1982
- Permitted Use: Public
- Sewer Provider: Municipal Sewer, Moore County Public Works
- Trash Collection: City Pick-UP
- Electric Provider: Duke Energy
- Trash Provider: Village of Pinehurst
- Water Provider: Moore County Public Works
- Utilities: Natural Gas Available, Sewer Available, Water Available
- Water Source: Public
- Exterior Finish: Brick
- Construction Materials: Brick
- Fencing: None
- Foundation Details: Crawl Space
- Patio And Porch Features: Deck, Screened
- Roof: Architectural Shingle
- Security Features: Smoke Detector(s)
- Stories: 1
- Bathrooms Total Source: Computed
- Bathrooms Total Decimal: 2.0
- Bathrooms Total Notational: 2.0
- Heating System Fuel Source: Electric
- Dining Room Type: Combination
- Master Bedroom Level: Primary Living Area
- Appliances: Electric Cooktop, Dishwasher
- Bathrooms Full: 2
- Bathrooms Half: 0
- Bathrooms Total Integer: 2
- Bedrooms Total: 3
- Cooling: Heat Pump
- Cooling: Yes
- Flooring: Tile, Wood
- Heating: Yes
- Heating: Heat Pump
- Interior Features: Master Downstairs, Walk-in Closet(s), Tray Ceiling(s), High Ceilings, Entrance Foyer, Bookcases, Walk-In Closet(s), Whole House Fan
- Laundry Features: Laundry Room
- Levels: One
- Room Type: Master Bedroom
- Rooms Total: 8
- Window Features: Skylight(s)
- Room Level: Main
- Room Length: 18.0
- Room Width: 17.0
- Room Type: Master Bedroom
- Furnished: Unfurnished
- Operating Expense: $.00
- Sold Exclusive: No
Property History for 390 Donald Ross Drive
| Date | Event & Source | Price | Appreciation |
|---|---|---|---|
| May 27, 2025 | Sold NCRMLS #100502064 | $700,000 | — |
| May 8, 2025 | Sold (Public Record) Public Record #1558177961 | $700,000 | +22.5% / yr |
| Apr 26, 2025 | Pending NCRMLS #100502064 | — | |
| Apr 18, 2025 | Listed (Active) NCRMLS #100502064 | $745,000 | — |
| Nov 10, 2016 | Sold (Public Record) Public Record #1217295319 | $125,000 | — |
| Date | Event & Source | Price |
|---|---|---|
| 05/27/2025 | Sold NCRMLS #100502064 | $700,000 |
| 05/08/2025 | Sold (Public Record) Public Record #1558177961 | $700,000 +22.5% / yr |
| 04/26/2025 | Pending NCRMLS #100502064 | — |
| 04/18/2025 | Listed (Active) NCRMLS #100502064 | $745,000 |
| 11/10/2016 | Sold (Public Record) Public Record #1217295319 | $125,000 |
For completeness, Compass often displays two records for one sale: the MLS record and the public record.
Public Records for 390 Donald Ross Drive
Schools near 390 Donald Ross Drive
Rating | School | Type | Grades | Distance |
|---|---|---|---|---|
| Public - | K to 5 | |||
| Public - | 6 to 8 | |||
| Public - | 9 to 12 | |||
| Public - | K to 12 |
Rating | School | Distance |
|---|---|---|
Pinehurst Elementary School PublicK to 5 | ||
West Pine Middle School Public6 to 8 | ||
Pinecrest High School Public9 to 12 | ||
Connect Academy PublicK to 12 |
School ratings and boundaries are provided by GreatSchools.org and Pitney Bowes. This information should only be used as a reference. Proximity or boundaries shown here are not a guarantee of enrollment. Please reach out to schools directly to verify all information and enrollment eligibility.
Similar Homes
Similar Sold Homes
Explore Nearby Homes
- Forest Creek Homes for Sale
- Locklair Homes for Sale
- Mid South Club Homes for Sale
- Old Village Center District Homes for Sale
- Pinewild Homes for Sale
- Taylortown Homes for Sale
- Village West District Homes for Sale
- Talamore Homes for Sale
- Arboretum Homes for Sale
- Foxfire Homes for Sale
- Meadow Ridge Homes for Sale
- Knollwood Village Homes for Sale
- Old Bethesda Homes for Sale
- Pineridge Homes for Sale
- Weymouth Heights Homes for Sale
- Southern Pines Homes for Sale
- Pinehurst Homes for Sale
- Aberdeen Homes for Sale
- Carthage Homes for Sale
- Whispering Pines Homes for Sale
- Pinebluff Homes for Sale
- Cameron Homes for Sale
- Vass Homes for Sale
- Lakeview Homes for Sale
- Jackson Springs Homes for Sale
- West End Homes for Sale
- Marston Homes for Sale
- Hoffman Homes for Sale
- Norman Homes for Sale
- Eagle Springs Homes for Sale
- 27376 Homes for Sale
- 28315 Homes for Sale
- 28327 Homes for Sale
- 28387 Homes for Sale
- 27281 Homes for Sale
- 28373 Homes for Sale
- 28394 Homes for Sale
- 28350 Homes for Sale
- 28347 Homes for Sale
- 28326 Homes for Sale
- 28338 Homes for Sale
- 27242 Homes for Sale
- 28376 Homes for Sale
- 28396 Homes for Sale
- 27229 Homes for Sale
No guarantee, warranty or representation of any kind is made regarding the completeness or accuracy of descriptions or measurements (including square footage measurements and property condition), such should be independently verified, and Compass, Inc., its subsidiaries, affiliates and their agents and associated third parties expressly disclaims any liability in connection therewith. Photos may be virtually staged or digitally enhanced and may not reflect actual property conditions. Offers of compensation are subject to change at the discretion of the seller. No financial or legal advice provided. Equal Housing Opportunity.
Listing Courtesy of At Home Realtors
The data relating to real estate on this web site comes in part from the Internet Data Exchange program of Hive MLS, and is updated as of 10/01/2025 03:48 PM. All information is deemed reliable but not guaranteed and should be independently verified. All properties are subject to prior sale, change, or withdrawal. Neither listing broker(s) nor Compass shall be responsible for any typographical errors, misinformation, or misprints, and shall be held totally harmless from any damages arising from reliance upon these data. © 2026 Hive MLS






































1