380 South St



















Description
- Listed by Eric Klein • Engel & Volkers Newton
Property Details for 380 South Street
Property Details for 380 South Street
| Status | Sold |
|---|---|
| MLS # | 73360977 |
| Days on Market | 15 |
| Taxes | $10,892 / year |
| HOA Fees | - |
| Compass Type | Single Family |
| MLS Type | Single Family / Detached |
| Year Built | 1920 |
| County | Suffolk County |
Location
Sold By Hammond Residential Real Estate, Mona And Shari Wiener
Building Information for 380 South Street
Payment Calculator
$7,030 per month
30 year fixed, 6.15% Interest
$6,123
$908
$0
Property Information for 380 South Street
- Building Area Units: Square Feet
- Community Features: Public Transportation, Shopping, Tennis Court, Park, Walk/Jog Trails, Golf Course, T-Station
- Current Financing: Conv. Fixed
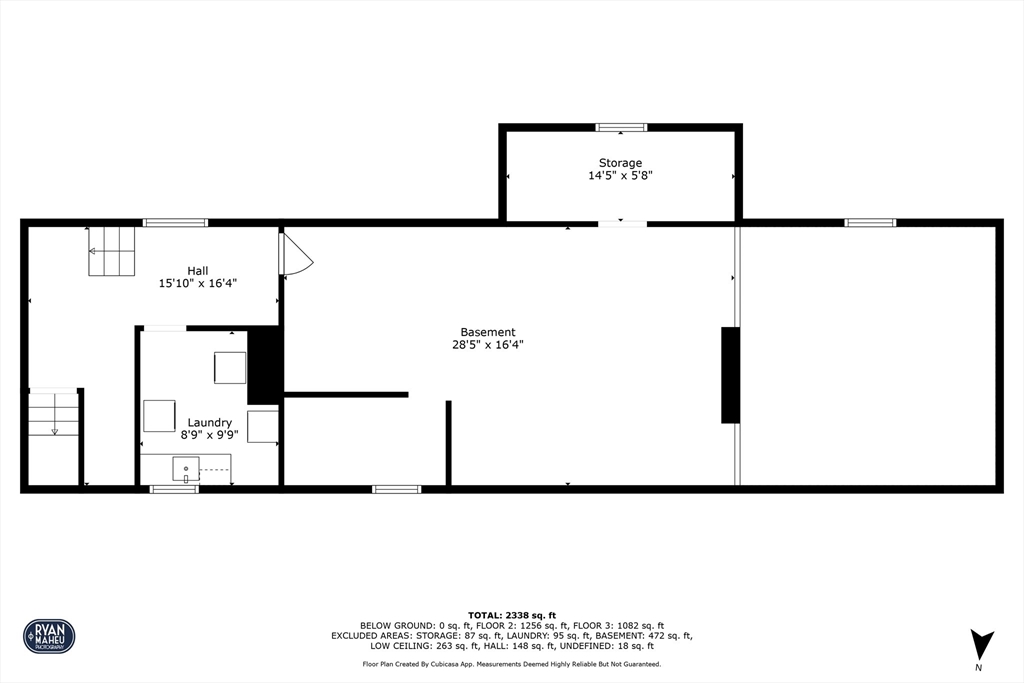
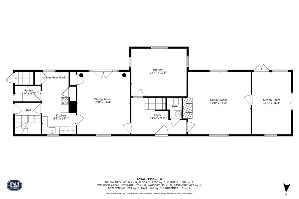
- Living Area: 2338.0
- Color: Brick
- SqFt with Basement: No
- Property Attached: No
- Single Family Type: Detached
- Waterfront: No
- Year Built Details: Actual
- Year Built Source: Public Records
- Appliances: Water Heater, Range, Dishwasher, Washer, Dryer
- Basement Features: Full
- Num of Baths: 3.0
- Num of Full Baths: 2
- Num of Half Baths: 1
- Bathrooms Total Decimal: 2.50
- Bathrooms Total Integer: 3
- DoorFeatures: French Doors
- FireplaceFeatures: Living Room
- FireplaceYN: Yes
- Fireplaces: 1
- Interior Features: Den
- Interior Features: French Doors
- SpaYN: No
- Construction: Brick
- Exterior Features: Deck
- Exterior Features: Deck
- Lot Description: Wooded, Level
- Patio And Porch Features: Deck
- Roof Material: Shingle
- Covered Spaces: .00
- Garage: No
- Garage Parking: Off-Street, Unpaved Driveway
- Open Parking: Yes
- Parking Features: Off-Street, Unpaved Driveway
- Parking Features: Off-Street, Unpaved Driveway
- Cooling: None
- Cooling: No
- Heating: Steam
- Heating: Yes
- Sewer: City/Town Sewer
- Water: Public
- Room Primary Bedroom Features: Bathroom - Full
- Primary Bedroom Level: Second Floor
- Bedroom2 Level: First
- Bedroom3 Level: Second
- Bedroom4 Level: Second
- Bathroom1 Features: Bathroom - Half
- Bathroom1 Level: First
- Bathroom2 Features: Bathroom - With Tub & Shower
- Bathroom2 Level: Second
- Bathroom3 Level: Second
- Dining Room Features: French Doors
- Dining Room Level: First
- Kitchen Features: Pantry
- Kitchen Level: First
- Room Living Room Level: First
- Farm Land Area Units: Square Feet
- WARRANTY: No
- Lot Size Units: Acres
- Road Frontage Type: Public
- Disclosures: Buyer to perform their own due diligence in regards to zoning/renovation/building permits/GLA
- Tax ID: 1353859
- Assessments: $940,600
- Book: 16939
- Tax Year: 2025
- Zoning: R1
- Beds Total: 4
- Foundation: Concrete Perimeter
- Adult Community: No
Property History for 380 South Street
| Date | Event & Source | Price | Appreciation |
|---|---|---|---|
| Jul 9, 2025 | Sold MLS PIN #73360977 | $1,256,250 | — |
| May 2, 2025 | Under Agreement MLS PIN #73360977 | — | |
| May 2, 2025 | Contingent MLS PIN #73360977 | — | |
| Apr 17, 2025 | Listed (Active) MLS PIN #73360977 | $1,250,000 | — |
| Date | Event & Source | Price |
|---|---|---|
| 07/09/2025 | Sold MLS PIN #73360977 | $1,256,250 |
| 05/02/2025 | Under Agreement MLS PIN #73360977 | — |
| 05/02/2025 | Contingent MLS PIN #73360977 | — |
| 04/17/2025 | Listed (Active) MLS PIN #73360977 | $1,250,000 |
For completeness, Compass often displays two records for one sale: the MLS record and the public record.
Public Records for 380 South Street
Schools near 380 South Street
Rating | School | Type | Grades | Distance |
|---|---|---|---|---|
| Public - | PK to 8 | |||
| Public - | 9 to 12 | |||
| Public - | 7 to 12 | |||
| Public - | PK to 6 |
Rating | School | Distance |
|---|---|---|
Boston Teachers Union School PublicPK to 8 | ||
Margarita Muniz Academy Public9 to 12 | ||
The English High School Public7 to 12 | ||
Manning Elementary School PublicPK to 6 |
School ratings and boundaries are provided by GreatSchools.org and Pitney Bowes. This information should only be used as a reference. Proximity or boundaries shown here are not a guarantee of enrollment. Please reach out to schools directly to verify all information and enrollment eligibility.
Similar Homes
Similar Sold Homes
Explore Nearby Homes
- Moss Hill Homes for Sale
- Highland Park Homes for Sale
- Glenvale Park Homes for Sale
- Lower Washington-Mount Hope Homes for Sale
- Woodbourne Historic District Homes for Sale
- Jamaica Central-South Sumner Homes for Sale
- The Greater Point Homes for Sale
- Franklin Field North Homes for Sale
- Hyde Square Homes for Sale
- Forest Hills-Woodbourne Homes for Sale
- Egleston Square Homes for Sale
- Monument Square Historic District Homes for Sale
- Jamaica Hills-Pond Homes for Sale
- High Street Hill Homes for Sale
- Wellington Hill Homes for Sale
- Roslindale Homes for Sale
- West Roxbury Homes for Sale
- Boston Homes for Sale
- Roxbury Crossing Homes for Sale
- Roxbury Homes for Sale
- Jamaica Plain Homes for Sale
- Brookline Homes for Sale
- Mattapan Homes for Sale
- Hyde Park Homes for Sale
- Dorchester Center Homes for Sale
- Dorchester Homes for Sale
- Chestnut Hill Homes for Sale
- Newton Homes for Sale
- Allston Homes for Sale
- Cambridge Homes for Sale
- 02124 Homes for Sale
- 02121 Homes for Sale
- 02120 Homes for Sale
- 02115 Homes for Sale
- 02119 Homes for Sale
- 02445 Homes for Sale
- 02132 Homes for Sale
- 02131 Homes for Sale
- 02467 Homes for Sale
- 02126 Homes for Sale
- 02446 Homes for Sale
- 02215 Homes for Sale
- 02136 Homes for Sale
- 02118 Homes for Sale
- 02125 Homes for Sale
No guarantee, warranty or representation of any kind is made regarding the completeness or accuracy of descriptions or measurements (including square footage measurements and property condition), such should be independently verified, and Compass, Inc., its subsidiaries, affiliates and their agents and associated third parties expressly disclaims any liability in connection therewith. Photos may be virtually staged or digitally enhanced and may not reflect actual property conditions. Offers of compensation are subject to change at the discretion of the seller. No financial or legal advice provided. Equal Housing Opportunity.
Listing Courtesy of Engel & Volkers Newton, Eric Klein
The property listing data and information, or the images, set forth herein were provided to MLS Property Information Network, Inc., Martha's Vineyard MLS, CCIMLS, Link MLS, and Berkshire County Board of REALTORS from third party sources, including sellers, lessors and public records, and were compiled by MLS Property Information Network, Inc., Martha's Vineyard MLS, CCIMLS, Link MLS, and Berkshire County Board of REALTORS. The property listing data and information, and the images, are for the personal, non-commercial use of consumers having a good faith interest in purchasing or leasing listed properties of the type displayed to them and may not be used for any purpose other than to identify prospective properties which such consumers may have a good faith interest in purchasing or leasing. MLS Property Information Network, Inc., Martha's Vineyard MLS, CCIMLS, Link MLS, and Berkshire County Board of REALTORS and its subscribers disclaim any and all representations and warranties as to the accuracy of the property listing data and information, or as to the accuracy of any of the images, set forth herein.



















1