



































Description
- Listed by Dane Rickard • RE/MAX ProfessionalsP: (303)-973-3313 C: (303)-880-5410 danerickard@remax.net
Property Details for 35681 Upper Aspen Lane
Property Details for 35681 Upper Aspen Lane
| Status | Closed |
|---|---|
| MLS # | 5815785 |
| Days on Compass | 3 |
| Taxes | $2,789 / year |
| HOA Fees | $300 / year |
| Condo/Co-op Fees | - |
| Compass Type | Single Family |
| MLS Type | Residential / Single Family Residence |
| Year Built | 2001 |
| Lot Size | 1.10 AC / 47,916 SF |
| County | Park County |
Location
Sold By Coldwell Banker Realty 54, Taylor Carpenter
Building Information for 35681 Upper Aspen Lane
Payment Calculator
$4,386 per month
30 year fixed, 6.15% Interest
$4,128
$232
$25
Property Information for 35681 Upper Aspen Lane
- Building Area Total (SqFt Total): 3722
- Sqft Total: 3722
- Living Area (SqFt Finished): 3500
- Above Grade Finished Area: 1861
- Living SqFt: 1861
- Sq Ft Apx: 1639
- Area Source: Public Records
- PSF Total: 228
- PSF Above Grade: 455
- PSF Finished: 242
- Master on Main: Yes
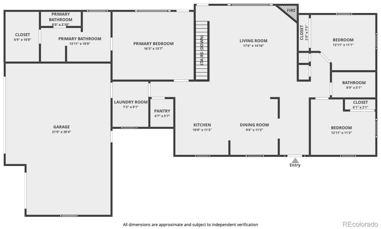
- Room and Floor: Kitchen-Main-1, Laundry-Main-1, Living Room-Main-1, Primary Bathroom (Full)-Main-1, Primary Bedroom-Main-1, Bedroom-Main-1, Bedroom-Main-2, Bathroom (Full)-Main-1, Bedroom-Basement-1, Bathroom (Full)-Basement-1, Great Room-Basement-1, Den-Basement-1
- Room Count: 12
- Basement: Finished
- Foundation Details: Raised, Slab
- Fireplaces Total: 1
- Fireplace Features: Gas Log, Living Room
- Heating: Forced Air, Natural Gas
- Cooling: None
- Interior Features: Breakfast Nook, Built-in Features, Eat-in Kitchen, Entrance Foyer, Five Piece Bath, Granite Counters, Kitchen Island, Primary Suite, Open Floorplan, Pantry, Smoke Free, Vaulted Ceiling(s), Walk-In Closet(s), Wired for Data
- Security Features: Carbon Monoxide Detector(s), Smoke Detector(s)
- Flooring: Carpet, Laminate, Tile, Wood
- Window Features: Double Pane Windows, Window Coverings
- Appliances: Dishwasher, Disposal, Dryer, Microwave, Oven, Refrigerator, Washer
- Laundry Features: Dishwasher, Refrigerator, Washer, Dryer, Microwave, Disposal, Fire Alarm
- Virtual Tour URL Unbranded: https://www.listingsmagic.com/222744
- Bedrooms Total: 4
- Upper Level Bedrooms: 0
- Main Level Bedrooms: 3
- Lower Level Bedrooms: 0
- Basement Level Bedrooms: 1
- Bathrooms Total: 3
- Upper Level Bathrooms: 0
- Main Level Bathrooms: 2
- Lower Level Bathrooms: 0
- Basement Level Bathrooms: 1
- Bathrooms Full: 3
- Bathrooms Three Quarter: 0
- Bathrooms Half: 0
- Bathrooms One Quarter: 0
- Room Type: Kitchen
- Room Level: Main
- Room Length: 11
- Room Width: 11
- Room Type: Laundry
- Room Level: Main
- Room Length: 7
- Room Width: 9
- Room Type: Living Room
- Room Level: Main
- Room Length: 18
- Room Width: 15
- Room Type: Primary Bathroom (Full)
- Room Level: Main
- Room Description: With stunning southern views
- Room Length: 14
- Room Width: 10
- Room Type: Primary Bedroom
- Room Level: Main
- Room Description: Walk-out to deck
- Room Length: 16
- Room Width: 14
- Room Type: Bedroom
- Room Level: Main
- Room Length: 13
- Room Width: 11
- Room Type: Bathroom (Full)
- Room Level: Main
- Room Length: 9
- Room Width: 5
- Room Type: Bedroom
- Room Level: Main
- Room Length: 13
- Room Width: 11
- Room Type: Bedroom
- Room Level: Basement
- Room Description: Massive bedroom with attached storage room
- Room Length: 17
- Room Width: 14
- Room Type: Bathroom (Full)
- Room Level: Basement
- Room Length: 10
- Room Width: 5
- Room Type: Great Room
- Room Level: Basement
- Room Description: Huge Rec Room/Family Room/Great Room
- Room Length: 36
- Room Width: 30
- Room Type: Den
- Room Level: Basement
- Room Description: Den or Office with French Doors
- Room Length: 16
- Room Width: 14
- Parking Features: Asphalt
- Attached Garage: Yes
- Parking Total: 3
- Garage Spaces: 5
- Offstreet Spaces: 0
- Parking Count: 6
- Carport Spaces: 0
- Reserved Spaces: 0
- RV Spaces: 1
- Association Fee Total Annual: $300
- Senior Community: No
- School Of Choice: Yes
- Elementary School: Deer Creek
- Elementary School District: Platte Canyon RE-1
- Middle Or Junior School: Fitzsimmons
- Middle Or Junior School District: Platte Canyon RE-1
- High School: Platte Canyon
- High School District: Platte Canyon RE-1
- Lot Size Acres: 1.10
- Lot Size Square Feet: 47916
- Lot Features: Borders National Forest, Many Trees, Mountainous, Open Space, Rock Outcropping
- Accessibility Features: Deciduous Trees, Rock Outcropping, Abuts National Forest, Abuts Public Open Space
- Property Exclusions: Sellers personal property, other items negotiable depending on offer.
- Green Verification Count: 0
- Out Building Count: 0
- Horse: No
- Construction Materials: Cement Siding, Frame, Rock
- Property Condition: Updated/Remodeled
- Roof: Composition, Metal
- Exterior Features: Balcony, Garden, Private Yard
- Patio And Porch Features: Covered, Deck, Front Porch
- Livable Structure Count: 0
- Water Included: Yes
- Water Source: Well
- Well Usage: Household w/Irrigation
- Utilities: Internet Access (Wired)
- Sewer: Septic Tank
Property History for 35681 Upper Aspen Lane
| Date | Event & Source | Price | Appreciation |
|---|---|---|---|
| Jun 11, 2021 | Sold (Public Record) Public Record #1465848046 | $847,000 | +9.3% / yr |
| Nov 3, 2011 | Sold (Public Record) Public Record #318834295 | $360,000 | — |
| Nov 3, 2011 | Sold (Public Record) Public Record #319203027 | $360,000 | -2.4% / yr |
| May 21, 2003 | Sold (Public Record) Public Record #113051667 | $440,500 | +2.9% / yr |
| May 17, 2001 | Sold (Public Record) Public Record #72612021 | $415,700 | — |
| Date | Event & Source | Price |
|---|---|---|
| 06/11/2021 | Sold (Public Record) Public Record #1465848046 | $847,000 +9.3% / yr |
| 11/03/2011 | Sold (Public Record) Public Record #318834295 | $360,000 |
| 11/03/2011 | Sold (Public Record) Public Record #319203027 | $360,000 -2.4% / yr |
| 05/21/2003 | Sold (Public Record) Public Record #113051667 | $440,500 +2.9% / yr |
| 05/17/2001 | Sold (Public Record) Public Record #72612021 | $415,700 |
For completeness, Compass often displays two records for one sale: the MLS record and the public record.
Public Records for 35681 Upper Aspen Lane
Schools near 35681 Upper Aspen Lane
Rating | School | Type | Grades | Distance |
|---|---|---|---|---|
| Public - | PK to 5 | |||
| Public - | 6 to 8 | |||
| Public - | 9 to 12 |
Rating | School | Distance |
|---|---|---|
Deer Creek Elementary School PublicPK to 5 | ||
Fitzsimmons Middle School Public6 to 8 | ||
Platte Canyon High School Public9 to 12 |
School ratings and boundaries are provided by GreatSchools.org and Pitney Bowes. This information should only be used as a reference. Proximity or boundaries shown here are not a guarantee of enrollment. Please reach out to schools directly to verify all information and enrollment eligibility.
Similar Homes
Similar Sold Homes
Explore Nearby Homes
- Pine Junction Area Homes for Sale
- Richmond Hill Corridor Homes for Sale
- Shadow Mountain Homes for Sale
- Deer Creek Valley Ranchos Homes for Sale
- Pleasant Park Corridor Homes for Sale
- Green Valley Homes for Sale
- Kings Valley Homes for Sale
- Harris Park Estates Homes for Sale
- Conifer Mountain and Meadows Homes for Sale
- Black Mountain Ranch Estates Homes for Sale
- Conifer Mountain and Meadows East Homes for Sale
- Elk Creek Highlands Homes for Sale
- Evergreen Heights and Estates Homes for Sale
- Burland Ranchettes Homes for Sale
- Starbuck Heights and Morrison Homes for Sale
- Conifer Homes for Sale
- Como Homes for Sale
- Jefferson Homes for Sale
- Evergreen Homes for Sale
- Shawnee Homes for Sale
- Buffalo Creek Homes for Sale
- Bailey Homes for Sale
- Pine Homes for Sale
- Kittredge Homes for Sale
- Lake George Homes for Sale
- Indian Hills Homes for Sale
- Littleton Homes for Sale
- Grant Homes for Sale
- Morrison Homes for Sale
- Idledale Homes for Sale
- 80421 Homes for Sale
- 80433 Homes for Sale
- 80439 Homes for Sale
- 80425 Homes for Sale
- 80135 Homes for Sale
- 80127 Homes for Sale
- 80452 Homes for Sale
- 80456 Homes for Sale
- 80475 Homes for Sale
- 80465 Homes for Sale
- 80125 Homes for Sale
- 80457 Homes for Sale
- 80454 Homes for Sale
- 80448 Homes for Sale
- 80863 Homes for Sale
No guarantee, warranty or representation of any kind is made regarding the completeness or accuracy of descriptions or measurements (including square footage measurements and property condition), such should be independently verified, and Compass, Inc., its subsidiaries, affiliates and their agents and associated third parties expressly disclaims any liability in connection therewith. Photos may be virtually staged or digitally enhanced and may not reflect actual property conditions. Offers of compensation are subject to change at the discretion of the seller. No financial or legal advice provided. Equal Housing Opportunity.
Listing Courtesy of RE/MAX Professionals, Dane Rickard
Based on information submitted to the MLS GRID as of 05/09/2023 04:57 AM. All data is obtained from various sources and may not have been verified by broker or MLS GRID. Supplied Open House Information is subject to change without notice. All information should be independently reviewed and verified for accuracy. Properties may or may not be listed by the office/agent presenting the information. Properties displayed may be listed or sold by various participants in the MLS. IDX information is provided exclusively for consumers’ personal, non-commercial use and may not be used for any purpose other than to identify prospective properties consumers may be interested in purchasing. The data is deemed reliable but is not guaranteed by MLS GRID. Use of the MLS GRID data may be subject to an end user license agreement prescribed by the applicable MLS of the Member Participant, if any, and as amended from time to time.





































1