35 Krewe Cir, Unit LOT 15

2,306 Sq. Ft.
$268 / Sq. Ft.
2,306
Sq. Ft.
$268
per Sq. Ft.

Description

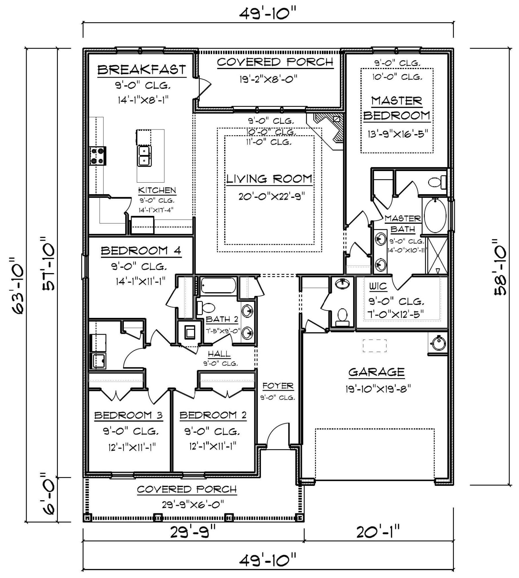
This is the Victoria floorplan. Just off the foyer, there is a hallway that leads to three bedrooms that feature plush carpet, a hall bath and laundry room. The living room is the central point of this floor plan and is open to a large eat-in kitchen with granite countertops and an under-mount stainless steel sink in the center island and a walk-in pantry. Appliances include a smooth top range, dishwasher and microwave. Just off the living room you will find Bedroom 1 with carpet and windows overlooking...This is the Victoria floorplan. Just off the foyer, there is a hallway that leads to three bedrooms that feature plush carpet, a hall bath and laundry room. The living room is the central point of this floor plan and is open to a large eat-in kitchen with granite countertops and an under-mount stainless steel sink in the center island and a walk-in pantry. Appliances include a smooth top range, dishwasher and microwave. Just off the living room you will find Bedroom 1 with carpet and windows overlooking the back yard. The main bath has a dual sink vanity with granite countertops, tiled shower with glass door, a large soak tub, and a walk-in closet. Please note- We are currently not accepting offers from investors at this time
  1. Listed by Lisa M Clay • DR Horton Realty of Emerald Coast LLC
    P: (850)-660-1701 C: (850)-630-0729 lmclay24@gmail.com

Property Details for 35 Krewe Circle, Unit LOT 15

Zoning
Resid Single Family
Architectural Style
Craftsman Style
Subdivision Name
Treasure Trove
LISTING UPDATED: 10/24/2024 09:48 PM

Property Details for 35 Krewe Circle, Unit LOT 15

StatusSold
MLS #893048
Days on Market7
Taxes-
HOA Fees$580 / year
Condo/Co-op Fees-
Compass TypeSingle Family
MLS TypeResidential / Detached Single Family
Year Built2022
Lot Size0.17 AC / 7,405 SF
CountyWalton County

Location

Listing Courtesy of DR Horton Realty of Emerald Coast LLC

Sold By Berkshire Hathaway HomeServices PenFed Realty

Add your commute

Building Information for 35 Krewe Circle, Unit LOT 15

Stories1Year Built2022Building Size-Lot Size0.17 AC / 7,405 SF

Payment Calculator

$3,060 per month

30 year fixed, 6.15% Interest

Principal and Interest

$3,012

Property Taxes

$0

HOA Dues

$48

The Payment Calculator is for illustrative purposes only.

Know your buying power with a preapproval and custom rate in minutes

Rocket Mortgage1

Property Information for 35 Krewe Circle, Unit LOT 15

Summary
Location and General Information
  • Community Features: Pool
  • Directions: From US Hwy 98, turn north onto Goldsby Road. Turn left onto Las Roblas Grande Drive, continue and turn left onto Casa Grande lane, then turn left onto Krewe Circle.
  • MLS Area Minor: 1601 - SRB NW of Hwy 98 to Church Hill Bayou
  • MLS Area Major: 16 - North Santa Rosa Beach
  • Latitude: 30.397171
  • Longitude: -86.29211
  • Location Tax and Legal:Sub Area: 1601 - SRB NW of Hwy 98 to Church Hill Bayou
  • Location Tax and Legal:Elementary School: Van R Butler
  • Location Tax and Legal:Middle School: Emerald Coast
  • Location Tax and Legal:High School: South Walton
  • Location Tax and Legal:Legal Description: LOT 15 TREASURE TROVE ESTATES PHASE II AND III PB 22-20 OR 3132-362
  • Project Facilities: Pool2
  • Garage 2: true
Taxes and HOA
  • Association Fee Frequency: Annually
  • Association Fee Includes: Accounting, Legal, Management, Master Association
  • Association Fee2: $580
  • Tax Legal Description: LOT 15 TREASURE TROVE ESTATES PHASE II AND III PB 22-20 OR 3132-362
  • Parcel Number: 19-2S-20-33301-000-0150
  • Association Fee: $0
  • Association YN: Yes
School Information
  • Elementary School: Van R Butler
  • Middle Or Junior School: Emerald Coast
  • High School: South Walton
Parking
  • Carport YN: No
  • Attached Garage YN: Yes
  • Garage Spaces: 2.0
  • Parking Features: Garage Attached
Property
Lot Information
  • Building Area Source: Building Plan
  • Lot Size Dimensions: 47x158
  • Lot Size Acres: 0.17
  • Lot Size Area: 0.17
  • Lot Size Units: Acres
  • Property Condition: Under Construction
  • Building Area Total: 2306.0
  • Lot Size Square Feet: 7405.2
  • General Property Info:SqFt Source: Building Plan
  • LotParcel Access: Paved Road
Property and Assessments
  • Road Surface Type: Paved
  • Floor Plans Count: 0.0
  • Property Type: Residential
  • Year Built: 2022.0
  • Property Sub Type: Detached Single Family
  • New Construction YN: No
  • General Property Info:Sub-Type: Detached Single Family
  • General Property Info:Design: Craftsman Style
  • Construction Status: Under Construction
  • Construction Siding: Roof Dimensional Shg, Siding CmntFbrHrdBrd, Slab
  • Occupancy Status: New
Utilities
  • Utilities: Public Sewer, Public Water, TV Cable
  • Utilities: Public Sewer, Public Water, TV Cable
  • Energy: AC - Central Elect, Heat Cntrl Electric, Water Heater - Tnkls
Interior and Exterior Features
Exterior Features
  • Exterior Features: Patio Covered
  • Construction Materials: Roof Dimensional Shg, Siding CmntFbrHrdBrd, Slab
  • Stories: 1.0
  • General Property Info:Pool: No
  • General Property Info:Pool Type: None
  • Exterior: Patio Covered
Interior Features
  • Heating: Central
  • Cooling: Central Air
  • Interior Features: Ceiling Crwn Molding, Ceiling Tray/Cofferd, Floor Vinyl, Floor WW Carpet New, Furnished - None, Kitchen Island, Lighting Recessed, Washer/Dryer Hookup
  • Room Type: Bedroom, Kitchen, Living Room, Breakfast Room
  • Rooms Total: 7.0
  • Bathrooms Total Integer: 3.0
  • Bathrooms Total Decimal: 2.5
  • Bathrooms Total Notational: 2.1
  • Cooling YN: Yes
  • Heating YN: Yes
  • Bedrooms Total: 4.0
  • Bathrooms Full: 2.0
  • Bathrooms Half: 1.0
  • Interior: Ceiling Crwn Molding, Ceiling TrayCofferd, Floor Vinyl, Floor WW Carpet New, Furnished - None, Kitchen Island, Lighting Recessed, WasherDryer Hookup
  • Appliances: Dishwasher, Disposal, Microwave, Smooth Stovetop Rnge
Room Information
Room 1
  • Room Type: Bedroom
  • Room Level: First
  • Room Length: 13.75
  • Room Width: 16.42
  • Room Dimensions: 13.75 x 16.42
Room 2
  • Room Type: Bedroom
  • Room Level: First
  • Room Length: 12.08
  • Room Width: 11.08
  • Room Dimensions: 12.08 x 11.08
Room 3
  • Room Type: Bedroom
  • Room Level: First
  • Room Length: 12.08
  • Room Width: 11.08
  • Room Dimensions: 12.08 x 11.08
Room 4
  • Room Type: Bedroom
  • Room Level: First
  • Room Length: 14.08
  • Room Width: 11.08
  • Room Dimensions: 14.08 x 11.08
Room 5
  • Room Type: Kitchen
  • Room Level: First
  • Room Length: 14.08
  • Room Width: 17.33
  • Room Dimensions: 14.08 x 17.33
Room 6
  • Room Type: Living Room
  • Room Level: First
  • Room Length: 20.0
  • Room Width: 22.75
  • Room Dimensions: 20 x 22.75
Room 7
  • Room Type: Breakfast Room
  • Room Level: First
  • Room Length: 14.08
  • Room Dimensions: 14.08 x 8.08
Rental
Rent Information
  • Listing Info Tax Legal:Is Subject Leased: false

Property History for 35 Krewe Circle, Unit LOT 15

DateEvent & SourcePriceAppreciation
Aug 31, 2022

Sold

ECAR #893048

$617,997—
Mar 18, 2022

Pending

ECAR #893048

—
Mar 11, 2022

Listed (Active)

ECAR #893048

$598,995—
DateEvent & SourcePrice
08/31/2022

Sold

ECAR #893048

$617,997
03/18/2022

Pending

ECAR #893048

—
03/11/2022

Listed (Active)

ECAR #893048

$598,995

For completeness, Compass often displays two records for one sale: the MLS record and the public record.

Schools near 35 Krewe Circle, Unit LOT 15

This home is within Walton.
Rating
School
Type
Grades
Distance
Public - K to 5
Public - 6 to 8
Public - 9 to 12
Charter - 5 to 12
Rating
School
Distance
Van R. Butler Elementary School
PublicK to 5

Emerald Coast Middle School
Public6 to 8

South Walton High School
Public9 to 12

Seaside Neighborhood School
Charter5 to 12

School ratings and boundaries are provided by GreatSchools.org and Pitney Bowes. This information should only be used as a reference. Proximity or boundaries shown here are not a guarantee of enrollment. Please reach out to schools directly to verify all information and enrollment eligibility.

Similar Homes

Similar Sold Homes

No guarantee, warranty or representation of any kind is made regarding the completeness or accuracy of descriptions or measurements (including square footage measurements and property condition), such should be independently verified, and Compass, Inc., its subsidiaries, affiliates and their agents and associated third parties expressly disclaims any liability in connection therewith. Photos may be virtually staged or digitally enhanced and may not reflect actual property conditions. Offers of compensation are subject to change at the discretion of the seller. No financial or legal advice provided. Equal Housing Opportunity.

Listing Courtesy of DR Horton Realty of Emerald Coast LLC

The data relating to real estate for sale/lease on this web site come in part from a cooperative data exchange program of the Emerald Coast Association of REALTORS, Central Panhandle Association of REALTORS, Pensacola Association of REALTORS and Capital Area Technology & REALTOR Services. The properties displayed may not be all of the properties in the MLS's database, or all of the properties listed with Brokers participating in the cooperative data exchange program. Information deemed reliable but not guaranteed. Copyright© 2026 Emerald Coast Association of REALTORS, Central Panhandle Association of REALTORS, Pensacola Association of REALTORS and Capital Area Technology & REALTOR Services. All Rights Reserved.