325 Convent Avenue














Description
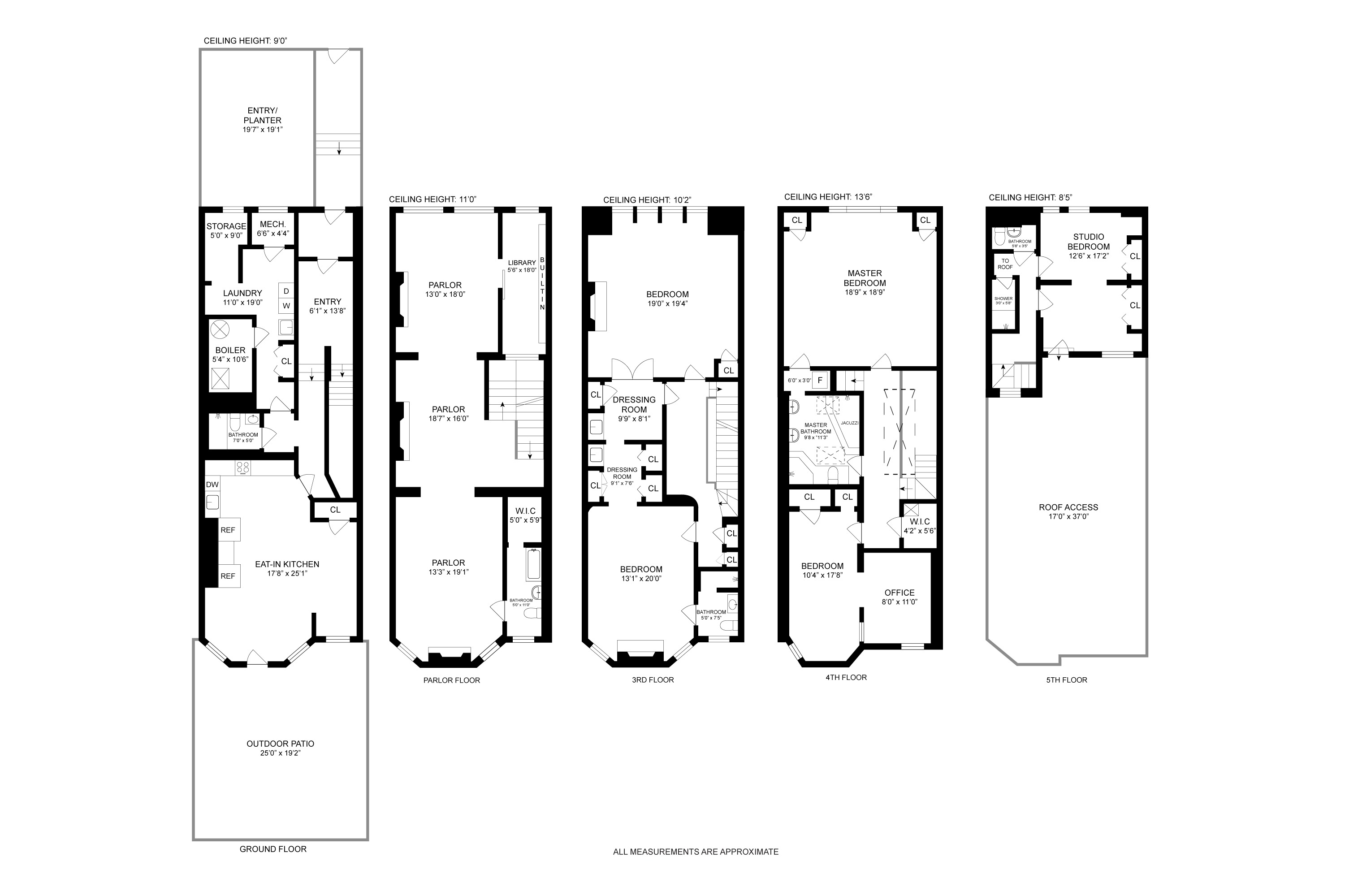
The garden level features a large kitchen with floor-to-ceiling windows. The sliding glass door leads directly to a lovely private outdoor space. This level also...This charming five story brownstone situated in Hamilton Heights is truly a one of a kind single-family home. Each floor features unique period details that are truly a work of art. With approximately 4,471 square feet, this home has five bedrooms and five bathrooms. Bring your contractor and turn this mansion into the home of your dreams!
The garden level features a large kitchen with floor-to-ceiling windows. The sliding glass door leads directly to a lovely private outdoor space. This level also features the utility room which includes a washer and dryer and a full bathroom.
The parlor level features two very large entertaining rooms on opposite ends of a beautiful sitting area showcasing a granite fireplace. Facing West is a large living room with an additional fireplace displaying fully restored original details. As you exit the living room and cross through a pair of original pocket doors, you are welcomed into a beautiful windowed library with floor-to-ceiling bookcases. an elegant piano room aces West with an ensuite bathroom.
Sitting on the second floor is the master suite. It includes a large bedroom and a full bathroom with a standing shower and a walk-in closet. The master bedroom is attached to a built in office and a large living room. Both rooms feature granite fireplaces with original details.
Upon entering the third floor you are greeted by a very large skylight with two bedrooms on each end. The bedroom facing East has a very large bathroom with a full jacuzzi, standing shower and double sinks. The bathroom has full sun exposure due to the large skylight in the middle. The bedroom facing West has a beautiful archway that leads into a small room which could function as an office, a study or a one-of-a-kind walk-in closet.
The top floor has another bedroom with an attached office and bathroom. This level also has access to the roof deck which could function as a great summer gathering space!
Listing Agents
ronita.kalra@compass.comP: (347)-843-9479
brenda.rau@compass.comP: (813)-784-5408
Amenities
- Walk Up
- Lowrise
Property Details for 325 Convent Avenue
| Status | Temporarily Off Market |
|---|---|
| Days on Market | 303 |
| Taxes | $1,039 / month |
| Maintenance | - |
| Min. Down Pymt | - |
| Total Rooms | 5.0 |
| Compass Type | Townhouse |
| MLS Type | Single Family |
| Year Built | 1910 |
| Lot Size | 2,000 SF / 20' x 100' |
| County | New York County |
| Buyer's Agent Compensation | 2.5% |
Building
325 Convent Ave
Location
Virtual Tour
Building Information for 325 Convent Avenue
Payment Calculator
$18,950 per month
30 year fixed, 6.15% Interest
$17,911
$1,039
$0
Property History for 325 Convent Avenue
| Date | Event & Source | Price |
|---|---|---|
| 03/02/2023 | Permanently Off Market Manual | — |
| 03/01/2023 | $3,495,000 | |
| 08/01/2022 | Price Change Manual | $3,495,000 |
| 04/08/2022 | Listed (Active) Manual | $3,675,000 |
| 04/03/2022 | $3,675,000 | |
| 10/04/2021 | Temporarily Off Market Manual | — |
| 04/06/2021 | Price Change Manual | $3,675,000 |
| 12/04/2020 | Listed (Active) Manual | $3,750,000 |
| 01/04/2020 | $3,750,000 | |
| 01/22/2019 | $3,750,000 | |
| 01/17/2019 | $3,850,000 |
For completeness, Compass often displays two records for one sale: the MLS record and the public record.
Public Records for 325 Convent Avenue
Schools near 325 Convent Avenue
Rating | School | Type | Grades | Distance |
|---|---|---|---|---|
| Public - | PK to 5 | |||
| Public - | 6 to 8 | |||
| Public - | 9 to 12 | |||
| Public - | K to 8 |
Rating | School | Distance |
|---|---|---|
P.S. 153 Adam Clayton Powell PublicPK to 5 | ||
Ms 319 Marie Teresa Public6 to 8 | ||
Amistad Dual Language School PublicK to 8 |
School ratings and boundaries are provided by GreatSchools.org and Pitney Bowes. This information should only be used as a reference. Proximity or boundaries shown here are not a guarantee of enrollment. Please reach out to schools directly to verify all information and enrollment eligibility.
Neighborhood Map and Transit
Similar Homes
Similar Sold Homes
Explore Nearby Homes
- Central Harlem Homes for Sale
- Hamilton Heights Homes for Sale
- Harlem Homes for Sale
- Manhattanville Homes for Sale
- Morningside Heights Homes for Sale
- Upper Manhattan Homes for Sale
- Washington Heights Homes for Sale
- West Bronx Homes for Sale
- Highbridge Homes for Sale
- Concourse Village Homes for Sale
- South Harlem Homes for Sale
- Kensington Homes for Sale
- South Bronx Homes for Sale
- Mott Haven Homes for Sale
- Concourse Homes for Sale
- Edgewater Homes for Sale
- Manhattan Homes for Sale
- New York Homes for Sale
- Bronx Homes for Sale
- Cliffside Park Homes for Sale
- Fort Lee Homes for Sale
- Fairview Homes for Sale
- Palisades Park Homes for Sale
- Ridgefield Homes for Sale
- Englewood Cliffs Homes for Sale
- North Bergen Homes for Sale
- Leonia Homes for Sale
- Englewood Homes for Sale
- Guttenberg Homes for Sale
- Ridgefield Park Homes for Sale
- 10032 Homes for Sale
- 10030 Homes for Sale
- 10039 Homes for Sale
- 07020 Homes for Sale
- 10027 Homes for Sale
- 10033 Homes for Sale
- 10451 Homes for Sale
- 10025 Homes for Sale
- 10452 Homes for Sale
- 10037 Homes for Sale
- 10115 Homes for Sale
- 07010 Homes for Sale
- 07024 Homes for Sale
- 10026 Homes for Sale
- 10035 Homes for Sale
No guarantee, warranty or representation of any kind is made regarding the completeness or accuracy of descriptions or measurements (including square footage measurements and property condition), such should be independently verified, and Compass, Inc., its subsidiaries, affiliates and their agents and associated third parties expressly disclaims any liability in connection therewith. Photos may be virtually staged or digitally enhanced and may not reflect actual property conditions. Offers of compensation are subject to change at the discretion of the seller. No financial or legal advice provided. Equal Housing Opportunity.
This information is not verified for authenticity or accuracy and is not guaranteed and may not reflect all real estate activity in the market. ©2026 The Real Estate Board of New York, Inc., All rights reserved. The source of the displayed data is either the property owner or public record provided by non-governmental third parties. It is believed to be reliable but not guaranteed. This information is provided exclusively for consumers’ personal, non-commercial use. The data relating to real estate for sale on this website comes in part from the IDX Program of OneKey® MLS. Information Copyright 2026, OneKey® MLS. All data is deemed reliable but is not guaranteed accurate by Compass. See Terms of Service for additional restrictions. Compass · Tel: 212-913-9058 · New York, NY Listing information for certain New York City properties provided courtesy of the Real Estate Board of New York’s Residential Listing Service (the "RLS"). The information contained in this listing has not been verified by the RLS and should be verified by the consumer. The listing information provided here is for the consumer’s personal, non-commercial use. Retransmission, redistribution or copying of this listing information is strictly prohibited except in connection with a consumer's consideration of the purchase and/or sale of an individual property. This listing information is not verified for authenticity or accuracy and is not guaranteed and may not reflect all real estate activity in the market. ©2026 The Real Estate Board of New York, Inc., all rights reserved. This information is not guaranteed, should be independently verified and may not reflect all real estate activity in the market. Offers of compensation set forth here are for other RLSParticipants only and may not reflect other agreements between a consumer and their broker.©2026 The Real Estate Board of New York, Inc., All rights reserved.
















1