32 College Place














Description
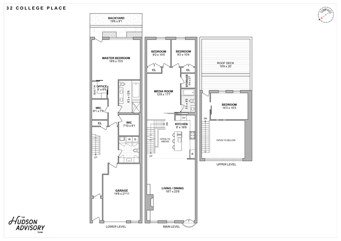
Set at the end of a private cul de sac, 32 College Place is a tastefully renovated home that is truly a peaceful and quiet retreat. As you enter on the ground floor, the large mudroom has plenty of storage and closet space. Off the mud room you'll find an oversized laundry room and half bath. Further down the hallway you enter the master suite.
Spanning...A true unicorn, this private carriage house with garage parking, 4 beds and 2.5 baths on the best block in Brooklyn Heights is now available for rent.
Set at the end of a private cul de sac, 32 College Place is a tastefully renovated home that is truly a peaceful and quiet retreat. As you enter on the ground floor, the large mudroom has plenty of storage and closet space. Off the mud room you'll find an oversized laundry room and half bath. Further down the hallway you enter the master suite.
Spanning the entire width of the residence , the master bedroom is outfitted with a pair of walk in closets, a smart built-in desk area, five fixture en-suite bathroom and overlooks a quaint garden.
Head upstairs to the main floor and you're greeted by a chef's kitchen with a soaring double height ceiling and skylights which provide for an amazing sense of light and air. The open concept dining and living room is adorned with beautiful marble fireplace, huge windows and a Juliet balcony that overlook College Place.
The rear of the house features two additional bedrooms, a full bathroom, and a media room that closes off to provide complete privacy. Up on the 3rd floor is the spacious 4th bedroom and access to the massive room deck with views of bucolic Brooklyn Heights.
Available immediately, pets case by case
Listing Agents
esidman@compass.comP: (917)-497-0519
clayton@compass.comP: (212)-960-3306
stephen@compass.comP: (646)-761-7038
hudsonadvisory@compass.comP: (646)-845-7622
cathleen.katt@compass.comP: (405)-226-6666
Amenities
- Common Roof Deck
- Working Fireplace
- Built-Ins
- Private Entrance
- Hardwood Floors
- High Ceilings
- Washer / Dryer in Unit
- Central AC
Property Details for 32 College Place
| Status | Rented |
|---|---|
| Days on Market | 45 |
| Rental Incentives | No Fee |
| Costs & Fees | - |
| Available Date | 07/15/2020 |
| Lease Term | Lease Length Min/Max: 12-12 mo |
| Furnished | - |
| Total Rooms | 9.0 |
| Compass Type | Single Family |
| MLS Type | - |
| Year Built | 1899 |
| Lot Size | 1,681 SF / 21' x 82' |
| County | Kings County |
Building
32 College Pl
Location
Building Information for 32 College Place
Property History for 32 College Place
| Date | Event & Source | Price | Appreciation |
|---|---|---|---|
| Aug 27, 2020 | Rented Manual | — | |
| Jul 13, 2020 | Listed (Active) Manual | $16,500 | — |
| Date | Event & Source | Price |
|---|---|---|
| 08/27/2020 | Rented Manual | — |
| 07/13/2020 | Listed (Active) Manual | $16,500 |
For completeness, Compass often displays two records for one sale: the MLS record and the public record.
Schools near 32 College Place
Rating | School | Type | Grades | Distance |
|---|---|---|---|---|
| Public - | K to 5 | |||
| Public - | 6 to 12 | |||
| Public - | 9 to 12 | |||
| Public - | 6 to 8 |
Rating | School | Distance |
|---|---|---|
Emily Warren Roebling School (The) PublicK to 5 | ||
Urban Assembly School For Law And Justice Public9 to 12 | ||
Dock Street School for STEM Studies Public6 to 8 |
School ratings and boundaries are provided by GreatSchools.org and Pitney Bowes. This information should only be used as a reference. Proximity or boundaries shown here are not a guarantee of enrollment. Please reach out to schools directly to verify all information and enrollment eligibility.
Neighborhood Map and Transit
No guarantee, warranty or representation of any kind is made regarding the completeness or accuracy of descriptions or measurements (including square footage measurements and property condition), such should be independently verified, and Compass, Inc., its subsidiaries, affiliates and their agents and associated third parties expressly disclaims any liability in connection therewith. Photos may be virtually staged or digitally enhanced and may not reflect actual property conditions. Offers of compensation are subject to change at the discretion of the owner. No financial or legal advice provided. Equal Housing Opportunity.
This information is not verified for authenticity or accuracy and is not guaranteed and may not reflect all real estate activity in the market. ©2026 The Real Estate Board of New York, Inc., All rights reserved. The source of the displayed data is either the property owner or public record provided by non-governmental third parties. It is believed to be reliable but not guaranteed. This information is provided exclusively for consumers’ personal, non-commercial use. The data relating to real estate for sale on this website comes in part from the IDX Program of OneKey® MLS. Information Copyright 2026, OneKey® MLS. All data is deemed reliable but is not guaranteed accurate by Compass. See Terms of Service for additional restrictions. Compass · Tel: 212-913-9058 · New York, NY Listing information for certain New York City properties provided courtesy of the Real Estate Board of New York’s Residential Listing Service (the "RLS"). The information contained in this listing has not been verified by the RLS and should be verified by the consumer. The listing information provided here is for the consumer’s personal, non-commercial use. Retransmission, redistribution or copying of this listing information is strictly prohibited except in connection with a consumer's consideration of the purchase and/or sale of an individual property. This listing information is not verified for authenticity or accuracy and is not guaranteed and may not reflect all real estate activity in the market. ©2026 The Real Estate Board of New York, Inc., all rights reserved. This information is not guaranteed, should be independently verified and may not reflect all real estate activity in the market. Offers of compensation set forth here are for other RLSParticipants only and may not reflect other agreements between a consumer and their broker.©2026 The Real Estate Board of New York, Inc., All rights reserved.


















