306 State Street














Description
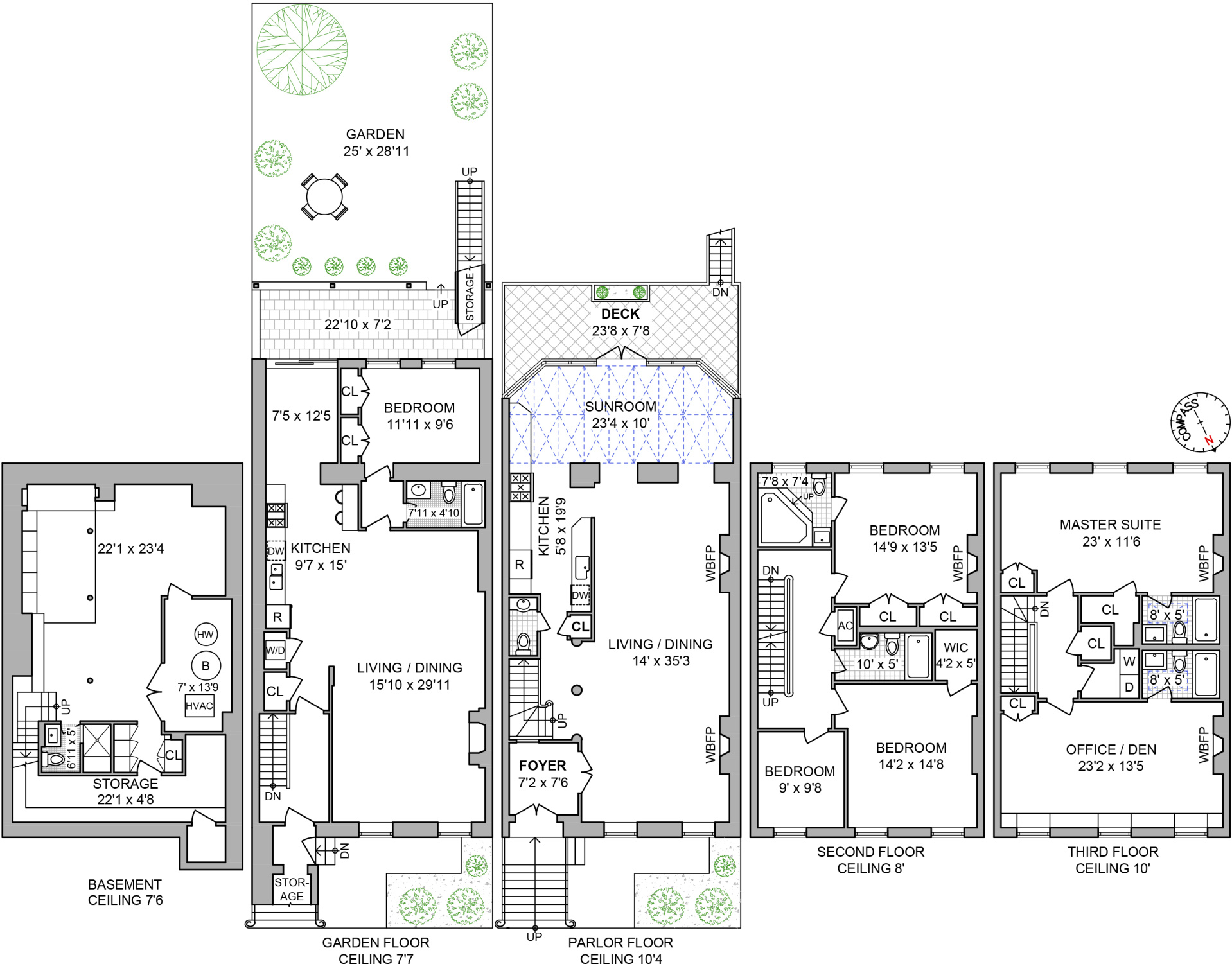
A unique, extra-large entry foyer with custom cabinetry for coats, shoes, and backpacks, opens to a lofty, open plan Parlor Level showcasing high ceilings with crown moldings, 2 wood-burning fireplaces, a half bath and solid wood floors throughout all graced by the glassed atrium extending over the entire rear south façade. Two custom French doors spill onto the spacious outdoor deck, creating the perfect spot for indoor/outdoor entertaining every season of the year. The extensive galley kitchen has black granite counters, abundant custom Cherry cabinets, Sub Zero, and Viking appliances.
The second floor has 3 bedrooms: the largest has an ensuite bath with a pool size tub, ample closets, and its own gas fireplace. The 2 additional bedrooms share their own full bath. Up one more flight, the 2 third-floor bedrooms span the entire width of the house and have skylighted ensuite baths and gas fireplaces. There is tremendous closet space and a laundry room on this level, and the front bedroom/den has handcrafted built-in bookcases and cozy upholstered window seats looking out over the trees of a quintessential Brownstone Brooklyn block.
The high income-producing lower duplex is equally as lofty and meticulous. The open plan living area is graced with a large wood burning fireplace, laundry, two full baths, a galley kitchen, and dining area with floor-to-ceiling sliding doors opening onto its own private outdoor space. The basement is beautifully finished and has a wonderful custom built-in bed, a den, shelving, storage, and a delightful mint pebbled blue and green tiled full bath.
Located on one of the most sought after tree-lined streets in Boerum Hill, this amazing home is a few blocks to 8 Subway lines, schools, the Barclay Center, Brooklyn Fare, Trader Joes, Whole Foods and the delicious restaurants and shops on Smith, Court and Atlantic Avenue. Don't miss this opportunity to make 306 State Street your perfect home.
Listing Agents
kim.soule@compass.comP: (646)-209-1675
jessica.henson@compass.comP: (917)-617-4371
Amenities
- Primary Ensuite
- Open Views
- Deck
- Working Fireplace
- Crown Mouldings
- Decorative Mouldings
- Built-Ins
- Hardwood Floors
Property Details for 306 State Street
| Status | Sold |
|---|---|
| Days on Market | 196 |
| Taxes | $365 / month |
| Maintenance | - |
| Min. Down Pymt | 20% |
| Total Rooms | 12.0 |
| Compass Type | Townhouse |
| MLS Type | House/Building |
| Year Built | 1899 |
| Lot Size | 2,250 SF / 25' x 90' |
| County | Kings County |
| Buyer's Agent Compensation | 2.5% |
Building
306 State Street House
Location
Building Information for 306 State Street
Payment Calculator
$23,759 per month
30 year fixed, 6.15% Interest
$23,394
$365
$0
Property History for 306 State Street
| Date | Event & Source | Price | Appreciation |
|---|---|---|---|
| Oct 22, 2019 | Sold Manual | $4,995,000 | — |
| Oct 22, 2019 | Sold (Public Record) ACRIS | $4,800,000 | — |
| Sep 16, 2019 | Contract Signed Manual | — | |
| Jul 29, 2019 | Listed (Active) Manual | $4,995,000 | — |
| Jul 26, 2019 | Temporarily Off Market Manual | — | |
| Mar 1, 2019 | Listed (Active) Manual | $5,300,000 | — |
| Date | Event & Source | Price |
|---|---|---|
| 10/22/2019 | Sold Manual | $4,995,000 |
| 10/22/2019 | Sold (Public Record) ACRIS | $4,800,000 |
| 09/16/2019 | Contract Signed Manual | — |
| 07/29/2019 | Listed (Active) Manual | $4,995,000 |
| 07/26/2019 | Temporarily Off Market Manual | — |
| 03/01/2019 | Listed (Active) Manual | $5,300,000 |
For completeness, Compass often displays two records for one sale: the MLS record and the public record.
Public Records for 306 State Street
Schools near 306 State Street
Rating | School | Type | Grades | Distance |
|---|---|---|---|---|
| Public - | PK to 5 | |||
| Public - | 6 to 12 | |||
| Public - | 9 to 12 | |||
| Public - | 9 to 12 |
Rating | School | Distance |
|---|---|---|
Zipporiah Mills PublicPK to 5 | ||
School For International Studies Public6 to 12 | ||
Brooklyn Frontiers High School Public9 to 12 | ||
Cobble Hill School of American Studies Public9 to 12 |
School ratings and boundaries are provided by GreatSchools.org and Pitney Bowes. This information should only be used as a reference. Proximity or boundaries shown here are not a guarantee of enrollment. Please reach out to schools directly to verify all information and enrollment eligibility.
Neighborhood Map and Transit
Similar Homes
Similar Sold Homes
Explore Nearby Homes
- Columbia Street Waterfront Homes for Sale
- Downtown Brooklyn Homes for Sale
- Cobble Hill Homes for Sale
- Brooklyn Heights Homes for Sale
- Vinegar Hill Homes for Sale
- DUMBO Homes for Sale
- Navy Yard Homes for Sale
- Boerum Hill Homes for Sale
- Fort Greene Homes for Sale
- Northwestern Brooklyn Homes for Sale
- South Brooklyn Homes for Sale
- Carroll Gardens Homes for Sale
- Gowanus Homes for Sale
- Clinton Hill Homes for Sale
- Park Slope Homes for Sale
- New York Homes for Sale
- Brooklyn Homes for Sale
- Manhattan Homes for Sale
- Jersey City Homes for Sale
- Hoboken Homes for Sale
- Queens Homes for Sale
- Bayonne Homes for Sale
- Weehawken Homes for Sale
- Union City Homes for Sale
- North Bergen Homes for Sale
- Staten Island Homes for Sale
- West New York Homes for Sale
- Kearny Homes for Sale
- Secaucus Homes for Sale
- Guttenberg Homes for Sale
- 11249 Homes for Sale
- 11217 Homes for Sale
- 11205 Homes for Sale
- 11231 Homes for Sale
- 11242 Homes for Sale
- 11238 Homes for Sale
- 11243 Homes for Sale
- 10002 Homes for Sale
- 10038 Homes for Sale
- 10043 Homes for Sale
- 11215 Homes for Sale
- 10005 Homes for Sale
- 10044 Homes for Sale
- 10004 Homes for Sale
- 10041 Homes for Sale
No guarantee, warranty or representation of any kind is made regarding the completeness or accuracy of descriptions or measurements (including square footage measurements and property condition), such should be independently verified, and Compass, Inc., its subsidiaries, affiliates and their agents and associated third parties expressly disclaims any liability in connection therewith. Photos may be virtually staged or digitally enhanced and may not reflect actual property conditions. Offers of compensation are subject to change at the discretion of the seller. No financial or legal advice provided. Equal Housing Opportunity.
This information is not verified for authenticity or accuracy and is not guaranteed and may not reflect all real estate activity in the market. ©2026 The Real Estate Board of New York, Inc., All rights reserved. The source of the displayed data is either the property owner or public record provided by non-governmental third parties. It is believed to be reliable but not guaranteed. This information is provided exclusively for consumers’ personal, non-commercial use. The data relating to real estate for sale on this website comes in part from the IDX Program of OneKey® MLS. Information Copyright 2026, OneKey® MLS. All data is deemed reliable but is not guaranteed accurate by Compass. See Terms of Service for additional restrictions. Compass · Tel: 212-913-9058 · New York, NY Listing information for certain New York City properties provided courtesy of the Real Estate Board of New York’s Residential Listing Service (the "RLS"). The information contained in this listing has not been verified by the RLS and should be verified by the consumer. The listing information provided here is for the consumer’s personal, non-commercial use. Retransmission, redistribution or copying of this listing information is strictly prohibited except in connection with a consumer's consideration of the purchase and/or sale of an individual property. This listing information is not verified for authenticity or accuracy and is not guaranteed and may not reflect all real estate activity in the market. ©2026 The Real Estate Board of New York, Inc., all rights reserved. This information is not guaranteed, should be independently verified and may not reflect all real estate activity in the market. Offers of compensation set forth here are for other RLSParticipants only and may not reflect other agreements between a consumer and their broker.©2026 The Real Estate Board of New York, Inc., All rights reserved.
















1