294 Park Place






















Description
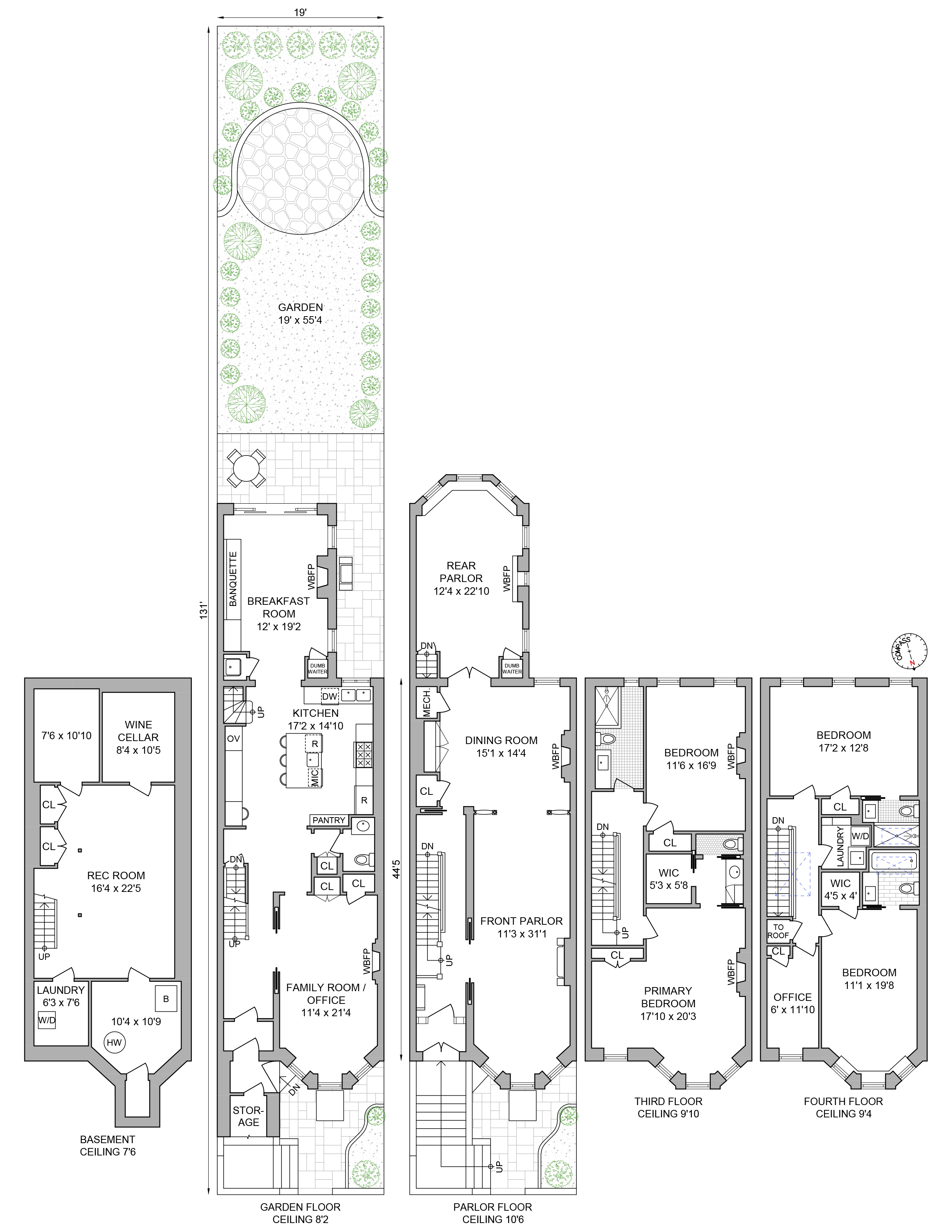
Brimming with prewar details,...On a gorgeous, leafy street in prime Prospect Heights, 294 Park Pl stands proud. This meticulously renovated and maintained single family townhouse is on the market for the first time in over 30 years, and is move-in ready for its next owners. Every inch of historic detail has been preserved and restored yet enveloped by a 21st century structure. The 2008-9 renovation replaced every wire, pipe and mechanical system in the house and added 5-zone central air conditioning.
Brimming with prewar details, the house was actually gut renovated in 2008-2009 and painstakingly pieced back together by local artisans to provide modern comforts without sacrificing the home’s historic beauty. Original parquet floors were refinished and supplemented with new floors where needed, but you could never tell where new materials were introduced. All woodwork, from the unique stacked wainscoting to the filigreed transoms, were fully refinished. All stained glass windows and doors were fully restored. Plaster walls and decorative detail are pristine. The dumbwaiter from the kitchen to the formal dining room was also restored, The six fireplaces have all been relined and currently operate as gas. Insulated mahogany windows were installed throughout. Even the stairs were reinforced with cables to increase stability and eliminate creaks – a rarity in these historic homes!
The original two-floor 65ft extension brings this 5 bedroom, 3 and two half bathrooms home to an impressive 4,200 sqft, not including the fully finished basement containing a wine cellar, rec room, secondary laundry room, and a storage room.
The garden floor is set up as a gardener and cook’s dream. The extra deep 131ft lot means that even with the extension, the garden at 294 Park Pl offers ample space for entertaining and landscaping, kept vibrant via the front and rear-yard watering systems. There is an industrial grade built-in Viking gas grill in the side garden, with rotisserie and infrared sear zones. The renovated chef’s kitchen is generously sized and appointed with high end appliances: Viking-Pro range, TurboChef double wall oven including a speed-cook oven, Sub-Zero refrigerator, and a water filtration system with supplemental reverse osmosis (no more bottled water required!) Between the kitchen and garden is a charming breakfast room with a built-in banquette. The sliding glass doors and windows to the garden were all installed with ultra-hurricane glass, eliminating the need for storm shutters or security bars.
Above the garden level is the parlor floor, with front, center and rear parlors replete in stunning prewar detail. The five bedrooms are all on the top two floors; four of the bedrooms are king-sized, including a primary suite with a walk-in closet and ½ bath. On the top floor are two oversized bedrooms with their own ensuite full bathrooms, a small bedroom/office, and a laundry room. All of the spa-like bathrooms throughout the home have been tastefully updated with radiant heat floors and high end fixtures.
294 Park Place is conveniently located in the heart of vibrant Prospect Heights, close to Vanderbilt Ave’s premier shops and restaurants. Prospect Park, the Brooklyn Museum, Brooklyn Botanic Gardens, and the Brooklyn Public Library are all at your fingertips. The 2/3/B/Q subway lines are readily accessible, including the newly updated Eastern Parkway-Brooklyn Museum stop with elevators.
Listing Agents
ryanandryan@compass.comP: (347)-276-5165
libby.ryan@compass.comP: (917)-617-4227
maria.ryan@compass.comP: (347)-276-5165
joe.ryan@compass.comP: (917)-453-2676
Amenities
- Top Floor
- Private Yard
- Barbecue Area
- Working Fireplace
- Fireplace
- Crown Mouldings
- Decorative Mouldings
- Sound System
Property Details for 294 Park Place
| Status | Sold |
|---|---|
| Days on Market | 17 |
| Taxes | $928 / month |
| Maintenance | - |
| Min. Down Pymt | - |
| Total Rooms | 15.0 |
| Compass Type | Townhouse |
| MLS Type | House/Building |
| Year Built | 1899 |
| Lot Size | 2,489 SF / 19' x 131' |
| County | Kings County |
| Buyer's Agent Compensation | 2.5% |
Building
294 Park Pl
Location
Building Information for 294 Park Place
Payment Calculator
$26,564 per month
30 year fixed, 6.15% Interest
$25,636
$928
$0
Property History for 294 Park Place
| Date | Event & Source | Price |
|---|---|---|
| 11/22/2022 | Sold Manual | $5,260,000 |
| 11/22/2022 | $5,260,000 | |
| 09/23/2022 | Contract Signed Manual | — |
| 09/05/2022 | Listed (Active) Manual | $4,850,000 |
For completeness, Compass often displays two records for one sale: the MLS record and the public record.
Public Records for 294 Park Place
Schools near 294 Park Place
Rating | School | Type | Grades | Distance |
|---|---|---|---|---|
| Public - | PK to 5 | |||
| Public - | 6 to 8 | |||
| Public - | 9 to 12 | |||
| Public - | 6 to 8 |
Rating | School | Distance |
|---|---|---|
PS 9 Sarah Smith Garnet School (The) PublicPK to 5 | ||
Ms 266 Park Place Community Middle School Public6 to 8 | ||
GOTHAM PROFESSIONAL ARTS ACADEMY Public9 to 12 | ||
Urban Assembly Unison School (The) Public6 to 8 |
School ratings and boundaries are provided by GreatSchools.org and Pitney Bowes. This information should only be used as a reference. Proximity or boundaries shown here are not a guarantee of enrollment. Please reach out to schools directly to verify all information and enrollment eligibility.
Neighborhood Map and Transit
Similar Homes
Similar Sold Homes
Explore Nearby Homes
- Bedford-Stuyvesant Homes for Sale
- Central Brooklyn Homes for Sale
- Clinton Hill Homes for Sale
- Crown Heights Homes for Sale
- Fort Greene Homes for Sale
- Northern Brooklyn Homes for Sale
- North Slope Homes for Sale
- Northwestern Brooklyn Homes for Sale
- Park Slope Homes for Sale
- Prospect Heights Homes for Sale
- Prospect Lefferts Gardens Homes for Sale
- South Brooklyn Homes for Sale
- Central Slope Homes for Sale
- Boerum Hill Homes for Sale
- Downtown Brooklyn Homes for Sale
- Brooklyn Homes for Sale
- New York Homes for Sale
- Manhattan Homes for Sale
- Queens Homes for Sale
- Jersey City Homes for Sale
- Hoboken Homes for Sale
- Bayonne Homes for Sale
- Weehawken Homes for Sale
- Union City Homes for Sale
- Staten Island Homes for Sale
- West New York Homes for Sale
- North Bergen Homes for Sale
- Kearny Homes for Sale
- Guttenberg Homes for Sale
- Secaucus Homes for Sale
- 11225 Homes for Sale
- 11217 Homes for Sale
- 11216 Homes for Sale
- 11205 Homes for Sale
- 11215 Homes for Sale
- 11201 Homes for Sale
- 11243 Homes for Sale
- 11206 Homes for Sale
- 11213 Homes for Sale
- 11226 Homes for Sale
- 11218 Homes for Sale
- 11249 Homes for Sale
- 11221 Homes for Sale
- 11211 Homes for Sale
- 11203 Homes for Sale
No guarantee, warranty or representation of any kind is made regarding the completeness or accuracy of descriptions or measurements (including square footage measurements and property condition), such should be independently verified, and Compass, Inc., its subsidiaries, affiliates and their agents and associated third parties expressly disclaims any liability in connection therewith. Photos may be virtually staged or digitally enhanced and may not reflect actual property conditions. Offers of compensation are subject to change at the discretion of the seller. No financial or legal advice provided. Equal Housing Opportunity.
This information is not verified for authenticity or accuracy and is not guaranteed and may not reflect all real estate activity in the market. ©2026 The Real Estate Board of New York, Inc., All rights reserved. The source of the displayed data is either the property owner or public record provided by non-governmental third parties. It is believed to be reliable but not guaranteed. This information is provided exclusively for consumers’ personal, non-commercial use. The data relating to real estate for sale on this website comes in part from the IDX Program of OneKey® MLS. Information Copyright 2026, OneKey® MLS. All data is deemed reliable but is not guaranteed accurate by Compass. See Terms of Service for additional restrictions. Compass · Tel: 212-913-9058 · New York, NY Listing information for certain New York City properties provided courtesy of the Real Estate Board of New York’s Residential Listing Service (the "RLS"). The information contained in this listing has not been verified by the RLS and should be verified by the consumer. The listing information provided here is for the consumer’s personal, non-commercial use. Retransmission, redistribution or copying of this listing information is strictly prohibited except in connection with a consumer's consideration of the purchase and/or sale of an individual property. This listing information is not verified for authenticity or accuracy and is not guaranteed and may not reflect all real estate activity in the market. ©2026 The Real Estate Board of New York, Inc., all rights reserved. This information is not guaranteed, should be independently verified and may not reflect all real estate activity in the market. Offers of compensation set forth here are for other RLSParticipants only and may not reflect other agreements between a consumer and their broker.©2026 The Real Estate Board of New York, Inc., All rights reserved.


























1