290 Jefferson Avenue























Description
Reserved with original details abound, rich parquet floors, exposed wood beams, pocket shutters and doors, pier mirror, and 6 classic decorative fireplaces and most importantly, wired for WIFI throughout.
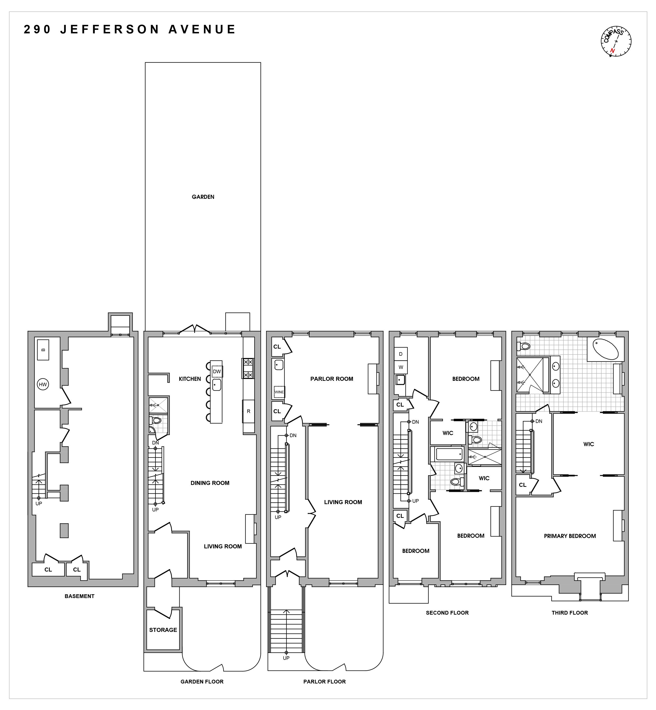
The garden...Fully renovated in 2018, historic charm and modern luxury intermingle in this architecturally-distinctive townhome. This meticulously renovated 4-story gem features exquisite interiors, high airy ceilings, a full basement and a gorgeous private patio garden for the ultimate outdoor oasis.
Reserved with original details abound, rich parquet floors, exposed wood beams, pocket shutters and doors, pier mirror, and 6 classic decorative fireplaces and most importantly, wired for WIFI throughout.
The garden floor, perfect for indoor-outdoor living/entertaining with an open layout and seamless flow from front to back. Host guests with ease in the airy living room connecting to an open dining room and stylish contemporary chef’s kitchen. Top-of-the-line cabinetry, sleek quartz countertops, premium stainless steel appliances, custom built-in storage, an island with seating and quaint breakfast nook enhance the culinary experience.
A wall of glass brightens the ambience with tall glass doors leading out to the large backyard oasis where you can dine alfresco, relax by the fire pit, sip cocktails, and recreate your private yard. A convenient full bath sits nearby with hydronic heated flooring throughout entire garden floor.
Enter the spacious Parlor level with a grand living room and adjoining home office/room. Dual closets, oversized windows and wet bar with wine cooler for serving guests add to the thoughtful layout.
Peaceful sleeping quarters reside on the upper levels, with a bedroom suite, additional bedrooms, walk-in closets, a full hall bath and laundry room on story two. The third floor is reserved entirely for the primary bedroom. Presenting an enormous walk-in closet/dressing room, and sky-lit marble spa bath; complete with radiant heat, a double vanity and a thoughtfully added additional under the sink refrigerator for storing snacks, waters and wine! Relax in your massive oval soaking tub accompanied by a 2-person glass-enclosed STEAM shower with multi body sprays.
Truly a rare offering, with generous closets throughout and a finished basement for multiple uses and storage. Close to the AC trains, restaurants, cafes, bars, and more.
Listing Agents
esidman@compass.comP: (917)-497-0519
hudsonadvisory@compass.comP: (646)-845-7622
Amenities
- Primary Ensuite
- Private Yard
- Decorative Fireplace
- Crown Mouldings
- Decorative Mouldings
- Wet Bar
- Private Entrance
- High Ceilings
Property Details for 290 Jefferson Avenue
| Status | Rented |
|---|---|
| Days on Market | 82 |
| Rental Incentives | No Fee |
| Costs & Fees | - |
| Available Date | 08/04/2021 |
| Lease Term | Lease Length Min/Max: 12-24 mo |
| Furnished | - |
| Total Rooms | 7.0 |
| Compass Type | Single Family |
| MLS Type | - |
| Year Built | 1899 |
| Lot Size | 2,000 SF / 20' x 100' |
| County | Kings County |
Building
290 Jefferson Ave
Location
Building Information for 290 Jefferson Avenue
Property History for 290 Jefferson Avenue
| Date | Event & Source | Price | Appreciation |
|---|---|---|---|
| Sep 18, 2025 | Rented Manual | — | |
| Sep 18, 2025 | Application Pending Manual | — | |
| Sep 4, 2025 | Listed (Active) Manual | $10,900 | — |
| Oct 26, 2021 | Rented Manual | — | |
| Aug 24, 2021 | Price Change Manual | $10,495 | — |
| Aug 10, 2021 | Price Change Manual | $10,500 | — |
| Aug 4, 2021 | Listed (Active) Manual | $11,495 | — |
| Date | Event & Source | Price |
|---|---|---|
| 09/18/2025 | Rented Manual | — |
| 09/18/2025 | Application Pending Manual | — |
| 09/04/2025 | Listed (Active) Manual | $10,900 |
| 10/26/2021 | Rented Manual | — |
| 08/24/2021 | Price Change Manual | $10,495 |
| 08/10/2021 | Price Change Manual | $10,500 |
| 08/04/2021 | Listed (Active) Manual | $11,495 |
For completeness, Compass often displays two records for one sale: the MLS record and the public record.
Schools near 290 Jefferson Avenue
Rating | School | Type | Grades | Distance |
|---|---|---|---|---|
| Public - | PK to 8 | |||
| Public - | 9 to 12 | |||
| Public - | 6 to 8 | |||
| Public - | 9 to 12 |
Rating | School | Distance |
|---|---|---|
Urban Assembly Academy Of Arts And Letters PublicPK to 8 | ||
GOTHAM PROFESSIONAL ARTS ACADEMY Public9 to 12 | ||
BRIDGES: A SCHOOL FOR EXPLOR-EQUITY Public6 to 8 | ||
School ratings and boundaries are provided by GreatSchools.org and Pitney Bowes. This information should only be used as a reference. Proximity or boundaries shown here are not a guarantee of enrollment. Please reach out to schools directly to verify all information and enrollment eligibility.
Neighborhood Map and Transit
No guarantee, warranty or representation of any kind is made regarding the completeness or accuracy of descriptions or measurements (including square footage measurements and property condition), such should be independently verified, and Compass, Inc., its subsidiaries, affiliates and their agents and associated third parties expressly disclaims any liability in connection therewith. Photos may be virtually staged or digitally enhanced and may not reflect actual property conditions. Offers of compensation are subject to change at the discretion of the owner. No financial or legal advice provided. Equal Housing Opportunity.
This information is not verified for authenticity or accuracy and is not guaranteed and may not reflect all real estate activity in the market. ©2026 The Real Estate Board of New York, Inc., All rights reserved. The source of the displayed data is either the property owner or public record provided by non-governmental third parties. It is believed to be reliable but not guaranteed. This information is provided exclusively for consumers’ personal, non-commercial use. The data relating to real estate for sale on this website comes in part from the IDX Program of OneKey® MLS. Information Copyright 2026, OneKey® MLS. All data is deemed reliable but is not guaranteed accurate by Compass. See Terms of Service for additional restrictions. Compass · Tel: 212-913-9058 · New York, NY Listing information for certain New York City properties provided courtesy of the Real Estate Board of New York’s Residential Listing Service (the "RLS"). The information contained in this listing has not been verified by the RLS and should be verified by the consumer. The listing information provided here is for the consumer’s personal, non-commercial use. Retransmission, redistribution or copying of this listing information is strictly prohibited except in connection with a consumer's consideration of the purchase and/or sale of an individual property. This listing information is not verified for authenticity or accuracy and is not guaranteed and may not reflect all real estate activity in the market. ©2026 The Real Estate Board of New York, Inc., all rights reserved. This information is not guaranteed, should be independently verified and may not reflect all real estate activity in the market. Offers of compensation set forth here are for other RLSParticipants only and may not reflect other agreements between a consumer and their broker.©2026 The Real Estate Board of New York, Inc., All rights reserved.
























