288 Carroll Street

















Description
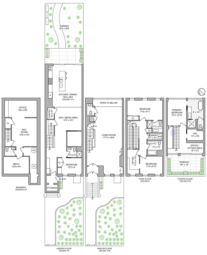
On the third floor are two bedrooms, both with beautifully appointed ensuite bathrooms, a laundry area and a home office that can double as a walk-in closet. Continue up the custom designed floating staircase to the primary bedroom suite level where a wall of sliding doors leads to a lovely private terrace, complete with irrigated planters and Japanese greenery providing ever-evolving color and blooms throughout the year. Just off the terrace is an office/reading area and large walk-in closet. The primary bedroom faces south, a peaceful room with designer light fixtures and clever glass partition embedded in the wall to provide views of the front terrace’s verdant garden while lying in the comfort of your bed. The ensuite spa-like bath is graced with a deep soaking tub, Massaud Axor waterfall/shower fixtures, shower skylight, Porcelanosa countertop and Toto washlet toilet.
The garden level is the heart of the home with the kitchen open to the living/dining areas and hidden pocket doors creating a family/media room. The kitchen has a marble waterfall countertop island, custom eucalyptus cabinetry, Wolf, Sub-Zero and Miele appliances. There is a kitchen pantry room, full bath, guest bedroom and full entryway/mudroom just off the gated, under-the-stoop entry. The backyard has porcelain pavers and outdoor speakers for the grilling and entertaining. In the basement is a rec room, office area and lots of storage. This home has luxurious radiant heat floors throughout, 8 zone AC and the Control4 programmable digital home system, controlling the home's mechanical window shades, lighting and sound system for seamless living.
288 Carroll Street is a rare gem nestled in the heart of Brownstone Brooklyn with its laid-back living and easy-going charm. Located half a block to Smith Street and Court Street with access to Frankie’s, Court St. Grocers, 5 craft breweries, Books are Magic, subways, parks, great schools, plus all of the shops, boutiques and restaurants that make Carroll Gardens so sought after. Monthly rent is $19,500. No smokers or pets. Available June 15.
Listing Agents
jessica.henson@compass.comP: (917)-617-4371
lucy.perry@compass.comP: (917)-880-6840
Amenities
- Primary Ensuite
- Private Terrace
- Private Yard
- Private Roof Deck
- Common Roof Deck
- Decorative Fireplace
- Crown Mouldings
- Decorative Mouldings
Property Details for 288 Carroll Street
| Status | Rented |
|---|---|
| Days on Market | 197 |
| Rental Incentives | - |
| Available Date | 09/16/2023 |
| Lease Term | Lease Length Min/Max: 12-24 mo |
| Furnished | Unfurnished |
| Total Rooms | 13.0 |
| Compass Type | Townhouse |
| MLS Type | Residential Lease |
| Year Built | 1899 |
| County | Kings County |
Building
288 Carroll St
Location
Building Information for 288 Carroll Street
Property History for 288 Carroll Street
| Date | Event & Source | Price | Appreciation |
|---|---|---|---|
| Dec 26, 2023 | Rented Manual | — | |
| Dec 26, 2023 | Application Pending Manual | — | |
| Oct 30, 2023 | Listed (Active) Manual | $16,000 | — |
| Sep 29, 2023 | Temporarily Off Market Manual | — | |
| May 11, 2023 | Listed (Active) Manual | $19,500 | — |
| Mar 25, 2021 | Rented Manual | — | |
| Feb 22, 2021 | Listed (Active) Manual | $16,000 | — |
| Date | Event & Source | Price |
|---|---|---|
| 12/26/2023 | Rented Manual | — |
| 12/26/2023 | Application Pending Manual | — |
| 10/30/2023 | Listed (Active) Manual | $16,000 |
| 09/29/2023 | Temporarily Off Market Manual | — |
| 05/11/2023 | Listed (Active) Manual | $19,500 |
| 03/25/2021 | Rented Manual | — |
| 02/22/2021 | Listed (Active) Manual | $16,000 |
For completeness, Compass often displays two records for one sale: the MLS record and the public record.
Schools near 288 Carroll Street
Rating | School | Type | Grades | Distance |
|---|---|---|---|---|
| Public - | PK to 5 | |||
| Public - | 6 to 12 | |||
| Public - | 9 to 12 | |||
| Public - | 9 to 12 |
Rating | School | Distance |
|---|---|---|
P.S. 58 The Carroll PublicPK to 5 | ||
School For International Studies Public6 to 12 | ||
Digital Arts and Cinema Technology High School Public9 to 12 | ||
Cobble Hill School of American Studies Public9 to 12 |
School ratings and boundaries are provided by GreatSchools.org and Pitney Bowes. This information should only be used as a reference. Proximity or boundaries shown here are not a guarantee of enrollment. Please reach out to schools directly to verify all information and enrollment eligibility.
Neighborhood Map and Transit
No guarantee, warranty or representation of any kind is made regarding the completeness or accuracy of descriptions or measurements (including square footage measurements and property condition), such should be independently verified, and Compass, Inc., its subsidiaries, affiliates and their agents and associated third parties expressly disclaims any liability in connection therewith. Photos may be virtually staged or digitally enhanced and may not reflect actual property conditions. Offers of compensation are subject to change at the discretion of the owner. No financial or legal advice provided. Equal Housing Opportunity.
This information is not verified for authenticity or accuracy and is not guaranteed and may not reflect all real estate activity in the market. ©2026 The Real Estate Board of New York, Inc., All rights reserved. The source of the displayed data is either the property owner or public record provided by non-governmental third parties. It is believed to be reliable but not guaranteed. This information is provided exclusively for consumers’ personal, non-commercial use. The data relating to real estate for sale on this website comes in part from the IDX Program of OneKey® MLS. Information Copyright 2026, OneKey® MLS. All data is deemed reliable but is not guaranteed accurate by Compass. See Terms of Service for additional restrictions. Compass · Tel: 212-913-9058 · New York, NY Listing information for certain New York City properties provided courtesy of the Real Estate Board of New York’s Residential Listing Service (the "RLS"). The information contained in this listing has not been verified by the RLS and should be verified by the consumer. The listing information provided here is for the consumer’s personal, non-commercial use. Retransmission, redistribution or copying of this listing information is strictly prohibited except in connection with a consumer's consideration of the purchase and/or sale of an individual property. This listing information is not verified for authenticity or accuracy and is not guaranteed and may not reflect all real estate activity in the market. ©2026 The Real Estate Board of New York, Inc., all rights reserved. This information is not guaranteed, should be independently verified and may not reflect all real estate activity in the market. Offers of compensation set forth here are for other RLSParticipants only and may not reflect other agreements between a consumer and their broker.©2026 The Real Estate Board of New York, Inc., All rights reserved.


















