283 Park Place













Description
Not often does a substantial south facing townhouse come up on Park Place that is ready to make it your own. This limestone faced house sits among some of the finest townhouses in Prospect Heights. Lived in by one family for many years, many of the original details remain intact and the entire house is and feels rock solid. Even the mechanicals have are in great shape. The forced hot air system is ready to add AC!
283 Park Place measures 17' x 40'...Stately. Classic. Impressive. and now- IN CONTRACT
Not often does a substantial south facing townhouse come up on Park Place that is ready to make it your own. This limestone faced house sits among some of the finest townhouses in Prospect Heights. Lived in by one family for many years, many of the original details remain intact and the entire house is and feels rock solid. Even the mechanicals have are in great shape. The forced hot air system is ready to add AC!
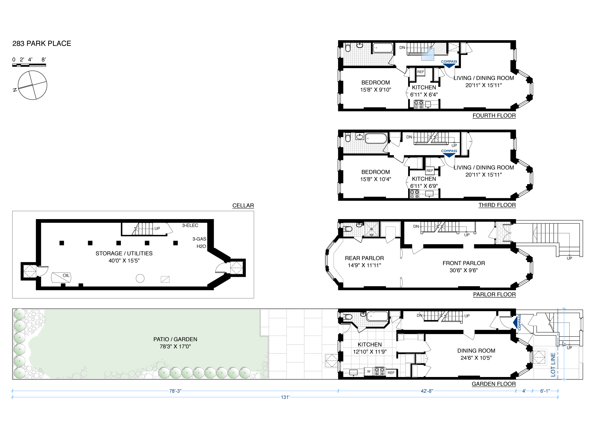
283 Park Place measures 17' x 40' plus 4' bay extensions on the parlor and ground floor and with a 131' extra deep lot. There is plenty of FAR (used 1.46, 1203 sq ft available) to increase the overall footprint of the home.
Presently as the floor plan shows, the house was used as a 3 unit home shared with members of the same family. Now, this house can be rethought as a triplex over a ground floor rental. Or, as in investment property commanding top Brooklyn income with some minor cosmetic upgrades. The backyard is a blank slate for all you gardeners anxious to begin your new outdoor space. (Please note that the photos are just representations of the unlimited possibilities and reconfigurations that this wonderful townhouse offers>)
Park Place is designated as a landmarked block with historical designation. There is a reason- it's gorgeous. Conveniently located near the Grand Army Plaza, Prospect Park, Botanical Gardens, Brooklyn Museum, Barclay Center, Atlantic Terminal and so much more. Prospect Heights if you don't already know is considered a most desirable neighborhood as it boasts great transportation options, convenient to Park Slope, Fort Greene, Clinton Hill and Crown Heights. Delicious dining awaits on Vanderbilt Ave. World famous ice cream parlors dot the neighborhood.
Between the house and the 'hood, what more can you want from living in Brooklyn?
Listing Agent
peter.gordenstein@compass.comP: (917)-710-2609
Amenities
- Crown Mouldings
- Decorative Mouldings
- Built-Ins
- Hardwood Floors
- Parquet Floors
- High Ceilings
- Bay Windows
- Walk Up
Property Details for 283 Park Place
| Status | Sold |
|---|---|
| Days on Market | 32 |
| Taxes | $654 / month |
| Maintenance | - |
| Min. Down Pymt | - |
| Total Rooms | 8.0 |
| Compass Type | Townhouse |
| MLS Type | House/Building |
| Year Built | 1910 |
| Lot Size | 2,227 SF / 17' x 131' |
| County | Kings County |
| Buyer's Agent Compensation | 2.5% |
Building
283 Park Pl
Location
Building Information for 283 Park Place
Payment Calculator
$16,491 per month
30 year fixed, 6.15% Interest
$15,837
$654
$0
Property History for 283 Park Place
| Date | Event & Source | Price | Appreciation |
|---|---|---|---|
| Mar 24, 2022 | Sold Manual | $3,249,500 | — |
| Mar 24, 2022 | Sold (Public Record) ACRIS | $3,249,500 | +9689.1% / yr |
| Sep 11, 2021 | Contract Signed Manual | — | |
| Aug 10, 2021 | Listed (Active) Manual | $3,249,500 | — |
| Jun 18, 2021 | Sold (Public Record) ACRIS | $97,980 | — |
| Date | Event & Source | Price |
|---|---|---|
| 03/24/2022 | Sold Manual | $3,249,500 |
| 03/24/2022 | Sold (Public Record) ACRIS | $3,249,500 +9689.1% / yr |
| 09/11/2021 | Contract Signed Manual | — |
| 08/10/2021 | Listed (Active) Manual | $3,249,500 |
| 06/18/2021 | Sold (Public Record) ACRIS | $97,980 |
For completeness, Compass often displays two records for one sale: the MLS record and the public record.
Public Records for 283 Park Place
Schools near 283 Park Place
Rating | School | Type | Grades | Distance |
|---|---|---|---|---|
| Public - | PK to 5 | |||
| Public - | 6 to 8 | |||
| Public - | 9 to 12 | |||
| Public - | 6 to 8 |
Rating | School | Distance |
|---|---|---|
PS 9 Sarah Smith Garnet School (The) PublicPK to 5 | ||
Ms 266 Park Place Community Middle School Public6 to 8 | ||
GOTHAM PROFESSIONAL ARTS ACADEMY Public9 to 12 | ||
Urban Assembly Unison School (The) Public6 to 8 |
School ratings and boundaries are provided by GreatSchools.org and Pitney Bowes. This information should only be used as a reference. Proximity or boundaries shown here are not a guarantee of enrollment. Please reach out to schools directly to verify all information and enrollment eligibility.
Neighborhood Map and Transit
Similar Homes
Similar Sold Homes
Explore Nearby Homes
- Bedford-Stuyvesant Homes for Sale
- Central Brooklyn Homes for Sale
- Clinton Hill Homes for Sale
- Crown Heights Homes for Sale
- Fort Greene Homes for Sale
- Northern Brooklyn Homes for Sale
- North Slope Homes for Sale
- Northwestern Brooklyn Homes for Sale
- Park Slope Homes for Sale
- Prospect Heights Homes for Sale
- Prospect Lefferts Gardens Homes for Sale
- South Brooklyn Homes for Sale
- Central Slope Homes for Sale
- Boerum Hill Homes for Sale
- Downtown Brooklyn Homes for Sale
- Brooklyn Homes for Sale
- New York Homes for Sale
- Manhattan Homes for Sale
- Queens Homes for Sale
- Jersey City Homes for Sale
- Hoboken Homes for Sale
- Bayonne Homes for Sale
- Weehawken Homes for Sale
- Union City Homes for Sale
- Staten Island Homes for Sale
- West New York Homes for Sale
- North Bergen Homes for Sale
- Kearny Homes for Sale
- Guttenberg Homes for Sale
- Secaucus Homes for Sale
- 11225 Homes for Sale
- 11217 Homes for Sale
- 11216 Homes for Sale
- 11205 Homes for Sale
- 11215 Homes for Sale
- 11201 Homes for Sale
- 11243 Homes for Sale
- 11206 Homes for Sale
- 11213 Homes for Sale
- 11226 Homes for Sale
- 11218 Homes for Sale
- 11249 Homes for Sale
- 11221 Homes for Sale
- 11211 Homes for Sale
- 11203 Homes for Sale
No guarantee, warranty or representation of any kind is made regarding the completeness or accuracy of descriptions or measurements (including square footage measurements and property condition), such should be independently verified, and Compass, Inc., its subsidiaries, affiliates and their agents and associated third parties expressly disclaims any liability in connection therewith. Photos may be virtually staged or digitally enhanced and may not reflect actual property conditions. Offers of compensation are subject to change at the discretion of the seller. No financial or legal advice provided. Equal Housing Opportunity.
This information is not verified for authenticity or accuracy and is not guaranteed and may not reflect all real estate activity in the market. ©2026 The Real Estate Board of New York, Inc., All rights reserved. The source of the displayed data is either the property owner or public record provided by non-governmental third parties. It is believed to be reliable but not guaranteed. This information is provided exclusively for consumers’ personal, non-commercial use. The data relating to real estate for sale on this website comes in part from the IDX Program of OneKey® MLS. Information Copyright 2026, OneKey® MLS. All data is deemed reliable but is not guaranteed accurate by Compass. See Terms of Service for additional restrictions. Compass · Tel: 212-913-9058 · New York, NY Listing information for certain New York City properties provided courtesy of the Real Estate Board of New York’s Residential Listing Service (the "RLS"). The information contained in this listing has not been verified by the RLS and should be verified by the consumer. The listing information provided here is for the consumer’s personal, non-commercial use. Retransmission, redistribution or copying of this listing information is strictly prohibited except in connection with a consumer's consideration of the purchase and/or sale of an individual property. This listing information is not verified for authenticity or accuracy and is not guaranteed and may not reflect all real estate activity in the market. ©2026 The Real Estate Board of New York, Inc., all rights reserved. This information is not guaranteed, should be independently verified and may not reflect all real estate activity in the market. Offers of compensation set forth here are for other RLSParticipants only and may not reflect other agreements between a consumer and their broker.©2026 The Real Estate Board of New York, Inc., All rights reserved.













