19 Strong Place












Description
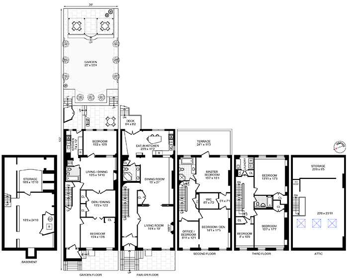
Upon entering the parlor floor, you are greeted with soaring ceilings, pristine original details, sophisticated design elements, beautiful hardwood floors and a wood burning fire place. The expansive chef's kitchen includes a Viking stove, stainless steal appliances, granite countertops and custom built-in storage.
Large windows overlook the beautifully landscaped garden with...Palatial 6,000 plus SF, 25 Ft Wide, 122 Lot, 2-Family Brownstone on one of the most coveted tree-lined streets in Cobble Hill.
Upon entering the parlor floor, you are greeted with soaring ceilings, pristine original details, sophisticated design elements, beautiful hardwood floors and a wood burning fire place. The expansive chef's kitchen includes a Viking stove, stainless steal appliances, granite countertops and custom built-in storage.
Large windows overlook the beautifully landscaped garden with a sprawling green lawn, pergola, and lush rose bushes.
Up the grand staircase, the second floor has 3 bedrooms including a massive master bedroom with walk-in closet, attached terrace and marble en suite bath.
Third floor has 3 more sizable bedrooms, a spacious laundry room, full bathroom and ample storage.
One final flight up there is a bright and airy finished attic with large skylights; perfect for a den, kid's playroom or easily configured into another bedroom.
The garden apartment is renovated with 2 bedrooms, large living room, a den/proper dining room, 1 bath, laundry and a lovely patio.
Dry basement is an additional 1,110 SF with countless possibilities.
The width, condition, location and overall charm of this historic home does not come around often. A true Brooklyn brownstone like no other.
Listing Agent
rglazer@compass.comP: (917)-860-7721
Amenities
- Primary Ensuite
- Balcony
- Private Terrace
- Private Yard
- Patio
- Deck
- Exposed Brick
- Working Fireplace
Property Details for 19 Strong Place
| Status | Sold |
|---|---|
| Days on Market | 106 |
| Taxes | $1,241 / month |
| Maintenance | - |
| Min. Down Pymt | - |
| Total Rooms | 15.0 |
| Compass Type | Townhouse |
| MLS Type | House/Building |
| Year Built | 1901 |
| Lot Size | 3,050 SF / 25' x 122' |
| County | Kings County |
| Buyer's Agent Compensation | 2.5% |
Building
19 Strong Pl
Location
Building Information for 19 Strong Place
Payment Calculator
$30,484 per month
30 year fixed, 6.15% Interest
$29,243
$1,241
$0
Property History for 19 Strong Place
| Date | Event & Source | Price |
|---|---|---|
| 03/02/2021 | Sold Manual | $6,500,000 |
| 02/01/2021 | Sold Manual | $6,000,000 |
| 02/01/2021 | $6,000,000 | |
| 10/21/2020 | Contract Signed Manual | — |
| 07/07/2020 | Listed (Active) Manual | $6,500,000 |
For completeness, Compass often displays two records for one sale: the MLS record and the public record.
Public Records for 19 Strong Place
Schools near 19 Strong Place
Rating | School | Type | Grades | Distance |
|---|---|---|---|---|
| Public - | PK to 5 | |||
| Public - | 6 to 8 | |||
| Public - | 10 to 12 | |||
| Public - | PK to 4 |
Rating | School | Distance |
|---|---|---|
P.S. 29 John M Harrigan PublicPK to 5 | ||
Middle 839 Public6 to 8 | ||
West Brooklyn Community High School Public10 to 12 | ||
School Of Creativity-Innovation PublicPK to 4 |
School ratings and boundaries are provided by GreatSchools.org and Pitney Bowes. This information should only be used as a reference. Proximity or boundaries shown here are not a guarantee of enrollment. Please reach out to schools directly to verify all information and enrollment eligibility.
Neighborhood Map and Transit
Similar Homes
Similar Sold Homes
Explore Nearby Homes
- Carroll Gardens Homes for Sale
- Brooklyn Heights Homes for Sale
- Gowanus Homes for Sale
- Red Hook Homes for Sale
- Boerum Hill Homes for Sale
- Northwestern Brooklyn Homes for Sale
- South Brooklyn Homes for Sale
- Columbia Street Waterfront Homes for Sale
- Cobble Hill Homes for Sale
- Greenwood Heights Homes for Sale
- Park Slope Homes for Sale
- Central Slope Homes for Sale
- North Slope Homes for Sale
- Downtown Brooklyn Homes for Sale
- South Slope Homes for Sale
- Manhattan Homes for Sale
- New York Homes for Sale
- Brooklyn Homes for Sale
- Jersey City Homes for Sale
- Bayonne Homes for Sale
- Hoboken Homes for Sale
- Staten Island Homes for Sale
- Queens Homes for Sale
- Union City Homes for Sale
- Weehawken Homes for Sale
- North Bergen Homes for Sale
- Kearny Homes for Sale
- Newark Homes for Sale
- Secaucus Homes for Sale
- West New York Homes for Sale
- 11232 Homes for Sale
- 11215 Homes for Sale
- 10004 Homes for Sale
- 11217 Homes for Sale
- 11201 Homes for Sale
- 10044 Homes for Sale
- 11242 Homes for Sale
- 11243 Homes for Sale
- 10041 Homes for Sale
- 11218 Homes for Sale
- 10043 Homes for Sale
- 10005 Homes for Sale
- 11238 Homes for Sale
- 10280 Homes for Sale
- 11220 Homes for Sale
No guarantee, warranty or representation of any kind is made regarding the completeness or accuracy of descriptions or measurements (including square footage measurements and property condition), such should be independently verified, and Compass, Inc., its subsidiaries, affiliates and their agents and associated third parties expressly disclaims any liability in connection therewith. Photos may be virtually staged or digitally enhanced and may not reflect actual property conditions. Offers of compensation are subject to change at the discretion of the seller. No financial or legal advice provided. Equal Housing Opportunity.
This information is not verified for authenticity or accuracy and is not guaranteed and may not reflect all real estate activity in the market. ©2026 The Real Estate Board of New York, Inc., All rights reserved. The source of the displayed data is either the property owner or public record provided by non-governmental third parties. It is believed to be reliable but not guaranteed. This information is provided exclusively for consumers’ personal, non-commercial use. The data relating to real estate for sale on this website comes in part from the IDX Program of OneKey® MLS. Information Copyright 2026, OneKey® MLS. All data is deemed reliable but is not guaranteed accurate by Compass. See Terms of Service for additional restrictions. Compass · Tel: 212-913-9058 · New York, NY Listing information for certain New York City properties provided courtesy of the Real Estate Board of New York’s Residential Listing Service (the "RLS"). The information contained in this listing has not been verified by the RLS and should be verified by the consumer. The listing information provided here is for the consumer’s personal, non-commercial use. Retransmission, redistribution or copying of this listing information is strictly prohibited except in connection with a consumer's consideration of the purchase and/or sale of an individual property. This listing information is not verified for authenticity or accuracy and is not guaranteed and may not reflect all real estate activity in the market. ©2026 The Real Estate Board of New York, Inc., all rights reserved. This information is not guaranteed, should be independently verified and may not reflect all real estate activity in the market. Offers of compensation set forth here are for other RLSParticipants only and may not reflect other agreements between a consumer and their broker.©2026 The Real Estate Board of New York, Inc., All rights reserved.













1