15 West 24th Street














Description
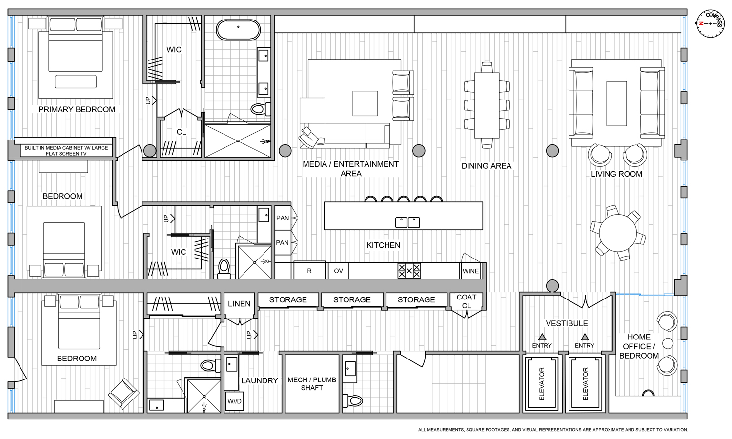
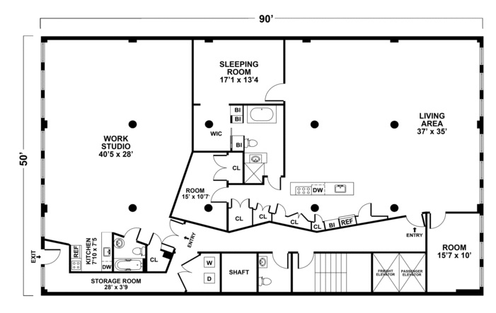
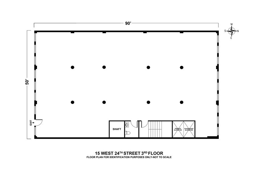
This 3rd floor residence boasts a soaring 11.5-foot ceilings and nine breathtaking, double-height windows that flood the residence with brilliant southern light. The nearly...A rare and extraordinary opportunity to craft a one-of-a-kind full-floor loft in the heart of Flatiron District. Accessed via a key-locked elevator, this expansive 4,100 sqft space currently consists of two adjacent lofts, offering the flexibility to move in immediately or seamlessly combine them into a stunning floor-through home.
This 3rd floor residence boasts a soaring 11.5-foot ceilings and nine breathtaking, double-height windows that flood the residence with brilliant southern light. The nearly 50-foot-wide expanse of south facing windows creates an awe-inspiring ambiance, illuminating the vast living, dining, and entertaining areas with a warm, inviting glow throughout the day.
This open canvas offers boundless potential to create a truly bespoke home, tailor-made to your vision. The layout easily accommodates three to five spacious bedrooms, a home office, a media room or den, and anywhere from three to five luxurious full bathrooms, plus a powder room. The possibilities extend to a laundry room and a generously sized central kitchen—an entertainer’s dream, designed to host everything from intimate dinners to lavish gatherings. Whether you envision an open-concept chef’s kitchen with a statement island, sleek custom cabinetry, or a seamless flow into the dining and lounge areas, the scale of this space allows for unparalleled creativity.
Alternate floor plans are available, giving you the flexibility to reimagine this exceptional loft into your ultimate Flatiron dream home.
Nestled at the crossroads of Flatiron, NoMad, and Chelsea, 15 West 24th Street is an intimate, meticulously maintained cooperative with just 10 residences, ensuring privacy and exclusivity. The pet-friendly building offers , a full-time superintendent, and a video intercom system for security and convenience. Pied-à-terre ownership and subletting are considered on a case-by-case basis.
Bring your vision, creativity, and passion to transform this remarkable space into a home unlike any other in New York City.
Current assessment of $1,136 to the end of 2026
Amenities
- Loft Style
- Floor Thru
- Entire Floor
- Primary Ensuite
- Columns
- Hardwood Floors
- High Ceilings
- Oversized Windows
Property Details for 15 West 24th Street
| Status | Exclusive Expired |
|---|---|
| Days on Market | 185 |
| Taxes | - |
| Maintenance | $8,042 / month |
| Min. Down Pymt | 25% |
| Total Rooms | 8.5 |
| Compass Type | Co-op |
| MLS Type | - |
| Year Built | - |
| County | New York County |
| Buyer's Agent Compensation | 2.5% |
Building
Location
Building Information for 15 West 24th Street
Payment Calculator
$27,690 per month
30 year fixed, 6.15% Interest
$19,648
$0
$8,042
Property History for 15 West 24th Street
| Date | Event & Source | Price |
|---|---|---|
| 12/04/2025 | $4,300,000 | |
| 12/03/2025 | $4,300,000 | |
| 12/03/2025 | $4,300,000 | |
| 09/30/2025 | Temporarily Off Market Manual | — |
| 07/01/2025 | Listed (Active) Manual | $4,300,000 |
| 06/16/2025 | Temporarily Off Market Manual | — |
| 03/12/2025 | Listed (Active) Manual | $4,300,000 |
| 05/06/2013 | — | |
| 04/30/2013 | $3,850,000 | |
| 09/20/2012 | $4,450,000 |
For completeness, Compass often displays two records for one sale: the MLS record and the public record.
Public Records for 15 West 24th Street
Schools near 15 West 24th Street
Rating | School | Type | Grades | Distance |
|---|---|---|---|---|
| Public - | PK to 5 | |||
| Public - | 6 to 8 | |||
| Public - | 6 to 8 | |||
| Public - | 6 to 8 |
Rating | School | Distance |
|---|---|---|
PS 11 Sarah J Garnett Elementary School (The) PublicPK to 5 | ||
Nyc Lab Ms For Collaborative Studies Public6 to 8 | ||
Middle 297 Public6 to 8 | ||
Lower Manhattan Community Middle School Public6 to 8 |
School ratings and boundaries are provided by GreatSchools.org and Pitney Bowes. This information should only be used as a reference. Proximity or boundaries shown here are not a guarantee of enrollment. Please reach out to schools directly to verify all information and enrollment eligibility.
Neighborhood Map and Transit
Similar Homes
Similar Sold Homes
Explore Nearby Homes
- Chelsea Homes for Sale
- Downtown Manhattan Homes for Sale
- Flatiron Homes for Sale
- Gramercy Homes for Sale
- Kips Bay Homes for Sale
- Midtown Manhattan Homes for Sale
- Murray Hill Homes for Sale
- NoMad Homes for Sale
- Peter Cooper Village Homes for Sale
- Rose Hill Homes for Sale
- StuyTown Homes for Sale
- Midtown South Homes for Sale
- East Village Homes for Sale
- Alphabet City Homes for Sale
- Greenwich Village Homes for Sale
- New York Homes for Sale
- Manhattan Homes for Sale
- Brooklyn Homes for Sale
- Queens Homes for Sale
- Hoboken Homes for Sale
- Weehawken Homes for Sale
- Jersey City Homes for Sale
- West New York Homes for Sale
- Union City Homes for Sale
- Guttenberg Homes for Sale
- North Bergen Homes for Sale
- Secaucus Homes for Sale
- Edgewater Homes for Sale
- Cliffside Park Homes for Sale
- Kearny Homes for Sale
- 10016 Homes for Sale
- 10001 Homes for Sale
- 10003 Homes for Sale
- 10009 Homes for Sale
- 10011 Homes for Sale
- 10121 Homes for Sale
- 10017 Homes for Sale
- 10119 Homes for Sale
- 10018 Homes for Sale
- 10158 Homes for Sale
- 10122 Homes for Sale
- 10014 Homes for Sale
- 10199 Homes for Sale
- 11101 Homes for Sale
- 11222 Homes for Sale
No guarantee, warranty or representation of any kind is made regarding the completeness or accuracy of descriptions or measurements (including square footage measurements and property condition), such should be independently verified, and Compass, Inc., its subsidiaries, affiliates and their agents and associated third parties expressly disclaims any liability in connection therewith. Photos may be virtually staged or digitally enhanced and may not reflect actual property conditions. Offers of compensation are subject to change at the discretion of the seller. No financial or legal advice provided. Equal Housing Opportunity.
This information is not verified for authenticity or accuracy and is not guaranteed and may not reflect all real estate activity in the market. ©2026 The Real Estate Board of New York, Inc., All rights reserved. The source of the displayed data is either the property owner or public record provided by non-governmental third parties. It is believed to be reliable but not guaranteed. This information is provided exclusively for consumers’ personal, non-commercial use. The data relating to real estate for sale on this website comes in part from the IDX Program of OneKey® MLS. Information Copyright 2026, OneKey® MLS. All data is deemed reliable but is not guaranteed accurate by Compass. See Terms of Service for additional restrictions. Compass · Tel: 212-913-9058 · New York, NY Listing information for certain New York City properties provided courtesy of the Real Estate Board of New York’s Residential Listing Service (the "RLS"). The information contained in this listing has not been verified by the RLS and should be verified by the consumer. The listing information provided here is for the consumer’s personal, non-commercial use. Retransmission, redistribution or copying of this listing information is strictly prohibited except in connection with a consumer's consideration of the purchase and/or sale of an individual property. This listing information is not verified for authenticity or accuracy and is not guaranteed and may not reflect all real estate activity in the market. ©2026 The Real Estate Board of New York, Inc., all rights reserved. This information is not guaranteed, should be independently verified and may not reflect all real estate activity in the market. Offers of compensation set forth here are for other RLSParticipants only and may not reflect other agreements between a consumer and their broker.©2026 The Real Estate Board of New York, Inc., All rights reserved.














1