170 Herkimer Street


















Description
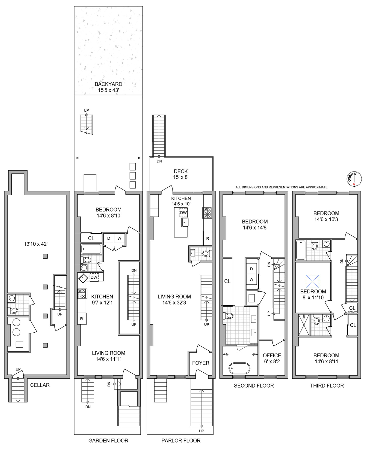
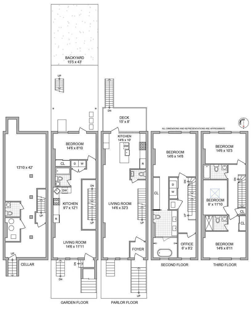
This townhouse is a two-family brownstone that features 6 bedrooms, 4 full bathrooms, 2 powder rooms, a large parlor deck, and an expansive backyard garden. From White Oak floors to original doors and exposed brick, attention to detail can be found throughout this well-appointed home.
As you enter the...170 Herkimer was originally constructed in 1901. This newly renovated home is the perfect combination of high-end finishes, modern technology, and impeccable details, an honorable salute to its past.
This townhouse is a two-family brownstone that features 6 bedrooms, 4 full bathrooms, 2 powder rooms, a large parlor deck, and an expansive backyard garden. From White Oak floors to original doors and exposed brick, attention to detail can be found throughout this well-appointed home.
As you enter the owner’s five-bedroom triplex, you are greeted by a welcoming foyer and an original door. Stepping into a 42-foot parlor, you realize the breadth of space as the 10.5-foot ceilings let the light radiate throughout the open floor plan to the full glass wall at the rear of the house. To the left, a formal living room area with a decorative fireplace and beautiful molding offers a great space for entertaining. To the right, is a large dining area and thoughtfully designed powder room. In the back, your kitchen features a three-seat island, decorative fireplace, custom cabinetry on both sides of the room, and quartz countertops. With a farmhouse sink and a full complement of appliances including a paneled refrigerator, Thermador six-burner stove, and microwave drawer, this kitchen is a chef’s dream.
On the second floor, you will find two bedrooms and one full bath. The elegant primary bedroom faces the serene backyard gardens and features three windows and a large walkthrough closet. The primary bathroom is adorned with a decorative fireplace, marble tiled floors, a tasteful double vanity, and a glass-enclosed shower room with a stand-alone tub and two rain shower systems. Toward the front of the house, is an office-sized bedroom, and in the hallway, you find an oversized laundry closet with a vented washer and dryer with space to add a linen closet. The top floor of this home has three bedrooms and two beautifully tiled bathrooms with skylights that are flooded with natural light.
The private basement can be accessed through an interior staircase and is finished with textured tile floors and a powder room. It can easily be transformed into a playroom, home office, or artist studio. The separate garden floor one-bedroom unit can serve as an income-producing property or in-law apartment. From the built-in sound system to the original fireplace mantle and exposed brick, this home offers a perfect blend of new technology and original charm.
This masterfully re-imagined townhouse is located in the border of Bedford Stuyvesant, Clinton Hill, and Crown Heights. You are moments away from great dining establishments such as Peaches Hot House, Uotora, Furman's Coffee, and David's Brisket House as well as Brower Park and St. Andrew's Playground. Nearby public transportation includes the A/C, LIRR, and JFK is a short 20-minute drive.
Listing Agents
tali@compass.comP: (917)-246-8581
isaac@compass.comP: (917)-734-2376
Amenities
- Private Terrace
- Deck
- Exposed Brick
- Decorative Fireplace
- Sound System
- Hardwood Floors
- High Ceilings
- Casement Windows
Property Details for 170 Herkimer Street
| Status | Sold |
|---|---|
| Days on Market | 108 |
| Taxes | $334 / month |
| Maintenance | - |
| Min. Down Pymt | 80% |
| Total Rooms | 14.0 |
| Compass Type | Townhouse |
| MLS Type | House/Building |
| Year Built | 1901 |
| Lot Size | 1,550 SF / 16' x 100' |
| County | Kings County |
| Buyer's Agent Compensation | 2.5% |
Building
170 Herkimer St
Location
Building Information for 170 Herkimer Street
Payment Calculator
$3,514 per month
30 year fixed, 6.15% Interest
$3,180
$334
$0
Property History for 170 Herkimer Street
| Date | Event & Source | Price |
|---|---|---|
| 01/31/2023 | Sold Manual | $2,610,000 |
| 01/26/2023 | $2,610,000 +103.7% / yr | |
| 11/21/2022 | Contract Signed Manual | $2,750,000 |
| 10/20/2022 | Price Change Manual | $2,700,000 |
| 08/04/2022 | Listed (Active) Manual | $2,850,000 |
| 08/03/2021 | $910,000 |
For completeness, Compass often displays two records for one sale: the MLS record and the public record.
Public Records for 170 Herkimer Street
Schools near 170 Herkimer Street
Rating | School | Type | Grades | Distance |
|---|---|---|---|---|
| Public - | PK to 5 | |||
| Public - | 6 to 8 | |||
| Public - | 10 to 12 | |||
| Public - | 9 to 12 |
Rating | School | Distance |
|---|---|---|
P.S. 93 William H Prescott PublicPK to 5 | ||
Restoration Academy Public6 to 8 | ||
Brooklyn Academy High School Public10 to 12 | ||
Bedford Academy High School Public9 to 12 |
School ratings and boundaries are provided by GreatSchools.org and Pitney Bowes. This information should only be used as a reference. Proximity or boundaries shown here are not a guarantee of enrollment. Please reach out to schools directly to verify all information and enrollment eligibility.
Neighborhood Map and Transit
Similar Homes
Similar Sold Homes
Explore Nearby Homes
- Bedford-Stuyvesant Homes for Sale
- Central Brooklyn Homes for Sale
- Crown Heights Homes for Sale
- Northern Brooklyn Homes for Sale
- Stuyvesant Heights Homes for Sale
- Clinton Hill Homes for Sale
- Northwestern Brooklyn Homes for Sale
- Weeksville Homes for Sale
- Prospect Heights Homes for Sale
- East Flatbush Homes for Sale
- Wingate Homes for Sale
- Prospect Lefferts Gardens Homes for Sale
- Williamsburg Homes for Sale
- Bushwick Homes for Sale
- Fort Greene Homes for Sale
- New York Homes for Sale
- Brooklyn Homes for Sale
- Queens Homes for Sale
- Manhattan Homes for Sale
- Jersey City Homes for Sale
- Hoboken Homes for Sale
- Bayonne Homes for Sale
- Weehawken Homes for Sale
- Union City Homes for Sale
- Staten Island Homes for Sale
- West New York Homes for Sale
- North Bergen Homes for Sale
- Guttenberg Homes for Sale
- Kearny Homes for Sale
- Bronx Homes for Sale
- 11233 Homes for Sale
- 11205 Homes for Sale
- 11206 Homes for Sale
- 11213 Homes for Sale
- 11221 Homes for Sale
- 11225 Homes for Sale
- 11238 Homes for Sale
- 11203 Homes for Sale
- 11215 Homes for Sale
- 11249 Homes for Sale
- 11217 Homes for Sale
- 11211 Homes for Sale
- 11201 Homes for Sale
- 11226 Homes for Sale
- 11212 Homes for Sale
No guarantee, warranty or representation of any kind is made regarding the completeness or accuracy of descriptions or measurements (including square footage measurements and property condition), such should be independently verified, and Compass, Inc., its subsidiaries, affiliates and their agents and associated third parties expressly disclaims any liability in connection therewith. Photos may be virtually staged or digitally enhanced and may not reflect actual property conditions. Offers of compensation are subject to change at the discretion of the seller. No financial or legal advice provided. Equal Housing Opportunity.
This information is not verified for authenticity or accuracy and is not guaranteed and may not reflect all real estate activity in the market. ©2026 The Real Estate Board of New York, Inc., All rights reserved. The source of the displayed data is either the property owner or public record provided by non-governmental third parties. It is believed to be reliable but not guaranteed. This information is provided exclusively for consumers’ personal, non-commercial use. The data relating to real estate for sale on this website comes in part from the IDX Program of OneKey® MLS. Information Copyright 2026, OneKey® MLS. All data is deemed reliable but is not guaranteed accurate by Compass. See Terms of Service for additional restrictions. Compass · Tel: 212-913-9058 · New York, NY Listing information for certain New York City properties provided courtesy of the Real Estate Board of New York’s Residential Listing Service (the "RLS"). The information contained in this listing has not been verified by the RLS and should be verified by the consumer. The listing information provided here is for the consumer’s personal, non-commercial use. Retransmission, redistribution or copying of this listing information is strictly prohibited except in connection with a consumer's consideration of the purchase and/or sale of an individual property. This listing information is not verified for authenticity or accuracy and is not guaranteed and may not reflect all real estate activity in the market. ©2026 The Real Estate Board of New York, Inc., all rights reserved. This information is not guaranteed, should be independently verified and may not reflect all real estate activity in the market. Offers of compensation set forth here are for other RLSParticipants only and may not reflect other agreements between a consumer and their broker.©2026 The Real Estate Board of New York, Inc., All rights reserved.




















1