165 6th Avenue




























Description
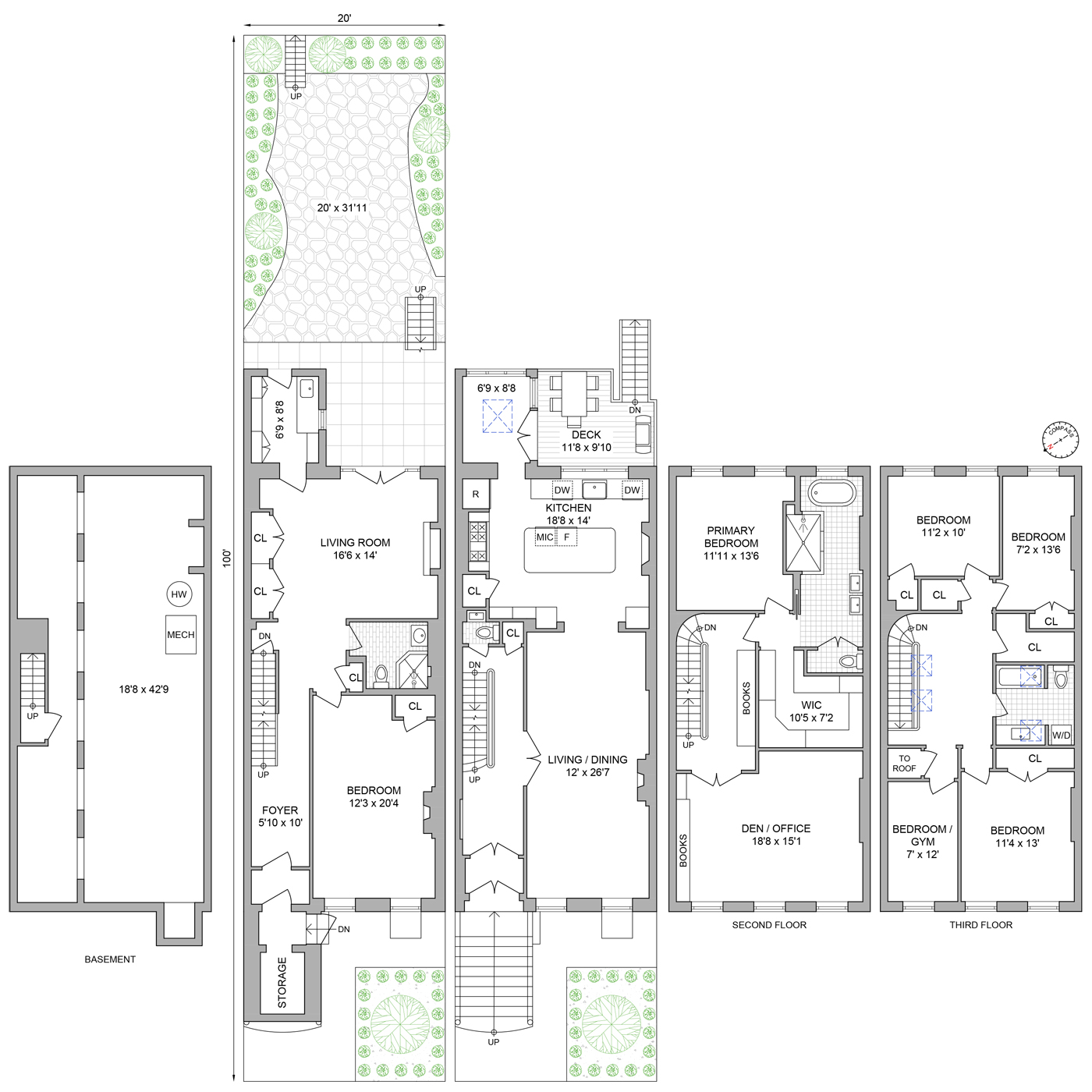
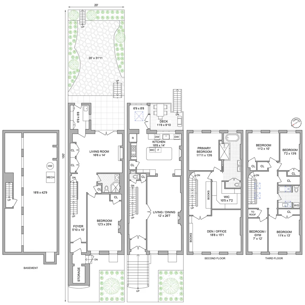
165 6th Ave is a 6 bedroom/3.5 bathroom, 4-story, 20ft wide townhouse with two working wood burning fireplaces, nestled between Lincoln and St Johns Pl on a beautiful, residential tree-lined street. Custom renovations throughout convey the notion of an untouched prewar home, but are in fact ingenious...Fully furnished, fully renovated brownstone for rent on Park Slope's bucolic 6th Ave! You and your pets don't need to bring anything but your suitcase to be at home in this luxurious single-family townhouse.
165 6th Ave is a 6 bedroom/3.5 bathroom, 4-story, 20ft wide townhouse with two working wood burning fireplaces, nestled between Lincoln and St Johns Pl on a beautiful, residential tree-lined street. Custom renovations throughout convey the notion of an untouched prewar home, but are in fact ingenious updates to provide ample built-in storage, increase natural light, and amplify the original architectural splendor.
The owners perfectly renovated the home for the modern user's needs. The parlor floor's grandiose ceiling heights, decorative moldings, arched doorways, marble mantles and a gilded pier mirror are highlights in the front parlor living/dining room, an open concept space for entertaining. The fireplace in this front parlor is wood burning. There is a proper foyer for dropping off your winter boots, with a coat closet and powder room just off the staircase. This floor features a magazine-worthy kitchen, a breakfast room in a small extension, and a sunny deck with a full dining set and grill, with steps down to the lush garden.
This kitchen is any cook's dream. Sunlight and leafy garden views stream in over the custom 6-seater island and decorative marble fireplace. An ultra-luxurious LaCanche double oven with 6 burners and a griddle is prominently displayed under an arch with corbels, along with a stunning custom vent hood, chic European tiles and a pot-filler! The fridge and dishwasher are top-of-the-line Miele, and there is an undercounter drawer microwave and freezer. The custom kitchen's decorative moldings, cabinetry, and wrap-around built-ins all seamlessly blend and provide for incredible amounts of storage, some to be hidden, some to be displayed behind glass.
Upstairs is the primary floor. The king-sized bedroom is in the rear, where windows with refurbished shutters open onto the garden below. An ensuite, windowed bathroom features a standing clawfoot tub, a separate glass-enclosed shower, a decorative fireplace, and a double vanity. The custom closet features a dressing room and enough storage for two. The landing was ingeniously designed, replete with built-ins to house books and family photos, and with custom stained glass transoms surrounding to allow light through. The front room on this floor houses a large office/den, with more built-ins for books, a wood-burning marble fireplace, a work station, and a giant sectional for cuddling up with a book or to watch television.
On the top floor, where sunlight streams in from a skylight, are four bedrooms (one currently used as a home gym) and a renovated bathroom with laundry.
The garden level features a massive bedroom, ideal for guests, au pairs, long-term visitors, etc, along with a large den/playroom, a newly renovated full bathroom, hidden storage, and a mudroom leading out to the garden. The garden is paved, with lush plantings surrounding it, to allow for the feeling of a secret garden while minimizing maintenance. The owners have both a basketball net and a swing set.
You don't need to bring anything other than your toothbrush to be fully moved in to this idyllic Park Slope brownstone. Fully furnished, pet friendly, and ideally located, this will be your easiest move. Nestled in North Slope, you are close to the 2/3/B/Q trains and the shopping along 5th and 7th Avenues, while living on quiet and residential 6th Ave. Prospect Park and its Saturday Farmers Market are moments away, and just two blocks south is the original Union Market for all your grocery needs and Milk Bar, a charming Australian cafe.
Listing Agents
joe.ryan@compass.comP: (917)-453-2676
ryanandryan@compass.comP: (347)-276-5165
Amenities
- Top Floor
- Private Terrace
- Private Yard
- Deck
- Gym
- Working Fireplace
- Decorative Fireplace
- Fireplace
Property Details for 165 6th Avenue
| Status | Rented |
|---|---|
| Days on Market | 43 |
| Rental Incentives | - |
| Available Date | 10/08/2022 |
| Lease Term | - |
| Furnished | Fully Furnished |
| Total Rooms | 14.0 |
| Compass Type | Townhouse |
| MLS Type | Single Family Residence |
| Year Built | 1905 |
| Lot Size | 2,000 SF / 20' x 100' |
| County | Kings County |
Building
165 6th Ave
Location
Building Information for 165 6th Avenue
Property History for 165 6th Avenue
| Date | Event & Source | Price | Appreciation |
|---|---|---|---|
| Dec 5, 2022 | Rented Manual | — | |
| Nov 21, 2022 | Leases Out Manual | — | |
| Oct 9, 2022 | Listed (Active) Manual | $17,500 | — |
| Date | Event & Source | Price |
|---|---|---|
| 12/05/2022 | Rented Manual | — |
| 11/21/2022 | Leases Out Manual | — |
| 10/09/2022 | Listed (Active) Manual | $17,500 |
For completeness, Compass often displays two records for one sale: the MLS record and the public record.
Schools near 165 6th Avenue
Rating | School | Type | Grades | Distance |
|---|---|---|---|---|
| Public - | PK to 5 | |||
| Public - | 6 to 8 | |||
| Public - | 9 to 12 | |||
| Public - | PK to 5 |
Rating | School | Distance |
|---|---|---|
P.S. 282 Park Slope PublicPK to 5 | ||
Ms 266 Park Place Community Middle School Public6 to 8 | ||
GOTHAM PROFESSIONAL ARTS ACADEMY Public9 to 12 | ||
P.S. 133 William A Butler PublicPK to 5 |
School ratings and boundaries are provided by GreatSchools.org and Pitney Bowes. This information should only be used as a reference. Proximity or boundaries shown here are not a guarantee of enrollment. Please reach out to schools directly to verify all information and enrollment eligibility.
Neighborhood Map and Transit
No guarantee, warranty or representation of any kind is made regarding the completeness or accuracy of descriptions or measurements (including square footage measurements and property condition), such should be independently verified, and Compass, Inc., its subsidiaries, affiliates and their agents and associated third parties expressly disclaims any liability in connection therewith. Photos may be virtually staged or digitally enhanced and may not reflect actual property conditions. Offers of compensation are subject to change at the discretion of the owner. No financial or legal advice provided. Equal Housing Opportunity.
This information is not verified for authenticity or accuracy and is not guaranteed and may not reflect all real estate activity in the market. ©2026 The Real Estate Board of New York, Inc., All rights reserved. The source of the displayed data is either the property owner or public record provided by non-governmental third parties. It is believed to be reliable but not guaranteed. This information is provided exclusively for consumers’ personal, non-commercial use. The data relating to real estate for sale on this website comes in part from the IDX Program of OneKey® MLS. Information Copyright 2026, OneKey® MLS. All data is deemed reliable but is not guaranteed accurate by Compass. See Terms of Service for additional restrictions. Compass · Tel: 212-913-9058 · New York, NY Listing information for certain New York City properties provided courtesy of the Real Estate Board of New York’s Residential Listing Service (the "RLS"). The information contained in this listing has not been verified by the RLS and should be verified by the consumer. The listing information provided here is for the consumer’s personal, non-commercial use. Retransmission, redistribution or copying of this listing information is strictly prohibited except in connection with a consumer's consideration of the purchase and/or sale of an individual property. This listing information is not verified for authenticity or accuracy and is not guaranteed and may not reflect all real estate activity in the market. ©2026 The Real Estate Board of New York, Inc., all rights reserved. This information is not guaranteed, should be independently verified and may not reflect all real estate activity in the market. Offers of compensation set forth here are for other RLSParticipants only and may not reflect other agreements between a consumer and their broker.©2026 The Real Estate Board of New York, Inc., All rights reserved.





























