164 Clifton Place












Description
Now has arrived the opportunity to create the home that you’ve always wanted! Located on one of the sweetest blocks of Brooklyn, at the crossroads of where Bed Stuy meets Clinton Hill. This is the first time in over 70 years that this house is on the market!!
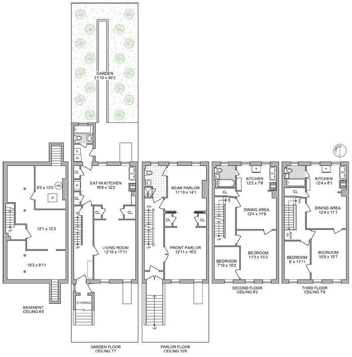
Come with your architect, designers, dreams, and visions, and here you can create the layout that you’ve been dreaming about. Measuring 20'x40' on a 100 foot lot 164 Clifton is a 3 family home, currently laid out with...Hello 164 Clifton Place!
Now has arrived the opportunity to create the home that you’ve always wanted! Located on one of the sweetest blocks of Brooklyn, at the crossroads of where Bed Stuy meets Clinton Hill. This is the first time in over 70 years that this house is on the market!!
Come with your architect, designers, dreams, and visions, and here you can create the layout that you’ve been dreaming about. Measuring 20'x40' on a 100 foot lot 164 Clifton is a 3 family home, currently laid out with the owner's duplex on the lower 2 levels, and 2 floor-through apartments above. There are currently tenants living in those apartments, with leases ending this summer.
You will not want to miss this opportunity and no doubt this home will be scooped up quickly! You’ve found your home sweet home.
Many local favorites include Chilos, Joloff, Clementine, Speedy Romeo, Locanda Vini & Olii, Pilar and so many more. There is a wonderful supermarket and many great specialty stores, Ship Wrecked for fresh fish and Greenberg’s for bagels all nearby. C/G/S trains, and the B38 / B52 buses.
The Open Houses are being scheduled by appointment only.
** Please note that this home is in original condition and is being sold “as is”.
Listing Agents
orrie.king@compass.comP: (917)-533-3935
beth.doran@compass.comP: (917)-570-5468
thekingdoranteam@compass.comP: (917)-533-3935
Amenities
- Walk Up
- Eat-in Kitchen
- Gas Heat
- Attach / Row Hse
- Lowrise
Property Details for 164 Clifton Place
| Status | Sold |
|---|---|
| Days on Market | 22 |
| Taxes | $171 / month |
| Maintenance | - |
| Min. Down Pymt | 20% |
| Total Rooms | 10.0 |
| Compass Type | Townhouse |
| MLS Type | House/Building |
| Year Built | 1915 |
| Lot Size | 1,936 SF / 20' x 97' |
| County | Kings County |
| Buyer's Agent Compensation | 2.5% |
Building
164 Clifton Pl
Location
Building Information for 164 Clifton Place
Payment Calculator
$9,188 per month
30 year fixed, 6.15% Interest
$9,017
$171
$0
Property History for 164 Clifton Place
| Date | Event & Source | Price | Appreciation |
|---|---|---|---|
| Oct 14, 2021 | Sold Manual | $1,950,000 | — |
| Oct 13, 2021 | Sold (Public Record) ACRIS | $1,850,000 | — |
| Aug 13, 2021 | Contract Signed Manual | — | |
| Jul 29, 2021 | Contract Out Manual | — | |
| Jul 6, 2021 | Listed (Active) Manual | $1,950,000 | — |
| Date | Event & Source | Price |
|---|---|---|
| 10/14/2021 | Sold Manual | $1,950,000 |
| 10/13/2021 | Sold (Public Record) ACRIS | $1,850,000 |
| 08/13/2021 | Contract Signed Manual | — |
| 07/29/2021 | Contract Out Manual | — |
| 07/06/2021 | Listed (Active) Manual | $1,950,000 |
For completeness, Compass often displays two records for one sale: the MLS record and the public record.
Public Records for 164 Clifton Place
Schools near 164 Clifton Place
Rating | School | Type | Grades | Distance |
|---|---|---|---|---|
| Public - | PK to 5 | |||
| Public - | 6 to 8 | |||
| Public - | 9 to 12 | |||
| Public - | 9 to 12 |
Rating | School | Distance |
|---|---|---|
P.S. 56 Lewis H Latimer PublicPK to 5 | ||
Urban Assembly Unison School (The) Public6 to 8 | ||
Bedford Academy High School Public9 to 12 | ||
Brooklyn Community High School Communication Arts An Public9 to 12 |
School ratings and boundaries are provided by GreatSchools.org and Pitney Bowes. This information should only be used as a reference. Proximity or boundaries shown here are not a guarantee of enrollment. Please reach out to schools directly to verify all information and enrollment eligibility.
Neighborhood Map and Transit
Similar Homes
Similar Sold Homes
Explore Nearby Homes
- Bedford-Stuyvesant Homes for Sale
- Central Brooklyn Homes for Sale
- Clinton Hill Homes for Sale
- Crown Heights Homes for Sale
- Fort Greene Homes for Sale
- Northern Brooklyn Homes for Sale
- North Slope Homes for Sale
- Northwestern Brooklyn Homes for Sale
- Park Slope Homes for Sale
- Prospect Heights Homes for Sale
- Prospect Lefferts Gardens Homes for Sale
- South Brooklyn Homes for Sale
- Central Slope Homes for Sale
- Boerum Hill Homes for Sale
- Downtown Brooklyn Homes for Sale
- Brooklyn Homes for Sale
- New York Homes for Sale
- Manhattan Homes for Sale
- Queens Homes for Sale
- Jersey City Homes for Sale
- Hoboken Homes for Sale
- Bayonne Homes for Sale
- Weehawken Homes for Sale
- Union City Homes for Sale
- Staten Island Homes for Sale
- West New York Homes for Sale
- North Bergen Homes for Sale
- Kearny Homes for Sale
- Guttenberg Homes for Sale
- Secaucus Homes for Sale
- 11225 Homes for Sale
- 11217 Homes for Sale
- 11216 Homes for Sale
- 11205 Homes for Sale
- 11215 Homes for Sale
- 11201 Homes for Sale
- 11243 Homes for Sale
- 11206 Homes for Sale
- 11213 Homes for Sale
- 11226 Homes for Sale
- 11218 Homes for Sale
- 11249 Homes for Sale
- 11221 Homes for Sale
- 11211 Homes for Sale
- 11203 Homes for Sale
No guarantee, warranty or representation of any kind is made regarding the completeness or accuracy of descriptions or measurements (including square footage measurements and property condition), such should be independently verified, and Compass, Inc., its subsidiaries, affiliates and their agents and associated third parties expressly disclaims any liability in connection therewith. Photos may be virtually staged or digitally enhanced and may not reflect actual property conditions. Offers of compensation are subject to change at the discretion of the seller. No financial or legal advice provided. Equal Housing Opportunity.
This information is not verified for authenticity or accuracy and is not guaranteed and may not reflect all real estate activity in the market. ©2026 The Real Estate Board of New York, Inc., All rights reserved. The source of the displayed data is either the property owner or public record provided by non-governmental third parties. It is believed to be reliable but not guaranteed. This information is provided exclusively for consumers’ personal, non-commercial use. The data relating to real estate for sale on this website comes in part from the IDX Program of OneKey® MLS. Information Copyright 2026, OneKey® MLS. All data is deemed reliable but is not guaranteed accurate by Compass. See Terms of Service for additional restrictions. Compass · Tel: 212-913-9058 · New York, NY Listing information for certain New York City properties provided courtesy of the Real Estate Board of New York’s Residential Listing Service (the "RLS"). The information contained in this listing has not been verified by the RLS and should be verified by the consumer. The listing information provided here is for the consumer’s personal, non-commercial use. Retransmission, redistribution or copying of this listing information is strictly prohibited except in connection with a consumer's consideration of the purchase and/or sale of an individual property. This listing information is not verified for authenticity or accuracy and is not guaranteed and may not reflect all real estate activity in the market. ©2026 The Real Estate Board of New York, Inc., all rights reserved. This information is not guaranteed, should be independently verified and may not reflect all real estate activity in the market. Offers of compensation set forth here are for other RLSParticipants only and may not reflect other agreements between a consumer and their broker.©2026 The Real Estate Board of New York, Inc., All rights reserved.














