1599 Pacific Street


















Description
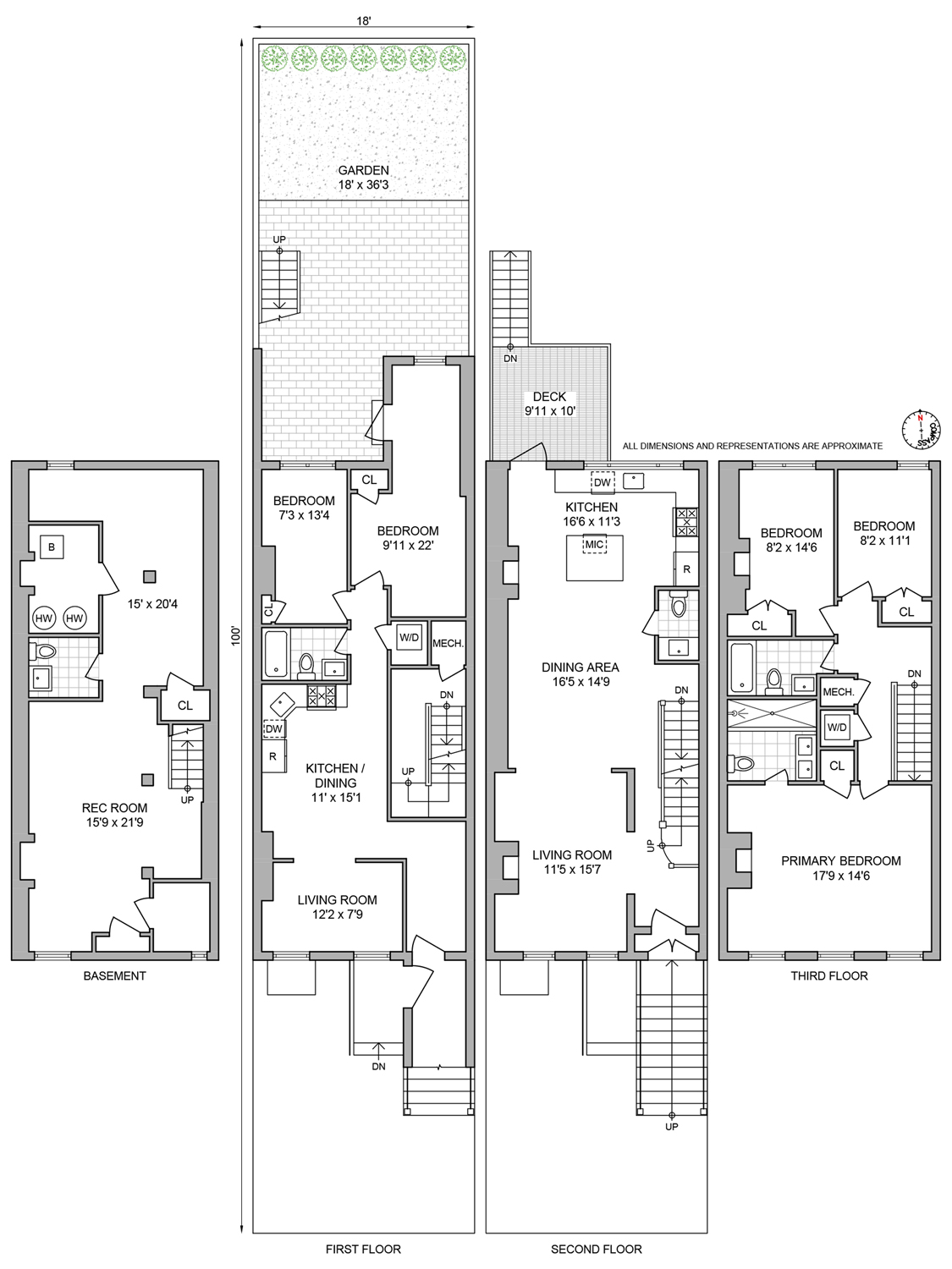
This Brooklyn townhouse is configured as an 18’ wide three-story, two-family. The owner's duplex has three bedrooms and two and a half bathrooms as well as private access to the fully finished basement. The rental or in-laws unit is a flex two-bedroom, one-bath garden...1599 Pacific Street was originally built in 1910. A perfect combination of old and new - classic and modern elegance. Meticulously renovated, it's the seamless blend of high-end finishes, modern technology, and exquisite classic details.
This Brooklyn townhouse is configured as an 18’ wide three-story, two-family. The owner's duplex has three bedrooms and two and a half bathrooms as well as private access to the fully finished basement. The rental or in-laws unit is a flex two-bedroom, one-bath garden apartment.
As you step up the formidable stoop of 1599 Pacific, past the double doors, you are greeted by beautiful detailed original woodwork and beautiful herringbone floors. To your left is the expansive living room with a decorative fireplace and other details that celebrate this home's tradition such as picture frame molding and pocket window shutters. Past the elegant living room, is the spacious dining room that leads to the formidable kitchen. The open kitchen is finished with an island, custom cabinetry, and quartz countertops as well as a farmhouse sink and a full complement of appliances including a Blomberg 36" french door refrigerator, Verona five-burner stove, dishwasher, and an under-counter microwave. This eat-in kitchen would make any cook a professional chef. A powder room is tucked between the kitchen and dining room. Past the kitchen is a deck that leads to the north-facing backyard.
Upstairs you'll find three bedrooms and two full baths. The king-sized primary bedroom faces the tree-lined street and features three windows, a walk-in closet, and a large bathroom with double vanity and a rain shower. The two queen-sized bedrooms are located in the back of the house both equipped with closets. The second bathroom is finished with a soaking tub and adjacent to the laundry closet which houses a brand new ThinQ washer and dryer. Modernly adapted, this classic home boasts upgraded touches - the main door and temperature can be controlled via panels on each floor and heating and cooling via Nest controllers.
The private basement can be accessed through an interior staircase and is finished with tile floors. It can easily be transformed into a rec room, playroom, media den, or artist studio. The separate garden floor flex three-bedroom unit, with a private entrance, can serve as an income-producing property or in-law apartment.
This masterfully re-imagined townhouse is located on a beautiful, tree-lined street in the heart of Crown Heights, and in close vicinity to Bedford-Stuyvesant. You are moments away from great dining establishments such as Almah Cafe, Barboncino Pizza, Catfish cafe, The Crown Inn, or Aita trattoria, as well as Prospect Park, St. John's Recreational Park, Soccerroof, and other playgrounds, basketball and tennis courts. Nearby public transportation includes 2/3 4/5 A/C or LIRR.
Listing Agent
tali@compass.comP: (917)-246-8581
Amenities
- Private Yard
- Patio
- Deck
- Exposed Brick
- Decorative Fireplace
- Decorative Mouldings
- Hardwood Floors
- Casement Windows
Property Details for 1599 Pacific Street
| Status | Sold |
|---|---|
| Days on Market | 25 |
| Taxes | $209 / month |
| Maintenance | - |
| Min. Down Pymt | 20% |
| Total Rooms | 11.5 |
| Compass Type | Townhouse |
| MLS Type | House/Building |
| Year Built | 1910 |
| Lot Size | 1,800 SF / 18' x 100' |
| County | Kings County |
| Buyer's Agent Compensation | 2.5% |
Building
1599 Pacific St
Location
Building Information for 1599 Pacific Street
Payment Calculator
$10,030 per month
30 year fixed, 6.15% Interest
$9,821
$209
$0
Property History for 1599 Pacific Street
| Date | Event & Source | Price |
|---|---|---|
| 09/16/2022 | $2,015,000 +74.7% / yr | |
| 06/28/2022 | Contract Signed Manual | — |
| 06/02/2022 | Listed (Active) Manual | $2,150,000 |
| 11/04/2021 | Temporarily Off Market BKMLS #456972 | $2,200,000 |
| 11/04/2021 | Listed (Active) BKMLS #456972 | $2,200,000 |
| 01/23/2021 | $805,000 | |
| 09/03/2020 | Permanently Off Market Manual | $1,200,000 |
| 07/31/2020 | Price Change Manual | $1,200,000 |
| 06/20/2020 | Listed (Active) Manual | $1,400,000 |
For completeness, Compass often displays two records for one sale: the MLS record and the public record.
Public Records for 1599 Pacific Street
Schools near 1599 Pacific Street
Rating | School | Type | Grades | Distance |
|---|---|---|---|---|
| Public - | PK to 5 | |||
| Public - | 6 to 8 | |||
| Public - | 9 to 12 | |||
| Public - | PK to 5 |
Rating | School | Distance |
|---|---|---|
P.S. 243 the Weeksville School PublicPK to 5 | ||
Ms 35 Stephen Decatur Public6 to 8 | ||
NELSON MANDELA HIGH SCHOOL Public9 to 12 | ||
Brooklyn Brownstone School PublicPK to 5 |
School ratings and boundaries are provided by GreatSchools.org and Pitney Bowes. This information should only be used as a reference. Proximity or boundaries shown here are not a guarantee of enrollment. Please reach out to schools directly to verify all information and enrollment eligibility.
Neighborhood Map and Transit
Similar Homes
Similar Sold Homes
Explore Nearby Homes
- Northern Brooklyn Homes for Sale
- Stuyvesant Heights Homes for Sale
- East Flatbush Homes for Sale
- Bedford-Stuyvesant Homes for Sale
- Weeksville Homes for Sale
- Brownsville Homes for Sale
- Central Brooklyn Homes for Sale
- Wingate Homes for Sale
- Eastern Brooklyn Homes for Sale
- Crown Heights Homes for Sale
- Prospect Lefferts Gardens Homes for Sale
- Ocean Hill Homes for Sale
- Clinton Hill Homes for Sale
- Northwestern Brooklyn Homes for Sale
- Flatbush Homes for Sale
- New York Homes for Sale
- Brooklyn Homes for Sale
- Queens Homes for Sale
- Manhattan Homes for Sale
- Jersey City Homes for Sale
- Bayonne Homes for Sale
- Hoboken Homes for Sale
- Weehawken Homes for Sale
- Staten Island Homes for Sale
- Union City Homes for Sale
- West New York Homes for Sale
- North Bergen Homes for Sale
- Guttenberg Homes for Sale
- Bronx Homes for Sale
- Kearny Homes for Sale
- 11225 Homes for Sale
- 11233 Homes for Sale
- 11203 Homes for Sale
- 11212 Homes for Sale
- 11216 Homes for Sale
- 11221 Homes for Sale
- 11238 Homes for Sale
- 11226 Homes for Sale
- 11215 Homes for Sale
- 11236 Homes for Sale
- 11206 Homes for Sale
- 11207 Homes for Sale
- 11205 Homes for Sale
- 11218 Homes for Sale
- 11217 Homes for Sale
No guarantee, warranty or representation of any kind is made regarding the completeness or accuracy of descriptions or measurements (including square footage measurements and property condition), such should be independently verified, and Compass, Inc., its subsidiaries, affiliates and their agents and associated third parties expressly disclaims any liability in connection therewith. Photos may be virtually staged or digitally enhanced and may not reflect actual property conditions. Offers of compensation are subject to change at the discretion of the seller. No financial or legal advice provided. Equal Housing Opportunity.
This information is not verified for authenticity or accuracy and is not guaranteed and may not reflect all real estate activity in the market. ©2026 The Real Estate Board of New York, Inc., All rights reserved. The source of the displayed data is either the property owner or public record provided by non-governmental third parties. It is believed to be reliable but not guaranteed. This information is provided exclusively for consumers’ personal, non-commercial use. The data relating to real estate for sale on this website comes in part from the IDX Program of OneKey® MLS. Information Copyright 2026, OneKey® MLS. All data is deemed reliable but is not guaranteed accurate by Compass. See Terms of Service for additional restrictions. Compass · Tel: 212-913-9058 · New York, NY Listing information for certain New York City properties provided courtesy of the Real Estate Board of New York’s Residential Listing Service (the "RLS"). The information contained in this listing has not been verified by the RLS and should be verified by the consumer. The listing information provided here is for the consumer’s personal, non-commercial use. Retransmission, redistribution or copying of this listing information is strictly prohibited except in connection with a consumer's consideration of the purchase and/or sale of an individual property. This listing information is not verified for authenticity or accuracy and is not guaranteed and may not reflect all real estate activity in the market. ©2026 The Real Estate Board of New York, Inc., all rights reserved. This information is not guaranteed, should be independently verified and may not reflect all real estate activity in the market. Offers of compensation set forth here are for other RLSParticipants only and may not reflect other agreements between a consumer and their broker.©2026 The Real Estate Board of New York, Inc., All rights reserved.



















1