15 Nottingham Ln

Beds
Baths
Sq. Ft.
/ Sq. Ft.
Sq. Ft.
per Sq. Ft.

Description

Discover 15 Nottingham – a 2-story townhouse ready for your personal touch! Each side of this townhouse features 3 bedrooms, 1 1/2 bathrooms, and a basement, providing versatile space suitable for a variety of needs. While the interior awaits updates, the exterior has been recently enhanced with a new roof, gutters, and soffit, offering a strong starting point for future renovations. This property shares a parking lot and garage space with its neighboring twin, 11 Nottingham. Both properties are...Discover 15 Nottingham – a 2-story townhouse ready for your personal touch! Each side of this townhouse features 3 bedrooms, 1 1/2 bathrooms, and a basement, providing versatile space suitable for a variety of needs. While the interior awaits updates, the exterior has been recently enhanced with a new roof, gutters, and soffit, offering a strong starting point for future renovations. This property shares a parking lot and garage space with its neighboring twin, 11 Nottingham. Both properties are listed separately at $140,000 each but present an excellent opportunity if purchased together, allowing for enhanced flexibility and value. Whether you’re looking for a rental property, a home with investment potential, or a project with room to grow, 15 Nottingham offers the foundation for a rewarding opportunity.
  1. Listed by Brad Chandler • Property Peddler, Inc

Amenities

  • Air Conditioning
  • Basement
  • Forced Air
  • Garage
  • Off-Street Parking
  • Parking Included
  • Parking Lot
LISTING UPDATED: 01/02/2025 03:52 PM

Property Details for 15 Nottingham Lane

StatusClosed
MLS #24071093
Days on Market27
Taxes$5,096 / year
HOA Fees-
Condo/Co-op Fees-
Compass TypeMulti Family
MLS TypeResidential Income / Multi-Family 2-4
Year Built1969
Lot Size-
CountySt. Clair County

Location

Listing Courtesy of Property Peddler, Inc

Sold By Johnston Realty, Inc.

Add your commute

Building Information for 15 Nottingham Lane

Stories-Residences-Year Built1969Building Size-Lot Size-

Payment Calculator

$1,070 per month

30 year fixed, 6.15% Interest

Principal and Interest

$646

Property Taxes

$425

HOA Dues

$0

The Payment Calculator is for illustrative purposes only.

Property Information for 15 Nottingham Lane

Summary
Location and General Information
  • City: Belleville
  • County Or Parish: St Clair-IL
  • Directions: From 161 take Carson Drive. From Carson drive take a left on Windsor drive and from Windsor take a left onto Fox Creek Rd. From there Nottingham Lane will be on the left.
  • Latitude: 38.56351
  • Longitude: -90.036924
  • Postal Code: 62223
  • State Or Province: IL
  • Sub division Name: Fox Creek Estates
Taxes and HOA Information
  • List AOR: Southwestern Illinois Board of REALTORS
  • Parcel Number: 07-01.0-404-030
  • Tax Annual Amount: $5,096.00
  • Tax Year: 2023
Parking
  • Attached Garage: No
  • Parking Features: Carport - 1-2 Car, Off Street
School Information
  • Elementary School: Harmony Emge DIST 175
  • High School: Belleville High School-West
  • High School District: Harmony Emge DIST 175
  • Middle Or Junior School: Harmony Emge DIST 175
Property
Lot Information
  • Lot Size Dimensions: .26
  • Property Sub Type: Multi-Family 2-4
  • Property Type: Residential Income
Property and Assessments
  • Documents Count: 2
  • Building Desc: Townhouse
  • Photos Count: 5
  • Videos Count: 0
  • Year Built: 1969
  • Disclosures: Unknown,Sellers Discl. Avail
  • Age: 56
Utilities
  • Sewer: Public Sewer
  • Water Source: Public
Interior and Exterior Features
Interior Features
  • Heat Source: Gas
  • Cooling: Electric
  • Heating: Forced Air
  • Heating YN: Yes
Multi Family
Multi-Family Information
  • Type of Units: 2-Family
Income & Expenses
  • Net Operating Income: $.00
  • Operating Expense Includes: Insurance,Taxes,Maintenance Gounds,Maintenance,Snow Removal
  • Total Expenses: 0.00
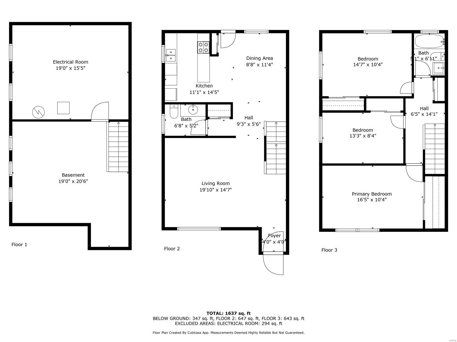
Unit 1
  • Unit Bedroom 1: 16'5" x 10'4"
  • Unit Bedroom 2: 14'7" x 10'4"
  • Unit Bedroom 3: 13'3" x 8'4"
  • Unit Dining: 8'8" x 11'4"
  • Unit Kitchen: 11'1" x 14'5"
  • Unit Living: 19'10" x 14'7"
Rental
Rent Information
  • Lease Term: One or More Vacant
  • Tenant Pays: All Utilities

Property History for 15 Nottingham Lane

DateEvent & SourcePriceAppreciation
Dec 30, 2024

Closed

MARIS #24071093

$132,500
Dec 11, 2024

Pending

MARIS #24071093

Nov 21, 2024

Active Under Contract

MARIS #24071093

Nov 15, 2024

Listed (Active)

MARIS #24071093

$140,000
Aug 9, 2022

Closed

MARIS #22038168

$100,000
Aug 9, 2022

Pending

MARIS #22038168

Jun 16, 2022

Active Under Contract

MARIS #22038168

Jun 15, 2022

Listed (Active)

MARIS #22038168

$100,000
DateEvent & SourcePrice
12/30/2024

Closed

MARIS #24071093

$132,500
12/11/2024

Pending

MARIS #24071093

11/21/2024

Active Under Contract

MARIS #24071093

11/15/2024

Listed (Active)

MARIS #24071093

$140,000
08/09/2022

Closed

MARIS #22038168

$100,000
08/09/2022

Pending

MARIS #22038168

06/16/2022

Active Under Contract

MARIS #22038168

06/15/2022

Listed (Active)

MARIS #22038168

$100,000

For completeness, Compass often displays two records for one sale: the MLS record and the public record.

Public Records for 15 Nottingham Lane

Taxable ValueLand$8,069Additions$56,814Total$64,883
Tax Record2024$5,451 ($454 / month)
Home Facts
Total Finished SqFt1,353 SqFtAbove Grade Finished SqFt1,353 SqFtStories2Lot Size11,326 SqFtStyleDuplexYear Built1969Year Renovated1985CountyST. CLAIRAPN07-01-0-404-030

Schools near 15 Nottingham Lane

This home is within Belleville Twp Hsd 201 School District.
Rating
School
Type
Grades
Distance
Public - PK to 3
Public - 7 to 8
Public - 9 to 12
Public - 4 to 6
Rating
School
Distance
Ellis Elementary School
PublicPK to 3

Emge Junior High School
Public7 to 8

Harmony Intermediate Center
Public4 to 6

School ratings and boundaries are provided by GreatSchools.org and Pitney Bowes. This information should only be used as a reference. Proximity or boundaries shown here are not a guarantee of enrollment. Please reach out to schools directly to verify all information and enrollment eligibility.

Similar Homes

Similar Sold Homes

No guarantee, warranty or representation of any kind is made regarding the completeness or accuracy of descriptions or measurements (including square footage measurements and property condition), such should be independently verified, and Compass, Inc., its subsidiaries, affiliates and their agents and associated third parties expressly disclaims any liability in connection therewith. Photos may be virtually staged or digitally enhanced and may not reflect actual property conditions. Offers of compensation are subject to change at the discretion of the seller. No financial or legal advice provided. Equal Housing Opportunity.

Listing Courtesy of Property Peddler, Inc

Based on information submitted to the MLS GRID as of 01/02/2025 03:52 PM. All data is obtained from various sources and may not have been verified by broker or MLS GRID. Supplied Open House Information is subject to change without notice. All information should be independently reviewed and verified for accuracy. Properties may or may not be listed by the office/agent presenting the information. Properties displayed may be listed or sold by various participants in the MLS. IDX information is provided exclusively for consumers’ personal, non-commercial use and may not be used for any purpose other than to identify prospective properties consumers may be interested in purchasing. The data is deemed reliable but is not guaranteed by MLS GRID. Use of the MLS GRID data may be subject to an end user license agreement prescribed by the applicable MLS of the Member Participant, if any, and as amended from time to time.