148 29th Street































Description
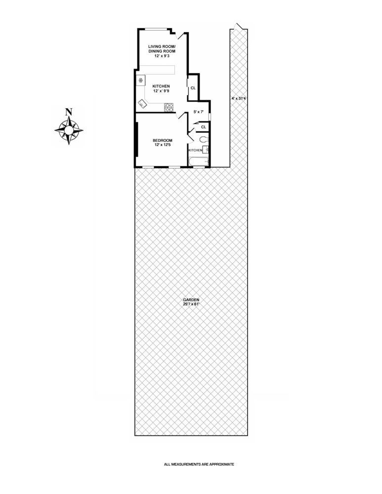
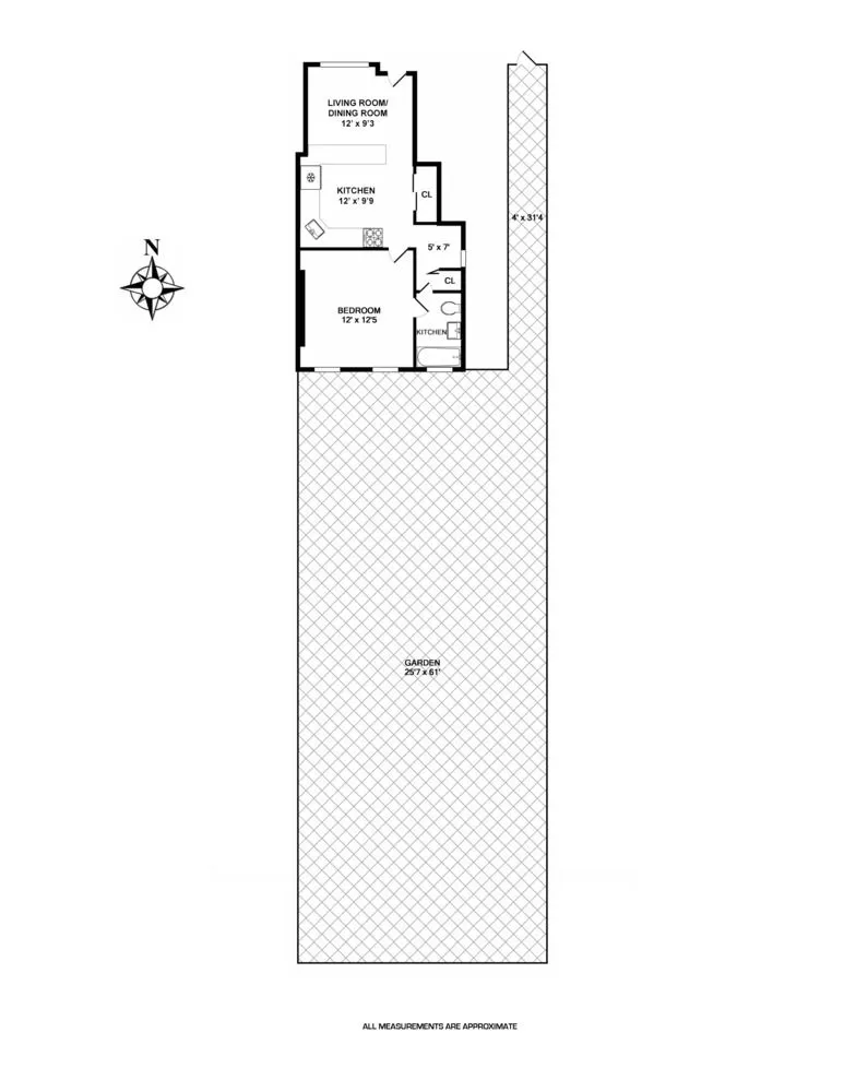
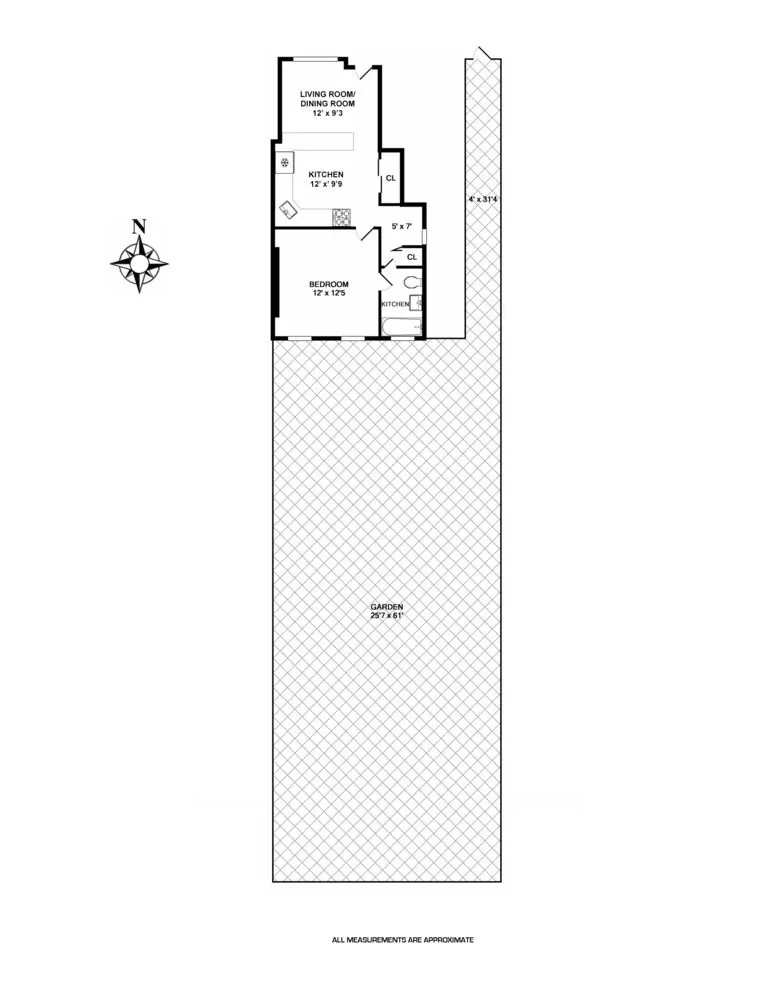
Situated on a 25x100 lot with an unused FAR of 2,905, this property boasts...Rarely does a true 3-family property become available in the up-and-coming neighborhood of Greenwood Heights, offering spacious living and serene surroundings. Ideal for both end-users and investors, this property currently functions as an income-producing asset with three separate rental units. However, it presents the opportunity to easily convert into an owner's duplex with an income-generating unit on the ground floor.
Situated on a 25x100 lot with an unused FAR of 2,905, this property boasts recent renovations throughout all units. The current layout includes a 2 bedroom/1 bath unit on the top floor, another 2 bedroom/1 bath unit on the second floor, and a 1 bedroom/1 bath unit on the ground floor. Each unit enjoys access to a well-maintained backyard through a private 5' alley running alongside the house.
With separate mechanicals and grids for each unit, operational costs remain low, and ceiling heights exceed 9' in all units. Additionally, the property utilizes only .84 of its FAR, leaving ample room for expansion, with a maximum FAR of 1.65 for residential use or 2 for commercial use. There's even potential to expand each unit into a 3 bed/2 bath configuration.
Conveniently located just minutes away from transportation options such as the R at 25th Street or the express N and D at 36th Street, as well as Industry City, a prominent manufacturing coworking and retail space in Brooklyn. Residents can also enjoy proximity to Greenwood Park, a popular 13,000-square-foot beer garden with bocce courts and seasonal menus.
Furthermore, the area is undergoing significant development with numerous high-profile condo and commercial projects slated for 4th Avenue and 5th Avenue. Whether you're seeking a promising investment opportunity or more living space, this property is not to be overlooked.
Listing Agents
melissa.piccolomo@compass.comP: (347)-992-6610
edith.yang@compass.comP: (347)-702-0203
Amenities
- Common Garden
- Hardwood Floors
- Walk Up
- Voice Intercom
- Parking Included
- Lowrise
- House
Property Details for 148 29th Street
| Status | Permanently Off Market |
|---|---|
| Days on Market | 356 |
| Taxes | $466 / month |
| Maintenance | - |
| Min. Down Pymt | - |
| Total Rooms | 10.0 |
| Compass Type | Townhouse |
| MLS Type | Multi Family |
| Year Built | 1934 |
| Lot Size | 2,504 SF / 25' x 100' |
| County | Kings County |
| Buyer's Agent Compensation | 2.5% |
Building
148 29th St
Location
Building Information for 148 29th Street
Payment Calculator
$8,508 per month
30 year fixed, 6.15% Interest
$8,042
$466
$0
Property History for 148 29th Street
| Date | Event & Source | Price |
|---|---|---|
| 09/23/2025 | Permanently Off Market Manual | — |
| 02/25/2025 | Contract Signed Manual | — |
| 03/05/2024 | Listed (Active) Manual | $1,650,000 |
| 02/15/2023 | Temporarily Off Market Manual | — |
| 06/15/2021 | Listed (Active) Manual | $1,650,000 |
| 01/13/2017 | $1,100,000 | |
| 09/09/2016 | $1,100,000 | |
| 07/14/2016 | $1,100,000 |
For completeness, Compass often displays two records for one sale: the MLS record and the public record.
Public Records for 148 29th Street
Schools near 148 29th Street
Rating | School | Type | Grades | Distance |
|---|---|---|---|---|
| Public - | PK to 5 | |||
| Public - | 6 to 8 | |||
| Public - | 9 to 12 | |||
| Public - | 6 to 8 |
Rating | School | Distance |
|---|---|---|
P.S. 172 Beacon School Of Excellence PublicPK to 5 | ||
Is 136 Charles O Dewey Public6 to 8 | ||
Sunset Park High School Public9 to 12 | ||
Sunset Park Prep Public6 to 8 |
School ratings and boundaries are provided by GreatSchools.org and Pitney Bowes. This information should only be used as a reference. Proximity or boundaries shown here are not a guarantee of enrollment. Please reach out to schools directly to verify all information and enrollment eligibility.
Neighborhood Map and Transit
Similar Homes
Similar Sold Homes
Explore Nearby Homes
- Southwestern Brooklyn Homes for Sale
- Greenwood Heights Homes for Sale
- Carroll Gardens Homes for Sale
- Borough Park Homes for Sale
- Gowanus Homes for Sale
- Sunset Park Homes for Sale
- South Brooklyn Homes for Sale
- Red Hook Homes for Sale
- South Slope Homes for Sale
- Park Slope Homes for Sale
- Kensington Homes for Sale
- Central Brooklyn Homes for Sale
- Central Slope Homes for Sale
- Bay Ridge Homes for Sale
- Columbia Street Waterfront Homes for Sale
- New York Homes for Sale
- Brooklyn Homes for Sale
- Manhattan Homes for Sale
- Bayonne Homes for Sale
- Jersey City Homes for Sale
- Staten Island Homes for Sale
- Hoboken Homes for Sale
- Queens Homes for Sale
- Union City Homes for Sale
- Newark Homes for Sale
- Weehawken Homes for Sale
- Elizabeth Homes for Sale
- Kearny Homes for Sale
- North Bergen Homes for Sale
- Secaucus Homes for Sale
- 11231 Homes for Sale
- 11215 Homes for Sale
- 11219 Homes for Sale
- 11218 Homes for Sale
- 11220 Homes for Sale
- 11217 Homes for Sale
- 11201 Homes for Sale
- 11209 Homes for Sale
- 11204 Homes for Sale
- 11228 Homes for Sale
- 11238 Homes for Sale
- 11230 Homes for Sale
- 11243 Homes for Sale
- 10044 Homes for Sale
- 11226 Homes for Sale
No guarantee, warranty or representation of any kind is made regarding the completeness or accuracy of descriptions or measurements (including square footage measurements and property condition), such should be independently verified, and Compass, Inc., its subsidiaries, affiliates and their agents and associated third parties expressly disclaims any liability in connection therewith. Photos may be virtually staged or digitally enhanced and may not reflect actual property conditions. Offers of compensation are subject to change at the discretion of the seller. No financial or legal advice provided. Equal Housing Opportunity.
This information is not verified for authenticity or accuracy and is not guaranteed and may not reflect all real estate activity in the market. ©2026 The Real Estate Board of New York, Inc., All rights reserved. The source of the displayed data is either the property owner or public record provided by non-governmental third parties. It is believed to be reliable but not guaranteed. This information is provided exclusively for consumers’ personal, non-commercial use. The data relating to real estate for sale on this website comes in part from the IDX Program of OneKey® MLS. Information Copyright 2026, OneKey® MLS. All data is deemed reliable but is not guaranteed accurate by Compass. See Terms of Service for additional restrictions. Compass · Tel: 212-913-9058 · New York, NY Listing information for certain New York City properties provided courtesy of the Real Estate Board of New York’s Residential Listing Service (the "RLS"). The information contained in this listing has not been verified by the RLS and should be verified by the consumer. The listing information provided here is for the consumer’s personal, non-commercial use. Retransmission, redistribution or copying of this listing information is strictly prohibited except in connection with a consumer's consideration of the purchase and/or sale of an individual property. This listing information is not verified for authenticity or accuracy and is not guaranteed and may not reflect all real estate activity in the market. ©2026 The Real Estate Board of New York, Inc., all rights reserved. This information is not guaranteed, should be independently verified and may not reflect all real estate activity in the market. Offers of compensation set forth here are for other RLSParticipants only and may not reflect other agreements between a consumer and their broker.©2026 The Real Estate Board of New York, Inc., All rights reserved.

































1