130 Saint Marks Avenue




























Description
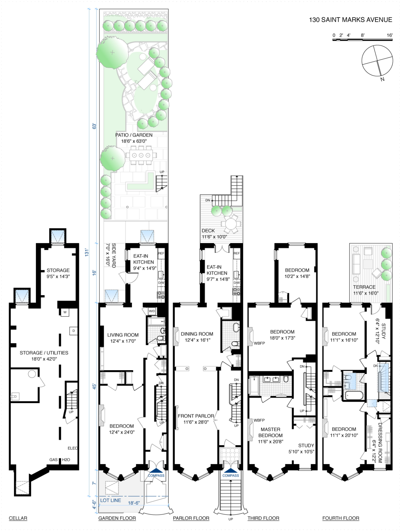
Step through the hand-etched glass doors through the foyer and into the elegant parlor floor. Soaring high ceilings, a grand pier mirror, and beautiful original wood details abound. Northern facing windows allow light to stream in all day into your living room. The living room and dining room are separated by wood fretwork, and there is a decorative marble fireplace in the formal dining room with gorgeous turquoise tiles. Oversized windows in the dining room and kitchen look over the deck and verdant garden below. The separate kitchen has been tastefully renovated with the finest appliances: Italian Boffi cabinets, Subzero and Miele appliances, and a Gaggeneau stove top and oven. Dine in your windowed kitchen or enjoy al-fresco dining on the deck. Escape from city life in the tranquil and lush garden on an extra deep lot of 131 square feet- a true gardener’s paradise!
A restored wooden staircase ushers you upstairs to the master bedroom floor. This elegant bedroom is complete with a wood-burning marble mantel fireplace, renovated ensuite bathroom with a soaking tub and shower, beautiful tiles and a double sink vanity. Enjoy lounging or entertaining friends by another wood burning fireplace in the sitting room or find yourself in the home office bathed in light. The sitting room can easily be converted to another bedroom if needed.
The third floor has two generously sized bedrooms, and a renovated bath with an original clawfoot tub, tiled floors and a new skylight. The skylight at the top of the stairs allows light to stream through the entire floor. Each bedroom is generously proportioned, with two other small rooms, perfect for an office, walk-in closet or nursery. Off of the back study is a deck complete with irrigation, overlooking the lush garden below.
Generate monthly income from the beautifully designed garden apartment, presently set up as an oversized one bedroom apartment. The bedroom features another beautiful marble fireplace with decorative tiles, a living room with space for a dining table, a renovated bathroom, and renovated eat-in kitchen. Kitchen appliances are Bosch, and the high-quality renovation is unique for a rental apartment. Washer/Dryer and ample closet space is included.
The full basement is partially finished with excellent storage space, a sink and vented washer/dryer for the owner’s use. Keep this as an excellent storage area or convert into a workspace or recreation room! 130 St. Marks has been meticulously maintained and cared for by the current owners.
This Prospect Heights Brownstone is steps away from the restaurants of Flatbush and Vanderbilt Avenues including Sofreh, Fausto, Olmsted, Faun, and many more. Nearby grocery shops include Union Market and Whole Foods 365. You are perfectly poised to enjoy all that Brownstone Brooklyn has to offer: the culture of nearby Brooklyn Museum and Brooklyn Academy of Music, Prospect Park, the Greenmarket at Grand Army Plaza and the charming neighborhood of Park Slope and Prospect Heights. Express Q and B, A, C, 2, 3 subway lines are moments away and a short trip to Atlantic Center where you will find almost all subways as well as the Long Island Railroad for easy commuting.
Listing Agents
marie-claire@compass.comP: (917)-848-6823
franck.latour@compass.comP: (917)-428-5745
jason.knight@compass.comP: (917)-635-6417
dbondy@compass.comP: (917)-690-3981
Amenities
- Primary Ensuite
- Deck
- Working Fireplace
- Decorative Fireplace
- Crown Mouldings
- Decorative Mouldings
- Columns
- Hardwood Floors
Property Details for 130 Saint Marks Avenue
| Status | Sold |
|---|---|
| Days on Market | 174 |
| Taxes | $590 / month |
| Maintenance | - |
| Min. Down Pymt | - |
| Total Rooms | 12.0 |
| Compass Type | Townhouse |
| MLS Type | House/Building |
| Year Built | 1899 |
| Lot Size | 2,423 SF / 19' x 131' |
| County | Kings County |
| Buyer's Agent Compensation | 2.5% |
Building
130 Saint Mark's Avenue
Location
Building Information for 130 Saint Marks Avenue
Payment Calculator
$20,573 per month
30 year fixed, 6.15% Interest
$19,983
$590
$0
Property History for 130 Saint Marks Avenue
| Date | Event & Source | Price |
|---|---|---|
| 05/27/2020 | Sold Manual | $4,100,000 |
| 05/27/2020 | $4,100,000 +5.3% / yr | |
| 12/14/2019 | Contract Signed Manual | — |
| 09/04/2019 | Listed (Active) Manual | $4,375,000 |
| 07/18/2019 | Temporarily Off Market Manual | — |
| 05/06/2019 | Listed (Active) Manual | $4,575,000 |
| 08/18/2006 | $2,000,000 |
For completeness, Compass often displays two records for one sale: the MLS record and the public record.
Public Records for 130 Saint Marks Avenue
Schools near 130 Saint Marks Avenue
Rating | School | Type | Grades | Distance |
|---|---|---|---|---|
| Public - | PK to 5 | |||
| Public - | 6 to 8 | |||
| Public - | 9 to 12 | |||
| Public - | PK to 5 |
Rating | School | Distance |
|---|---|---|
PS 9 Sarah Smith Garnet School (The) PublicPK to 5 | ||
Ms 266 Park Place Community Middle School Public6 to 8 | ||
GOTHAM PROFESSIONAL ARTS ACADEMY Public9 to 12 | ||
P.S. 133 William A Butler PublicPK to 5 |
School ratings and boundaries are provided by GreatSchools.org and Pitney Bowes. This information should only be used as a reference. Proximity or boundaries shown here are not a guarantee of enrollment. Please reach out to schools directly to verify all information and enrollment eligibility.
Neighborhood Map and Transit
Similar Homes
Similar Sold Homes
Explore Nearby Homes
- South Brooklyn Homes for Sale
- Northwestern Brooklyn Homes for Sale
- North Slope Homes for Sale
- Downtown Brooklyn Homes for Sale
- Boerum Hill Homes for Sale
- Fort Greene Homes for Sale
- Carroll Gardens Homes for Sale
- Park Slope Homes for Sale
- Prospect Heights Homes for Sale
- Gowanus Homes for Sale
- Cobble Hill Homes for Sale
- Central Slope Homes for Sale
- Clinton Hill Homes for Sale
- Brooklyn Heights Homes for Sale
- Crown Heights Homes for Sale
- New York Homes for Sale
- Brooklyn Homes for Sale
- Manhattan Homes for Sale
- Jersey City Homes for Sale
- Queens Homes for Sale
- Hoboken Homes for Sale
- Bayonne Homes for Sale
- Weehawken Homes for Sale
- Staten Island Homes for Sale
- Union City Homes for Sale
- North Bergen Homes for Sale
- West New York Homes for Sale
- Kearny Homes for Sale
- Secaucus Homes for Sale
- Newark Homes for Sale
- 11231 Homes for Sale
- 11205 Homes for Sale
- 11215 Homes for Sale
- 11238 Homes for Sale
- 11201 Homes for Sale
- 11243 Homes for Sale
- 11242 Homes for Sale
- 11225 Homes for Sale
- 11232 Homes for Sale
- 11249 Homes for Sale
- 11216 Homes for Sale
- 11218 Homes for Sale
- 11206 Homes for Sale
- 11211 Homes for Sale
- 10044 Homes for Sale
No guarantee, warranty or representation of any kind is made regarding the completeness or accuracy of descriptions or measurements (including square footage measurements and property condition), such should be independently verified, and Compass, Inc., its subsidiaries, affiliates and their agents and associated third parties expressly disclaims any liability in connection therewith. Photos may be virtually staged or digitally enhanced and may not reflect actual property conditions. Offers of compensation are subject to change at the discretion of the seller. No financial or legal advice provided. Equal Housing Opportunity.
This information is not verified for authenticity or accuracy and is not guaranteed and may not reflect all real estate activity in the market. ©2026 The Real Estate Board of New York, Inc., All rights reserved. The source of the displayed data is either the property owner or public record provided by non-governmental third parties. It is believed to be reliable but not guaranteed. This information is provided exclusively for consumers’ personal, non-commercial use. The data relating to real estate for sale on this website comes in part from the IDX Program of OneKey® MLS. Information Copyright 2026, OneKey® MLS. All data is deemed reliable but is not guaranteed accurate by Compass. See Terms of Service for additional restrictions. Compass · Tel: 212-913-9058 · New York, NY Listing information for certain New York City properties provided courtesy of the Real Estate Board of New York’s Residential Listing Service (the "RLS"). The information contained in this listing has not been verified by the RLS and should be verified by the consumer. The listing information provided here is for the consumer’s personal, non-commercial use. Retransmission, redistribution or copying of this listing information is strictly prohibited except in connection with a consumer's consideration of the purchase and/or sale of an individual property. This listing information is not verified for authenticity or accuracy and is not guaranteed and may not reflect all real estate activity in the market. ©2026 The Real Estate Board of New York, Inc., all rights reserved. This information is not guaranteed, should be independently verified and may not reflect all real estate activity in the market. Offers of compensation set forth here are for other RLSParticipants only and may not reflect other agreements between a consumer and their broker.©2026 The Real Estate Board of New York, Inc., All rights reserved.
































1